








Book your tour. Save an average of $18,473. We'll handle the rest.
We collect exclusive builder offers, book your tours, and support you from start to housewarming.
- Confirmed tours
- Get matched & compare top deals
- Expert help, no pressure
- No added fees
Estimated value based on Jome data, T&C apply






Why tour with Jome?
- No pressure toursTour at your own pace with no sales pressure
- Expert guidanceGet insights from our home buying experts
- Exclusive accessSee homes and deals not available elsewhere
Jome is featured in
- Single-Family
- Ready by July 2026
- $130.15/sqft
- 47 days on Jome
Home description
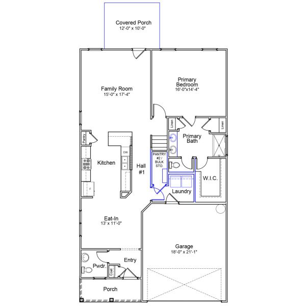
Welcome home to The Monroe—a thoughtfully designed primary-down floorplan that truly offers space for everyone. Step inside and you’ll immediately notice the beautiful, easy-to-maintain, luxury vinyl plank flooring that flows seamlessly throughout all the common areas on the first floor. The eat-in kitchen transitions effortlessly into the main cooking area and overlooks the spacious great room, creating an ideal layout for both everyday living and entertaining. The kitchen is beautifully appointed with pendant lighting, stainless steel appliances, Shaker-style cabinetry, quartz countertops, and a stylish tile backsplash—a perfect blend of function and modern elegance. The primary suite is located on the first floor and comes with a ceiling fan already installed. The primary bath offers dual vanities, two linen closets, a five-foot walk-in shower, and a generous walk-in closet. Upstairs, you’ll find three generously sized bedrooms, a full bathroom, and a spacious loft. Great for a movie or game room!
May also be listed on the Mungo Homes website
Information last verified by Jome: Today at 5:31 AM (March 31, 2026)
Book your tour. Save an average of $18,473. We'll handle the rest.
We collect exclusive builder offers, book your tours, and support you from start to housewarming.
- Confirmed tours
- Get matched & compare top deals
- Expert help, no pressure
- No added fees
Estimated value based on Jome data, T&C apply
Home details
- Property status:
- Under construction
- Size:
- 2,405 sqft
- Stories:
- 2
- Beds:
- 4
- Baths:
- 2
- Half baths:
- 1
- Garage spaces:
- 2
Construction details
- Builder Name:
- Mungo Homes
- Completion Date:
- July, 2026
Home features & finishes
- Garage/Parking:
- Garage
- Rooms:
- Primary Bedroom Downstairs

Get a consultation with our New Homes Expert
- See how your home builds wealth
- Plan your home-buying roadmap
- Discover hidden gems

Community details
Mayfair Village
by Mungo Homes, Spartanburg, SC
- 13 homes
- 9 plans
- 1,148 - 2,405 sqft
View Mayfair Village details
More homes in Mayfair Village
- Home at address 2332 Mill Lp, Spartanburg, SC 29301

Evans
$277,000
- 4 bd
- 2.5 ba
- 1,709 sqft
2332 Mill Lp, Spartanburg, SC 29301
- Home at address 2316 Mill Lp, Spartanburg, SC 29301

Lancaster
$300,000
- 4 bd
- 2.5 ba
- 2,177 sqft
2316 Mill Lp, Spartanburg, SC 29301
- Home at address 2345 Mill Lp, Spartanburg, SC 29301

Lancaster
$301,000
- 4 bd
- 2.5 ba
- 2,177 sqft
2345 Mill Lp, Spartanburg, SC 29301
- Home at address 2305 Mill Lp, Spartanburg, SC 29301

Monroe
$315,000
- 4 bd
- 2.5 ba
- 2,392 sqft
2305 Mill Lp, Spartanburg, SC 29301
Floor plans in Mayfair Village
- View details for Lancaster - Genesis Value Collection

Lancaster - Genesis Value Collection
$276,900+- 4 bd
- 2.5 ba
- 2,152 sqft
- View details for Monroe - Genesis Value Collection

Monroe - Genesis Value Collection
$286,900+- 4 bd
- 2.5 ba
- 2,392 sqft
About the builder - Mungo Homes
Neighborhood
Home address
- City:
- Spartanburg
- County:
- Spartanburg
- Zip Code:
- 29301
Schools in Spartanburg School District 6
- Grades PK-PKPublicspartanburg six child development center1.1 mi3050 n. blackstock roadna
GreatSchools’ Summary Rating calculation is based on 4 of the school’s themed ratings, including test scores, student/academic progress, college readiness, and equity. This information should only be used as a reference. Jome is not affiliated with GreatSchools and does not endorse or guarantee this information. Please reach out to schools directly to verify all information and enrollment eligibility. Data provided by GreatSchools.org © 2025
Places of interest
Getting around
Air quality
Noise level
A Soundscore™ rating is a number between 50 (very loud) and 100 (very quiet) that tells you how loud a location is due to environmental noise.

Considering this home?
Our expert will guide your tour, in-person or virtual
Need more information?
Text or call (888) 545-5198
Financials
Estimated monthly payment
Let us help you find your dream home
How many bedrooms are you looking for?
Similar homes nearby
Recently added communities in this area
Nearby communities in Spartanburg
New homes in nearby cities
More New Homes in Spartanburg, SC
- Jome
- New homes search
- South Carolina
- Spartanburg County
- Spartanburg
- Mayfair Village
- 2337 Mill Lp, Spartanburg, SC 29301


























