








Book your tour. Save an average of $18,473. We'll handle the rest.
We collect exclusive builder offers, book your tours, and support you from start to housewarming.
- Confirmed tours
- Get matched & compare top deals
- Expert help, no pressure
- No added fees
Estimated value based on Jome data, T&C apply








Why tour with Jome?
- No pressure toursTour at your own pace with no sales pressure
- Expert guidanceGet insights from our home buying experts
- Exclusive accessSee homes and deals not available elsewhere
Jome is featured in
- Single-Family
- Ready by August 2026
- $143.32/sqft
- 1 days on Jome
Home description
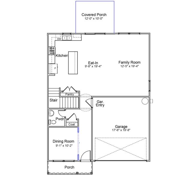
Welcome home to the Lancaster! As you arrive, you’ll notice the full covered front porch—perfect for a couple of rocking chairs or a cozy bench. Step inside and you’ll be greeted by a formal dining room and luxury vinyl plank flooring that flows throughout the entire first floor. The kitchen overlooks the family room and is loaded with features, including a large island, pendant lighting, white shaker-style cabinets, quartz countertops, a tile backsplash, and stainless steel appliances, including a gas range. The stairs are tucked away off the kitchen and lead to the second floor. The primary bedroom is spacious, and the en-suite bath includes a 5-foot tiled shower, dual-bowl vanity, and a walk-in closet. Three additional bedrooms are also located on the second floor, along with the laundry room and a full bathroom. To top it off, this home features a charming, covered porch—perfect for enjoying those sweet South Carolina evenings.
May also be listed on the Mungo Homes website
Information last verified by Jome: Today at 5:51 AM (April 2, 2026)
Book your tour. Save an average of $18,473. We'll handle the rest.
We collect exclusive builder offers, book your tours, and support you from start to housewarming.
- Confirmed tours
- Get matched & compare top deals
- Expert help, no pressure
- No added fees
Estimated value based on Jome data, T&C apply
Home details
- Property status:
- Under construction
- Size:
- 2,166 sqft
- Stories:
- 2
- Beds:
- 4
- Baths:
- 2
- Half baths:
- 1
- Garage spaces:
- 2
Construction details
- Builder Name:
- Mungo Homes
- Completion Date:
- August, 2026
Home features & finishes
- Garage/Parking:
- Garage
- Rooms:
- Primary Bedroom Upstairs

Get a consultation with our New Homes Expert
- See how your home builds wealth
- Plan your home-buying roadmap
- Discover hidden gems

Community details
Mayfair Village
by Mungo Homes, Spartanburg, SC
- 15 homes
- 9 plans
- 1,148 - 2,405 sqft
View Mayfair Village details
More homes in Mayfair Village
- Home at address 2332 Mill Lp, Spartanburg, SC 29301

Evans
$277,000
- 4 bd
- 2.5 ba
- 1,709 sqft
2332 Mill Lp, Spartanburg, SC 29301
- Home at address 2301 Mill Lp, Spartanburg, SC 29301

Evans
$277,676
- 4 bd
- 2.5 ba
- 1,709 sqft
2301 Mill Lp, Spartanburg, SC 29301
- Home at address 2316 Mill Lp, Spartanburg, SC 29301

Lancaster
$300,000
- 4 bd
- 2.5 ba
- 2,177 sqft
2316 Mill Lp, Spartanburg, SC 29301
- Home at address 2345 Mill Lp, Spartanburg, SC 29301

Lancaster
$301,000
- 4 bd
- 2.5 ba
- 2,177 sqft
2345 Mill Lp, Spartanburg, SC 29301
- Home at address 2337 Mill Lp, Spartanburg, SC 29301

Monroe
$313,000
- 4 bd
- 2.5 ba
- 2,405 sqft
2337 Mill Lp, Spartanburg, SC 29301
- Home at address 2305 Mill Lp, Spartanburg, SC 29301

Monroe
$315,000
- 4 bd
- 2.5 ba
- 2,392 sqft
2305 Mill Lp, Spartanburg, SC 29301
Floor plans in Mayfair Village
- View details for Lancaster - Genesis Value Collection

Lancaster - Genesis Value Collection
$276,900+- 4 bd
- 2.5 ba
- 2,152 sqft
- View details for Monroe - Genesis Value Collection

Monroe - Genesis Value Collection
$286,900+- 4 bd
- 2.5 ba
- 2,392 sqft
About the builder - Mungo Homes
Neighborhood
Home address
- City:
- Spartanburg
- County:
- Spartanburg
- Zip Code:
- 29301
Schools in Spartanburg School District 6
- Grades PK-PKPublicspartanburg six child development center1.1 mi3050 n. blackstock roadna
GreatSchools’ Summary Rating calculation is based on 4 of the school’s themed ratings, including test scores, student/academic progress, college readiness, and equity. This information should only be used as a reference. Jome is not affiliated with GreatSchools and does not endorse or guarantee this information. Please reach out to schools directly to verify all information and enrollment eligibility. Data provided by GreatSchools.org © 2025
Places of interest
Getting around
Air quality
Noise level
A Soundscore™ rating is a number between 50 (very loud) and 100 (very quiet) that tells you how loud a location is due to environmental noise.

Considering this home?
Our expert will guide your tour, in-person or virtual
Need more information?
Text or call (888) 545-5198
Financials
Estimated monthly payment
Let us help you find your dream home
How many bedrooms are you looking for?
Similar homes nearby
Recently added communities in this area
Nearby communities in Spartanburg
New homes in nearby cities
More New Homes in Spartanburg, SC
- Jome
- New homes search
- South Carolina
- Spartanburg County
- Spartanburg
- Mayfair Village
- 2297 Mill Lp, Spartanburg, SC 29301


























