
















- 3 bd
- 2 ba
- 1,548 sqft
3647 Stedding Pl, Lexington, SC 29073
- Single-Family
- $161.5/sqft
- 128 days on Jome
New Homes for Sale Near 3647 Stedding Pl, Lexington, SC 29073
About this Home
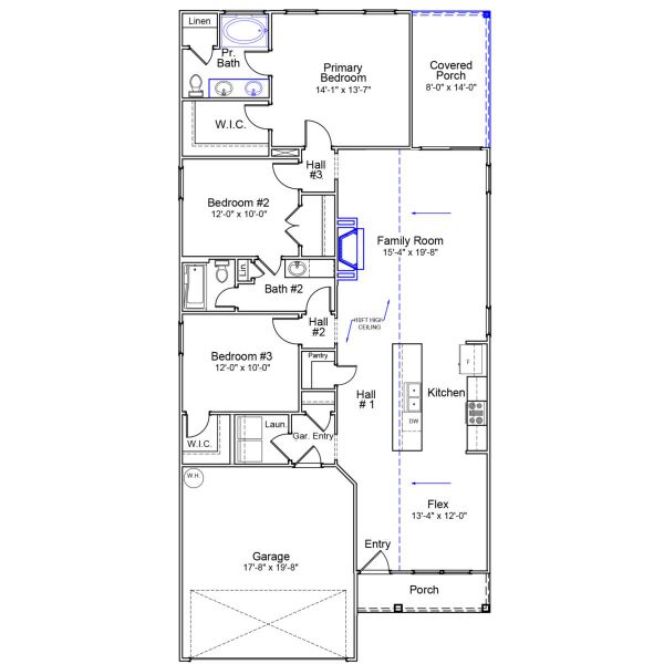
Enjoy a life of luxury in Bluefield, with amazing amenities and a lazy river! This single-story Brunswick plan includes three bedrooms and two full bathrooms an open flex space that can be used as an eat-in area or additional living space. The kitchen opens up to the great room and eat-in, and a vaulted ceiling runs throughout the home for added height and elegance.The primary bedroom and its walk-in closet are just off the great room. In the primary suite, there's a linen closet, dual vanities and a large garden tub with overhead shower. The two spare bedrooms share a second bathroom and are accessible through the great room. Outside, a covered porch has been added for enjoying the cool Carolina nights. Call for more information!
May also be listed on the Mungo Homes website
Information last verified by Jome: Sunday at 5:46 AM (December 28, 2025)
Home details
- Property status:
- Sold
- Size:
- 1,548 sqft
- Stories:
- 1
- Beds:
- 3
- Baths:
- 2
- Garage spaces:
- 2
Construction details
- Builder Name:
- Mungo Homes
- Completion Date:
- January, 2026
Home features & finishes
- Garage/Parking:
- Garage
- Rooms:
- Primary Bedroom On MainPrimary Bedroom Downstairs

Community details
Bluefield
by Mungo Homes, Lexington, SC
- 21 homes
- 12 plans
- 1,148 - 2,642 sqft
View Bluefield details
More homes in Bluefield
- Home at address 3383 Matrim Wy, Lexington, SC 29073

$250,000
Under construction- 3 bd
- 2.5 ba
- 1,617 sqft
3383 Matrim Wy, Lexington, SC 29073
- Home at address 3376 Matrim Wy, Lexington, SC 29073

$253,382
Under construction- 3 bd
- 2.5 ba
- 1,476 sqft
3376 Matrim Wy, Lexington, SC 29073
- Home at address 3667 Stedding Pl, Lexington, SC 29073

$257,469
Under construction- 3 bd
- 2 ba
- 1,546 sqft
3667 Stedding Pl, Lexington, SC 29073
- Home at address 4018 Arafel Dr, Lexington, SC 29073

$261,000
Under construction- 4 bd
- 2.5 ba
- 1,709 sqft
4018 Arafel Dr, Lexington, SC 29073
- Home at address 3913 Golden Crane Pass, Lexington, SC 29073

$267,969
Under construction- 4 bd
- 2.5 ba
- 1,726 sqft
3913 Golden Crane Pass, Lexington, SC 29073
- Home at address 3336 Matrim Wy, Lexington, SC 29073

$269,848
Under construction- 4 bd
- 2.5 ba
- 1,709 sqft
3336 Matrim Wy, Lexington, SC 29073
Floor plans in Bluefield

Baker - Genesis Value Collection
- 3 bd
- 2 ba
- 1,148 sqft

Bartow - Genesis Value Collection
- 3 bd
- 2.5 ba
- 1,476 sqft

Brunswick - Genesis Value Collection
- 3 bd
- 2 ba
- 1,548 sqft

Dawson - Genesis Value Collection
- 3 bd
- 2.5 ba
- 1,617 sqft

Evans - Genesis Value Collection
- 3 bd
- 2.5 ba
- 1,709 sqft

Guilford - Genesis Value Collection
- 4 bd
- 2.5 ba
- 1,772 sqft

Highland - Genesis Value Collection
- 3 bd
- 2.5 ba
- 1,818 sqft

Kershaw - Genesis Value Collection
- 3 bd
- 2.5 ba
- 1,951 sqft

Meriwether - Genesis Value Collection
- 3 bd
- 2.5 ba
- 2,223 sqft
About the builder - Mungo Homes
Neighborhood
Home address
Schools in Lexington School District 2
GreatSchools’ Summary Rating calculation is based on 4 of the school’s themed ratings, including test scores, student/academic progress, college readiness, and equity. This information should only be used as a reference. Jome is not affiliated with GreatSchools and does not endorse or guarantee this information. Please reach out to schools directly to verify all information and enrollment eligibility. Data provided by GreatSchools.org © 2025
Places of interest
Getting around
Air quality
Noise level
A Soundscore™ rating is a number between 50 (very loud) and 100 (very quiet) that tells you how loud a location is due to environmental noise.
Financials
Nearby communities in Lexington
Homes in Lexington by Mungo Homes
Recently added communities in this area
Other Builders in Lexington, SC
Nearby sold homes
New homes in nearby cities
More New Homes in Lexington, SC
- Jome
- New homes search
- South Carolina
- Lexington County
- Lexington
- Bluefield
- 3647 Stedding Pl, Lexington, SC 29073





























































