






















- 3 bd
- 2.5 ba
- 1,617 sqft
142 Cotesworth St, Pendleton, SC 29670
- Single-Family
- $157.08/sqft
- 227 days on Jome
New Homes for Sale Near 142 Cotesworth St, Pendleton, SC 29670
About this Home
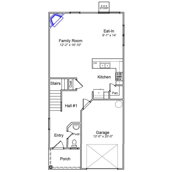
This two-story home includes three bedrooms and two and one half bathrooms. It has a covered front porch next to an attached single-car garage. Next to the kitchen and its walk-in pantry, the great room leads into a breakfast nook. You can add a fireplace in the living room and another covered porch off the eating area. Upstairs, the primary bedroom connects to a walk-in closet and the primary bathroom, which comes with a shower and linen closet but can be altered. Down the hall are two more bedrooms, a second bathroom, and a laundry room.
May also be listed on the Mungo Homes website
Information last verified by Jome: Thursday at 6:01 AM (February 12, 2026)
Home details
- Property status:
- Sold
- Size:
- 1,617 sqft
- Stories:
- 2
- Beds:
- 3
- Baths:
- 2
- Half baths:
- 1
- Garage spaces:
- 2
Construction details
- Builder Name:
- Mungo Homes
- Completion Date:
- January, 2026
Home features & finishes
- Garage/Parking:
- Garage
- Rooms:
- Primary Bedroom Upstairs

Community details
Tucker Ridge
by Mungo Homes, Pendleton, SC
- 3 homes
- 1,369 - 1,617 sqft
View Tucker Ridge details
More homes in Tucker Ridge
- Home at address 138 Cotesworth St, Pendleton, SC 29670

$244,000
Move-in ready- 3 bd
- 2.5 ba
- 1,369 sqft
138 Cotesworth St, Pendleton, SC 29670
- Home at address 136 Cotesworth St, Pendleton, SC 29670

$249,000
Move-in ready- 3 bd
- 2.5 ba
- 1,476 sqft
136 Cotesworth St, Pendleton, SC 29670
- Home at address 110 Cotesworth St, Pendleton, SC 29670

$283,000
Move-in ready- 3 bd
- 2.5 ba
- 1,617 sqft
110 Cotesworth St, Pendleton, SC 29670
About the builder - Mungo Homes
Neighborhood
Home address
Schools in Anderson School District 4
GreatSchools’ Summary Rating calculation is based on 4 of the school’s themed ratings, including test scores, student/academic progress, college readiness, and equity. This information should only be used as a reference. Jome is not affiliated with GreatSchools and does not endorse or guarantee this information. Please reach out to schools directly to verify all information and enrollment eligibility. Data provided by GreatSchools.org © 2025
Places of interest
Getting around
Air quality
Noise level
A Soundscore™ rating is a number between 50 (very loud) and 100 (very quiet) that tells you how loud a location is due to environmental noise.
Financials
Nearby communities in Pendleton
Homes in Pendleton by Mungo Homes
Recently added communities in this area
Other Builders in Pendleton, SC
Nearby sold homes
New homes in nearby cities
More New Homes in Pendleton, SC
- Jome
- New homes search
- South Carolina
- Anderson County
- Pendleton
- Tucker Ridge
- 142 Cotesworth St, Pendleton, SC 29670





















































