









Book your tour. Save an average of $18,473. We'll handle the rest.
We collect exclusive builder offers, book your tours, and support you from start to housewarming.
- Confirmed tours
- Get matched & compare top deals
- Expert help, no pressure
- No added fees
Estimated value based on Jome data, T&C apply






Why tour with Jome?
- No pressure toursTour at your own pace with no sales pressure
- Expert guidanceGet insights from our home buying experts
- Exclusive accessSee homes and deals not available elsewhere
Jome is featured in
- Single-Family
- Ready by December 2026
- $183.53/sqft
- 51 days on Jome
Home description
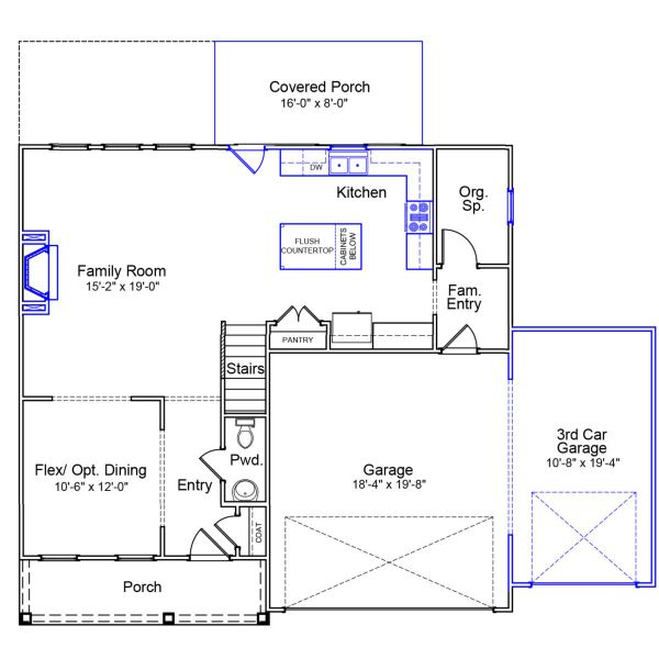
The two-story Cooper plan features four bedrooms and two-and-one-half bathrooms. Enter through the front door to be greeted by flex space/Dining area which opens to an open great room, eat-in, and kitchen. The great room offers gas fireplace and access to a large rear covered porch. Large front porch perfect for rocking chair relaxing. there is an organizational space just off the garage entry. A powder room completes the first floor. A loft space, the primary suite, and three secondary bedrooms with walk-in closets can all be found on the second floor. The laundry is also on the second floor. The primary suite has walk in shower, linen closet and large walk-in closet. The loft offers additional living space upstairs. Relax outside on your large rear covered porch or the extended front porch.
May also be listed on the Mungo Homes website
Information last verified by Jome: Yesterday at 5:41 AM (May 27, 2026)
Book your tour. Save an average of $18,473. We'll handle the rest.
We collect exclusive builder offers, book your tours, and support you from start to housewarming.
- Confirmed tours
- Get matched & compare top deals
- Expert help, no pressure
- No added fees
Estimated value based on Jome data, T&C apply
Home details
- Property status:
- Under construction
- Size:
- 2,174 sqft
- Stories:
- 2
- Beds:
- 4
- Baths:
- 2
- Half baths:
- 1
- Garage spaces:
- 3
Construction details
- Builder Name:
- Mungo Homes
- Completion Date:
- December, 2026
Home features & finishes
- Garage/Parking:
- Garage
- Rooms:
- Primary Bedroom Upstairs

Get a consultation with our New Homes Expert
- See how your home builds wealth
- Plan your home-buying roadmap
- Discover hidden gems

Community details
Cornerstone
by Mungo Homes, Anderson, SC
- 6 homes
- 14 plans
- 1,531 - 4,126 sqft
View Cornerstone details
More homes in Cornerstone
- Home at address TBD Limestone Cir, Unit 102, Anderson, SC 29625

Savannah
$452,000
- 5 bd
- 3.5 ba
- 2,986 sqft
TBD Limestone Cir, Unit 102, Anderson, SC 29625
- Home at address TBD Limestone Cir, Unit 101, Anderson, SC 29625

Yates II
$509,000
- 5 bd
- 3.5 ba
- 4,126 sqft
TBD Limestone Cir, Unit 101, Anderson, SC 29625
Floor plans in Cornerstone
- View details for Nantahala II - Vanguard Collection

Nantahala II - Vanguard Collection
$338,000+- 4 bd
- 2.5 ba
- 2,450 sqft
- View details for Savannah - Vanguard Collection

Savannah - Vanguard Collection
$355,000+- 5 bd
- 2.5 ba
- 2,886 sqft
About the builder - Mungo Homes
Neighborhood
Home address
Schools in Anderson School District 4
GreatSchools’ Summary Rating calculation is based on 4 of the school’s themed ratings, including test scores, student/academic progress, college readiness, and equity. This information should only be used as a reference. Jome is not affiliated with GreatSchools and does not endorse or guarantee this information. Please reach out to schools directly to verify all information and enrollment eligibility. Data provided by GreatSchools.org © 2025
Places of interest
Getting around
Air quality
Noise level
A Soundscore™ rating is a number between 50 (very loud) and 100 (very quiet) that tells you how loud a location is due to environmental noise.

Considering this home?
Our expert will guide your tour, in-person or virtual
Need more information?
Text or call (888) 545-5198
Financials
Estimated monthly payment
Let us help you find your dream home
How many bedrooms are you looking for?
Similar homes nearby
Recently added communities in this area
Nearby communities in Anderson
New homes in nearby cities
More New Homes in Anderson, SC
- Jome
- New homes search
- South Carolina
- Anderson County
- Anderson
- Cornerstone
- TBD Limestone Cir, Unit 122, Anderson, SC 29625






























