



Book your tour. Save an average of $18,473. We'll handle the rest.
We collect exclusive builder offers, book your tours, and support you from start to housewarming.
- Confirmed tours
- Get matched & compare top deals
- Expert help, no pressure
- No added fees
Estimated value based on Jome data, T&C apply

Why tour with Jome?
- No pressure toursTour at your own pace with no sales pressure
- Expert guidanceGet insights from our home buying experts
- Exclusive accessSee homes and deals not available elsewhere
Jome is featured in
- Single-Family
- Quick move-in
- $182.62/sqft
- 1 days on Jome
Home description
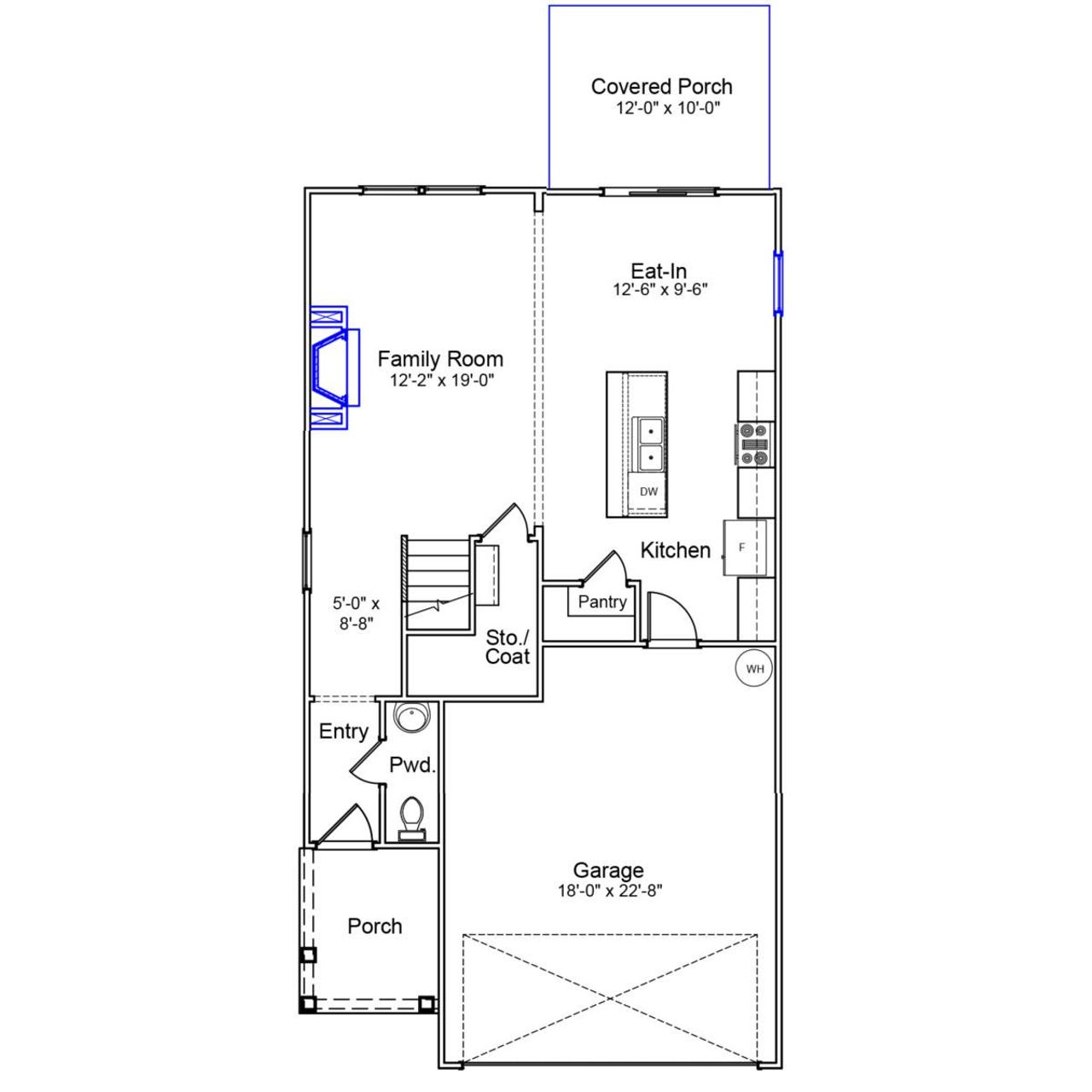
100% USDA financing–eligible area! The Highland Plan is a Craftsman-style, brick-and-vinyl, two-story home featuring a spacious two-car garage, three bedrooms, and two-and-a-half bathrooms. The beautiful kitchen island overlooks the great room, which includes a luxurious fireplace. Throughout the home, elegant quartz countertops and a sleek tile backsplash add a touch of sophistication, while luxury vinyl plank flooring enhances the main living areas with durability and modern appeal. All bedrooms are conveniently located on the second floor, including the primary suite, which features a boxed ceiling and a walk-in closet. A versatile loft area provides the perfect space for entertaining, a home office, or a cozy retreat.
May also be listed on the Mungo Homes website
Information last verified by Jome: Today at 5:33 AM (March 23, 2026)
Book your tour. Save an average of $18,473. We'll handle the rest.
We collect exclusive builder offers, book your tours, and support you from start to housewarming.
- Confirmed tours
- Get matched & compare top deals
- Expert help, no pressure
- No added fees
Estimated value based on Jome data, T&C apply
Home details
- Property status:
- Move-in ready
- Size:
- 1,818 sqft
- Stories:
- 2
- Beds:
- 3
- Baths:
- 2
- Half baths:
- 1
- Garage spaces:
- 2
Construction details
- Builder Name:
- Mungo Homes
Home features & finishes
- Garage/Parking:
- Garage
- Rooms:
- Primary Bedroom Upstairs

Get a consultation with our New Homes Expert
- See how your home builds wealth
- Plan your home-buying roadmap
- Discover hidden gems

Community details
Tucker Ridge
by Mungo Homes, Pendleton, SC
- 2 homes
- 1,617 - 1,818 sqft
View Tucker Ridge details
More homes in Tucker Ridge
- Home at address 110 Cotesworth St, Pendleton, SC 29670

Dawson
$283,000
- 3 bd
- 2.5 ba
- 1,617 sqft
110 Cotesworth St, Pendleton, SC 29670
About the builder - Mungo Homes
Neighborhood
Home address
Schools in Anderson School District 4
GreatSchools’ Summary Rating calculation is based on 4 of the school’s themed ratings, including test scores, student/academic progress, college readiness, and equity. This information should only be used as a reference. Jome is not affiliated with GreatSchools and does not endorse or guarantee this information. Please reach out to schools directly to verify all information and enrollment eligibility. Data provided by GreatSchools.org © 2025
Places of interest
Getting around
Air quality
Noise level
A Soundscore™ rating is a number between 50 (very loud) and 100 (very quiet) that tells you how loud a location is due to environmental noise.

Considering this home?
Our expert will guide your tour, in-person or virtual
Need more information?
Text or call (888) 545-5198
Financials
Estimated monthly payment
Let us help you find your dream home
How many bedrooms are you looking for?
Similar homes nearby
Recently added communities in this area
Nearby communities in Pendleton
New homes in nearby cities
More New Homes in Pendleton, SC
- Jome
- New homes search
- South Carolina
- Anderson County
- Pendleton
- Tucker Ridge
- 112 Cotesworth St, Pendleton, SC 29670




























