









Book your tour. Save an average of $18,473. We'll handle the rest.
We collect exclusive builder offers, book your tours, and support you from start to housewarming.
- Confirmed tours
- Get matched & compare top deals
- Expert help, no pressure
- No added fees
Estimated value based on Jome data, T&C apply
























Why tour with Jome?
- No pressure toursTour at your own pace with no sales pressure
- Expert guidanceGet insights from our home buying experts
- Exclusive accessSee homes and deals not available elsewhere
Jome is featured in
- Single-Family
- Quick move-in
- $184.23/sqft
- 1 days on Jome
Home description
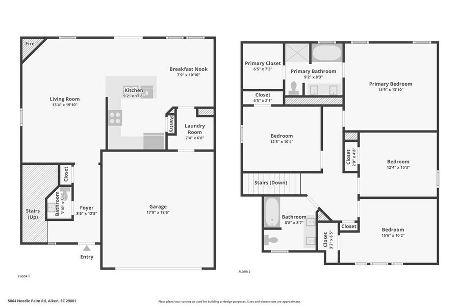
The newly enhanced Harper II floor plan offers approximately 1,880+ square feet of sophisticated two-level living, meticulously designed with 4 bedrooms and 2 and a half bathrooms in a spacious open-concept layout ideal for both refined everyday living and elevated entertaining.
This residence is richly appointed with designer-curated finishes, including luxury vinyl flooring throughout, an upgraded lighting package, a gas fireplace serving as a striking focal point, and quartz countertops throughout the home. The exterior presents timeless curb appeal with a refined blend of white and grey siding, and black shutters with some black exterior finishes. Inside, the palette continues with elegant gray cabinetry, black interior fixtures, and silver-toned LVP flooring, creating a cohesive, modern aesthetic.
Additional highlights include Energy-efficient upgrades such as a tankless gas water heater and HERS energy certification with third-party testing, delivering exceptional performance, sustainability, and long-term savings.
Located within the desirable Lawton Ridge Subdivision, connected to Belvedere, this home is positioned in a thoughtfully planned community near Pendleton High School, offering a balance of convenience, quality craftsmanship, and enduring design.
Please note: This home is currently under construction. Photos represent a Harper II floor plan on a different lot and will be updated upon completion.
Prices subject to change without notice.
Lot 30 Harper II ELE: B
May also be listed on the Great Southern Homes website
Information last verified by Jome: Today at 6:18 AM (April 1, 2026)
Book your tour. Save an average of $18,473. We'll handle the rest.
We collect exclusive builder offers, book your tours, and support you from start to housewarming.
- Confirmed tours
- Get matched & compare top deals
- Expert help, no pressure
- No added fees
Estimated value based on Jome data, T&C apply
Home details
- Property status:
- Move-in ready
- Size:
- 1,889 sqft
- Stories:
- 2
- Beds:
- 4
- Baths:
- 2
- Half baths:
- 1
- Garage spaces:
- 2
Construction details
- Builder Name:
- Great Southern Homes
Home features & finishes
- Garage/Parking:
- Garage

Get a consultation with our New Homes Expert
- See how your home builds wealth
- Plan your home-buying roadmap
- Discover hidden gems

Community details
Lawton Ridge
by Great Southern Homes, Anderson, SC
- 4 homes
- 9 plans
- 1,637 - 3,005 sqft
View Lawton Ridge details
More homes in Lawton Ridge
- Home at address 211 Bellflower Ln, Anderson, SC 29625

Devonshire ll
$366,310
- 4 bd
- 2.5 ba
- 2,576 sqft
211 Bellflower Ln, Anderson, SC 29625
- Home at address 202 Bellflower Ln, Anderson, SC 29625

Porter II
$370,521
- 4 bd
- 2.5 ba
- 2,225 sqft
202 Bellflower Ln, Anderson, SC 29625
Floor plans in Lawton Ridge
About the builder - Great Southern Homes
Neighborhood
Home address
Schools in Anderson School District 4
GreatSchools’ Summary Rating calculation is based on 4 of the school’s themed ratings, including test scores, student/academic progress, college readiness, and equity. This information should only be used as a reference. Jome is not affiliated with GreatSchools and does not endorse or guarantee this information. Please reach out to schools directly to verify all information and enrollment eligibility. Data provided by GreatSchools.org © 2025
Places of interest
Getting around
Air quality

Considering this home?
Our expert will guide your tour, in-person or virtual
Need more information?
Text or call (888) 545-5198
Financials
Estimated monthly payment
Let us help you find your dream home
How many bedrooms are you looking for?
Similar homes nearby
Recently added communities in this area
Nearby communities in Anderson
New homes in nearby cities
More New Homes in Anderson, SC
- Jome
- New homes search
- South Carolina
- Anderson County
- Anderson
- Lawton Ridge
- 206 Bellflower Ln, Anderson, SC 29625


































