

















- 3 bd
- 2.5 ba
- 1,627 sqft
1545 Loose Leaf Ln, Blythewood, SC 29016
- Single-Family
- $153.66/sqft
- 136 days on Jome
New Homes for Sale Near 1545 Loose Leaf Ln, Blythewood, SC 29016
About this Home
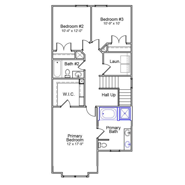
Welcome to The Falls! Come fall in love with this three-bedroom, two-and-one-half bath Underwood floorplan. Enjoy extra privacy with peaceful woods right behind the home. This charming home offers a spacious and inviting open-concept layout, perfect for modern living. The great room features a cozy fireplace, perfect for chilly evenings. The modern black and white kitchen offers beautiful white cabinets with black hardware and light fixures, stainless steel appliances, and a peninsula that doubles as a breakfast bar, making meal prep and entertaining a breeze. There's also an extended covered porch with a ceiling fan to relax and enjoy the outdoors. Upstairs, the primary bedroom offers a private retreat. The luxurious ensuite is a standout feature, showcasing a stunning garden tub, separate tile shower with sleek finishes, and dual vanities. The walk-in closet offers ample storage. This home balances comfort, style, and functionality, making it an ideal choice for those seeking affordable living with a touch of luxury. Don't miss this amazing home!
May also be listed on the Mungo Homes website
Information last verified by Jome: Tuesday at 5:44 AM (November 11, 2025)
Home details
- Property status:
- Sold
- Size:
- 1,627 sqft
- Stories:
- 2
- Beds:
- 3
- Baths:
- 2
- Half baths:
- 1
- Garage spaces:
- 1
Construction details
- Builder Name:
- Mungo Homes
- Completion Date:
- November, 2025
Home features & finishes
- Garage/Parking:
- Garage
- Rooms:
- Primary Bedroom Upstairs

Community details
The Falls
by Mungo Homes, Blythewood, SC
- 1 home
- 1,747 - 1,747 sqft
View The Falls details
More homes in The Falls
About the builder - Mungo Homes
Neighborhood
Home address
- City:
- Blythewood
- County:
- Richland
- Zip Code:
- 29016
Schools in Richland School District 2
GreatSchools’ Summary Rating calculation is based on 4 of the school’s themed ratings, including test scores, student/academic progress, college readiness, and equity. This information should only be used as a reference. Jome is not affiliated with GreatSchools and does not endorse or guarantee this information. Please reach out to schools directly to verify all information and enrollment eligibility. Data provided by GreatSchools.org © 2025
Places of interest
Getting around
Air quality
Noise level
A Soundscore™ rating is a number between 50 (very loud) and 100 (very quiet) that tells you how loud a location is due to environmental noise.
Natural hazards risk
Climate hazards can impact homes and communities, with risks varying by location. These scores reflect the potential impact of natural disasters and climate-related risks on Richland County
Provided by FEMA
Financials
Nearby communities in Blythewood
Homes in Blythewood by Mungo Homes
Recently added communities in this area
Other Builders in Blythewood, SC
Nearby sold homes
New homes in nearby cities
More New Homes in Blythewood, SC
- Home
- New homes
- South Carolina
- Richland County
- Blythewood
- The Falls
- 1545 Loose Leaf Ln, Blythewood, SC 29016






























































