













































- 4 bd
- 2.5 ba
- 2,203 sqft
330 Blue Haw Dr, Moncks Corner, SC 29461
- Single-Family
- $182.16/sqft
- $1,200/annual HOA
- 0.15-acre lot
New Homes for Sale Near 330 Blue Haw Dr, Moncks Corner, SC 29461
About this Home
Carolina Groves, located in tranquil Moncks Corner, SC conveniently located off of Hwy 52. Developed by D.R Horton, this new construction community offers a home for every stage of life starting in the low $300s. Not only do our homes excel in high efficiency performance, resulting in significant monthly savings on your bills, they are also certified Energy Star rated. Enjoy our amenities including a walk-in resort style pool, grilling area with prep kitchen, outdoor pavilion, playground, and more! In this peaceful community surrounded by ponds and wooded landscape, you will enjoy living in this community. It's the perfect getaway whether you're a first-time homebuyer, a growing family, or just looking to downsize.This community has something for everyone wanting to own their piece of the low country.
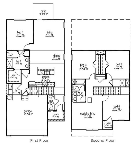
The Manning with features Brownstone colored siding with Toasted Almond board and batten at the roof gables and has black shutters and black front door. This is a 4-bedroom, 2.5-bathroom home with a 2-car garage, and it has the owner's suite on the main level. Entering the great room we find the dining area, family room and a wonderful cook's kitchen are all together for open living. This beautiful kitchen features white cabinetry, granite counters, a large kitchen island with room for 4 counter height barstools and there's a pantry too.
This home includes Window Blinds, a Refrigerator, and Garage Door Opener! Additional features include high-efficiency 15 SEER 2 Carrier HVAC, and a tankless water heater for endless hot water!
All new homes include D.R. Horton's Home is Connected® package, an industry leading suite of smart home products that keeps homeowners connected with the people and places they value most. This smart technology allows homeowners to monitor and control their home from their couch or across the globe. Products include touchscreen interface, video doorbell, front door light, z-wave t-stat, and keyless entry.
*Square footage dimensions are approximate.
D R Horton Inc, MLS 25018942
May also be listed on the D.R. Horton website
Information last verified by Jome: Today at 7:38 AM (December 20, 2025)
Home details
- Property status:
- Sold
- Lot size (acres):
- 0.15
- Size:
- 2,203 sqft
- Stories:
- 2
- Beds:
- 4
- Baths:
- 2
- Half baths:
- 1
- Garage spaces:
- 2
Construction details
- Builder Name:
- D.R. Horton
- Year Built:
- 2025
- Roof:
- Fiberglass Roofing
Home features & finishes
- Construction Materials:
- Vinyl Siding
- Cooling:
- Central Air
- Flooring:
- Vinyl Flooring
- Garage/Parking:
- Door OpenerGarage
- Home amenities:
- Home Accessibility Features
- Interior Features:
- Ceiling-HighWalk-In ClosetPantry
- Kitchen:
- Kitchen Island
- Laundry facilities:
- Washer
- Property amenities:
- Patio
- Rooms:
- KitchenDining RoomFamily RoomLiving Room

Community details
Carolina Groves
by D.R. Horton, Moncks Corner, SC
- 10 homes
- 14 plans
- 1,182 - 3,389 sqft
View Carolina Groves details
Community amenities
- Club House
- Community Pool
- Park Nearby
More homes in Carolina Groves
Floor plans in Carolina Groves
About the builder - D.R. Horton
Neighborhood
Home address
- City:
- Moncks Corner
- County:
- Berkeley
- Zip Code:
- 29461
Schools in Berkeley County School District
GreatSchools’ Summary Rating calculation is based on 4 of the school’s themed ratings, including test scores, student/academic progress, college readiness, and equity. This information should only be used as a reference. Jome is not affiliated with GreatSchools and does not endorse or guarantee this information. Please reach out to schools directly to verify all information and enrollment eligibility. Data provided by GreatSchools.org © 2025
Places of interest
Getting around
Air quality
Natural hazards risk
Climate hazards can impact homes and communities, with risks varying by location. These scores reflect the potential impact of natural disasters and climate-related risks on Berkeley County
Provided by FEMA
Financials
Nearby communities in Moncks Corner
Homes in Moncks Corner by D.R. Horton
Recently added communities in this area
Other Builders in Moncks Corner, SC
Nearby sold homes
New homes in nearby cities
More New Homes in Moncks Corner, SC
D R Horton Inc, MLS 25018942
IDX information is provided exclusively for personal, non-commercial use, and may not be used for any purpose other than to identify prospective properties consumers may be interested in purchasing. Copyright Charleston Trident Multiple Listing Service, Inc. All rights reserved. Information is deemed reliable but not guaranteed.
Read moreLast checked Dec 20, 1:55 pm
- Jome
- New homes search
- South Carolina
- Charleston Metropolitan Area
- Berkeley County
- Moncks Corner
- Carolina Groves
- 330 Blue Haw Dr, Moncks Corner, SC 29461















































































