













Book your tour. Save an average of $18,473. We'll handle the rest.
- Confirmed tours
- Get matched & compare top deals
- Expert help, no pressure
- No added fees
Estimated value based on Jome data, T&C apply














- 3 bd
- 2 ba
- 1,257 sqft
447 Tulip Poplar Dr, Moncks Corner, SC 29461
Why tour with Jome?
- No pressure toursTour at your own pace with no sales pressure
- Expert guidanceGet insights from our home buying experts
- Exclusive accessSee homes and deals not available elsewhere
Jome is featured in
- Single-Family
- $277.09/sqft
- $1,200/annual HOA
- East facing
Home description
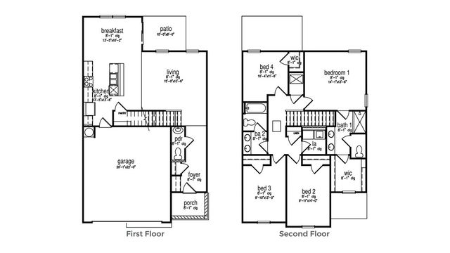
Customize YOUR homesite on this dirt lot! We are excited to offer you the opportunity to add custom options and personalize this home to fit your lifestyle. From selecting finishes and features to designing spaces that suit your needs, you can truly make this home your own before construction begins.This appealing one-story layout optimizes living space with an open concept kitchen situated in between the living room and dining room and all bedrooms upstairs. The living room overlooks a covered patio perfect for relaxing and entertaining outdoors. Bedroom One, located at the back of the house for privacy, also has a suite bathroom with double vanity and walk-in closet. Two other bedrooms share a second bathroom. The laundry room is located at the front of home near the two-car garage, quietly away from living areas and bedrooms. Small covered porch at the front.
All new homes will include D.R. Horton's Home is Connected® package, an industry leading suite of smart home products that keeps homeowners connected with the people and place they value the most. This technology allows homeowners to monitor and control their home from the couch or across the globe. Products include touchscreen interface, video doorbell, front door light, z-wave t-stat, and keyless door lock.
*Square footage dimensions are approximate. *The photos you see here are for illustration purposes only, interior and exterior features, options, colors and selections will differ. Please reach out to sales agent for options.
D R Horton Inc, MLS 25026164
May also be listed on the D.R. Horton website
Information last verified by Jome: Today at 7:41 AM (December 27, 2025)
Home highlights
Cutting-edge data hub in Berkeley County boosting tech jobs, infrastructure, and digital growth in the Charleston area.
Book your tour. Save an average of $18,473. We'll handle the rest.
We collect exclusive builder offers, book your tours, and support you from start to housewarming.
- Confirmed tours
- Get matched & compare top deals
- Expert help, no pressure
- No added fees
Estimated value based on Jome data, T&C apply
Home details
- Property status:
- Pending/Under contract
- Lot size (acres):
- 0.13
- Size:
- 1,257 sqft
- Stories:
- 1
- Beds:
- 3
- Baths:
- 2
- Garage spaces:
- 2
- Facing direction:
- East
Construction details
- Builder Name:
- D.R. Horton
- Year Built:
- 2025
- Roof:
- Fiberglass Roofing
Home features & finishes
- Construction Materials:
- Vinyl Siding
- Cooling:
- Central Air
- Flooring:
- Vinyl Flooring
- Garage/Parking:
- Door OpenerGarageAttached Garage
- Home amenities:
- Home Accessibility Features
- Interior Features:
- Ceiling-HighWalk-In ClosetFoyerPantry
- Kitchen:
- Gas CooktopKitchen Island
- Laundry facilities:
- WasherUtility/Laundry Room
- Property amenities:
- BasementPatioPorch
- Rooms:
- Primary Bedroom On MainKitchenDining RoomFamily RoomLiving RoomOpen Concept FloorplanPrimary Bedroom Downstairs

Get a consultation with our New Homes Expert
- See how your home builds wealth
- Plan your home-buying roadmap
- Discover hidden gems
Utility information
- Heating:
- Tankless water heater
- Utilities:
- Natural Gas Available, Natural Gas on Property

Community details
Carolina Groves
by D.R. Horton, Moncks Corner, SC
- 9 homes
- 14 plans
- 1,182 - 3,389 sqft
View Carolina Groves details
Community amenities
- Club House
- Community Pool
- Park Nearby
More homes in Carolina Groves
Floor plans in Carolina Groves
About the builder - D.R. Horton
Neighborhood
Home address
- City:
- Moncks Corner
- County:
- Berkeley
- Zip Code:
- 29461
Schools in Berkeley County School District
GreatSchools’ Summary Rating calculation is based on 4 of the school’s themed ratings, including test scores, student/academic progress, college readiness, and equity. This information should only be used as a reference. Jome is not affiliated with GreatSchools and does not endorse or guarantee this information. Please reach out to schools directly to verify all information and enrollment eligibility. Data provided by GreatSchools.org © 2025
Places of interest
Getting around
Air quality
Natural hazards risk
Climate hazards can impact homes and communities, with risks varying by location. These scores reflect the potential impact of natural disasters and climate-related risks on Berkeley County
Provided by FEMA

Considering this home?
Our expert will guide your tour, in-person or virtual
Need more information?
Text or call (888) 486-2818
Financials
Estimated monthly payment
Let us help you find your dream home
How many bedrooms are you looking for?
Similar homes nearby
Recently added communities in this area
Nearby communities in Moncks Corner
New homes in nearby cities
More New Homes in Moncks Corner, SC
D R Horton Inc, MLS 25026164
IDX information is provided exclusively for personal, non-commercial use, and may not be used for any purpose other than to identify prospective properties consumers may be interested in purchasing. Copyright Charleston Trident Multiple Listing Service, Inc. All rights reserved. Information is deemed reliable but not guaranteed.
Read moreLast checked Dec 27, 7:55 pm
- Jome
- New homes search
- South Carolina
- Charleston Metropolitan Area
- Berkeley County
- Moncks Corner
- Carolina Groves
- 447 Tulip Poplar Dr, Moncks Corner, SC 29461










































