































- 4 bd
- 2.5 ba
- 1,821 sqft
451 Tulip Poplar Dr, Moncks Corner, SC 29461
- Single-Family
- $216.53/sqft
- $1,200/annual HOA
- East facing
New Homes for Sale Near 451 Tulip Poplar Dr, Moncks Corner, SC 29461
About this Home
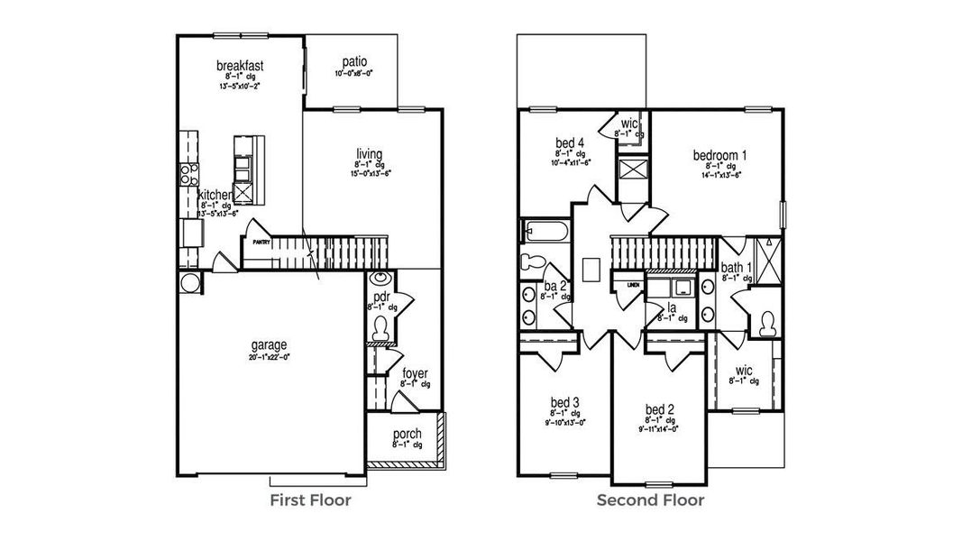
Customize YOUR homesite on this dirt lot! We are excited to offer you the opportunity to add custom options and personalize this home to fit your lifestyle. From selecting finishes and features to designing spaces that suit your needs, you can truly make this home your own before construction begins.The Edmon is a two story, 4 bedroom, 2.5 bath single-family home. This spacious new home is 1,812 square feet of easy, comfortable living. A thoughtfully laid out floorplan, beautiful design, and modern new features makes this new construction home one you won't help but love. The large eat-in kitchen will immediately capture your attention, with brand new cabinets, and stainless-steel appliances, and quartz countertops. Off the kitchen, there is a separate dining area that overlooks the patio. The kitchen also opens into a spacious living area and has a half bath just down the hall.
The primary bedroom is right upstairs with its own walk-in closet and bathroom including double vanities. All bathrooms also include new quartz countertops. A laundry room and secondary bathroom is located conveniently between the two other bedrooms.
This home includes Window Blinds, a Refrigerator, and Garage Door Opener! Additional features include high-efficiency 15 SEER 2 Carrier HVAC, and a tankless water heater for endless hot water!
This home is situated in the Carolina Groves community. Carolina Groves, located in tranquil Moncks Corner, SC conveniently located off of Hwy 52. Developed by D.R Horton, this new construction community offers a home for every stage of life starting in the low $300s. Not only do our homes excel in high efficiency performance, resulting in significant monthly savings on your bills, they are also certified Energy Star rated. Enjoy our amenities including a walk-in resort style pool, grilling area with prep kitchen, outdoor pavilion, playground, and more! In this peaceful community surrounded by ponds and wooded landscape, you will enjoy living in this community. It's the perfect getaway whether you're a first-time homebuyer, a growing family, or just looking to downsize. This community has something for everyone wanting to own their piece of the low country.
All new homes include D.R. Horton's Home is Connected® package, an industry leading suite of smart home products that keeps homeowners connected with the people and places they value most. This smart technology allows homeowners to monitor and control their home from their couch or across the globe. Products include touchscreen interface, video doorbell, front door light, z-wave t-stat, and keyless entry. *Square footage dimensions are approximate.
D R Horton Inc, MLS 25026147
May also be listed on the D.R. Horton website
Information last verified by Jome: Yesterday at 7:40 AM (February 17, 2026)
Home details
- Property status:
- Sold
- Lot size (acres):
- 0.13
- Size:
- 1,821 sqft
- Stories:
- 2
- Beds:
- 4
- Baths:
- 2
- Half baths:
- 1
- Garage spaces:
- 2
- Facing direction:
- East
Construction details
- Builder Name:
- D.R. Horton
- Year Built:
- 2025
- Roof:
- Fiberglass Roofing
Home features & finishes
- Construction Materials:
- Vinyl Siding
- Cooling:
- Central Air
- Flooring:
- Vinyl Flooring
- Garage/Parking:
- Door OpenerGarageAttached Garage
- Home amenities:
- Home Accessibility Features
- Interior Features:
- Ceiling-HighWalk-In ClosetFoyerPantry
- Kitchen:
- Gas CooktopKitchen Island
- Laundry facilities:
- WasherUtility/Laundry Room
- Property amenities:
- PatioPorch
- Rooms:
- KitchenDining RoomFamily RoomLiving RoomBreakfast AreaOpen Concept FloorplanPrimary Bedroom Upstairs
Utility information
- Heating:
- Tankless water heater
- Utilities:
- Natural Gas Available, Natural Gas on Property

Community details
Carolina Groves
by D.R. Horton, Moncks Corner, SC
- 14 homes
- 13 plans
- 1,257 - 3,389 sqft
View Carolina Groves details
Community amenities
- Club House
- Community Pool
- Park Nearby
More homes in Carolina Groves
- Home at address 407 Tulip Poplar Dr, Moncks Corner, SC 29461

$363,950
Move-in ready- 4 bd
- 2 ba
- 1,482 sqft
407 Tulip Poplar Dr, Moncks Corner, SC 29461
- Home at address 406 Tulip Poplar Dr, Moncks Corner, SC 29461

$395,000
Move-in ready- 4 bd
- 2.5 ba
- 1,821 sqft
406 Tulip Poplar Dr, Moncks Corner, SC 29461
- Home at address 219 Yarrow Wy, Moncks Corner, SC 29461

$401,705
Move-in ready- 4 bd
- 2 ba
- 1,774 sqft
219 Yarrow Wy, Moncks Corner, SC 29461
- Home at address 233 Yarrow Wy, Moncks Corner, SC 29461

$406,730
Move-in ready- 4 bd
- 2.5 ba
- 2,203 sqft
233 Yarrow Wy, Moncks Corner, SC 29461
- Home at address 430 Tulip Poplar Dr, Moncks Corner, SC 29461

$408,705
Move-in ready- 4 bd
- 2 ba
- 1,774 sqft
430 Tulip Poplar Dr, Moncks Corner, SC 29461
- Home at address 452 Tulip Poplar Dr, Moncks Corner, SC 29461

$417,785
Move-in ready- 5 bd
- 3 ba
- 2,361 sqft
452 Tulip Poplar Dr, Moncks Corner, SC 29461
Floor plans in Carolina Groves
About the builder - D.R. Horton

- 1,205communities on Jome
- 9,526homes on Jome
Neighborhood
Home address
- City:
- Moncks Corner
- County:
- Berkeley
- Zip Code:
- 29461
Schools in Berkeley County School District
GreatSchools’ Summary Rating calculation is based on 4 of the school’s themed ratings, including test scores, student/academic progress, college readiness, and equity. This information should only be used as a reference. Jome is not affiliated with GreatSchools and does not endorse or guarantee this information. Please reach out to schools directly to verify all information and enrollment eligibility. Data provided by GreatSchools.org © 2025
Places of interest
Getting around
Air quality
Noise level
A Soundscore™ rating is a number between 50 (very loud) and 100 (very quiet) that tells you how loud a location is due to environmental noise.
Financials
Nearby communities in Moncks Corner
Homes in Moncks Corner by D.R. Horton
Recently added communities in this area
Other Builders in Moncks Corner, SC
Nearby sold homes
New homes in nearby cities
More New Homes in Moncks Corner, SC
D R Horton Inc, MLS 25026147
IDX information is provided exclusively for personal, non-commercial use, and may not be used for any purpose other than to identify prospective properties consumers may be interested in purchasing. Copyright Charleston Trident Multiple Listing Service, Inc. All rights reserved. Information is deemed reliable but not guaranteed.
Read moreLast checked Feb 17, 7:55 pm
- Jome
- New homes search
- South Carolina
- Charleston Metropolitan Area
- Berkeley County
- Moncks Corner
- Carolina Groves
- 451 Tulip Poplar Dr, Moncks Corner, SC 29461




































































