




- 3 bd
- 2.5 ba
- 1,456 sqft
2928 Sloan Dr, Charlotte, NC 28208
- Single-Family
- $202.61/sqft
- 255 days on Jome
New Homes for Sale Near 2928 Sloan Dr, Charlotte, NC 28208
About this Home
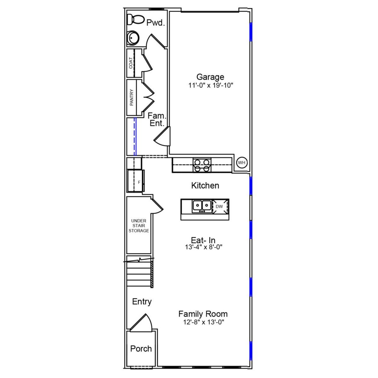
Don’t let this stunning two-story end-unit townhome pass you by! Offering three bedrooms, two full bathrooms, and a convenient powder room, this home is designed for modern living. Step inside to find an open-concept great room that flows effortlessly into the eat-in kitchen, complete with a spacious island—ideal for entertaining loved ones. Upstairs, the primary suite boasts a boxed ceiling, a walk-in closet, and a private bath with dual vanities. For added convenience, the laundry closet is just steps away. Two additional bedrooms and a full bathroom complete the upper level. As you enter from the attached one-car garage, you’ll appreciate the built-in bench and cubby system—perfect for keeping everyday essentials organized.
May also be listed on the Mungo Homes website
Information last verified by Jome: Wednesday at 6:01 AM (January 28, 2026)
Home details
- Property status:
- Sold
- Neighborhood:
- Toddville Road
- Size:
- 1,456 sqft
- Stories:
- 2
- Beds:
- 3
- Baths:
- 2
- Half baths:
- 1
- Garage spaces:
- 1
Construction details
- Builder Name:
- Mungo Homes
- Completion Date:
- February, 2026
Home features & finishes
- Garage/Parking:
- Garage
- Rooms:
- Primary Bedroom Upstairs

Community details
Sloan Station
by Mungo Homes, Charlotte, NC
- 22 homes
- 5 plans
- 1,250 - 1,672 sqft
View Sloan Station details
More homes in Sloan Station
- Home at address 2818 Lehigh Rd, Charlotte, NC 28208

$277,815
Under construction- 3 bd
- 2.5 ba
- 1,288 sqft
2818 Lehigh Rd, Charlotte, NC 28208
- Home at address 5857 Tuckaseegee Rd, Charlotte, NC 28208

$314,915
Under construction- 3 bd
- 2.5 ba
- 1,505 sqft
5857 Tuckaseegee Rd, Charlotte, NC 28208
- Home at address 5857 Tuckaseegee Rd, Unit 04, Charlotte, NC 28208

$314,915
Under construction- 3 bd
- 2.5 ba
- 1,505 sqft
5857 Tuckaseegee Rd, Unit 04, Charlotte, NC 28208
- Home at address 5835 Tuckaseegee Rd, Unit 09, Charlotte, NC 28208

$318,439
Under construction- 3 bd
- 2.5 ba
- 1,456 sqft
5835 Tuckaseegee Rd, Unit 09, Charlotte, NC 28208
- Home at address 5835 Tuckaseegee Rd, Charlotte, NC 28208

$318,439
Under construction- 3 bd
- 2.5 ba
- 1,456 sqft
5835 Tuckaseegee Rd, Charlotte, NC 28208
- Home at address 5865 Tuckaseegee Rd, Unit 02, Charlotte, NC 28208

$318,539
Under construction- 3 bd
- 2.5 ba
- 1,456 sqft
5865 Tuckaseegee Rd, Unit 02, Charlotte, NC 28208
Floor plans in Sloan Station
- View details for Laurens - Genesis Value Collection

Laurens - Genesis Value Collection
$287,000+- 3 bd
- 2.5 ba
- 1,250 sqft
- View details for Clover - Genesis Value Collection

Clover - Genesis Value Collection
$295,000+- 3 bd
- 2.5 ba
- 1,505 sqft
About the builder - Mungo Homes
Neighborhood
Home address
- Neighborhood:
- Toddville Road
- City:
- Charlotte
- County:
- Mecklenburg
- Zip Code:
- 28208
Schools in Charlotte-Mecklenburg Schools
GreatSchools’ Summary Rating calculation is based on 4 of the school’s themed ratings, including test scores, student/academic progress, college readiness, and equity. This information should only be used as a reference. Jome is not affiliated with GreatSchools and does not endorse or guarantee this information. Please reach out to schools directly to verify all information and enrollment eligibility. Data provided by GreatSchools.org © 2025
Places of interest
Getting around
4 nearby routes: 4 bus, 0 rail, 0 otherAir quality
Noise level
A Soundscore™ rating is a number between 50 (very loud) and 100 (very quiet) that tells you how loud a location is due to environmental noise.
Financials
Nearby communities in Charlotte
Homes in Charlotte Neighborhoods
- Nevin Community
- Toddville Road
- Cotswold
- Steele Creek
- Oakdale South
- Back Creek Church Road
- Beatties Ford-Trinity
- Newell
- Smallwood
- Hickory Grove
- Highland Creek
- Provincetowne
- North Charlotte
- Enderly Park
- Westerly Hills
- Montclaire South
- York Road
- Myers Park
- Ponderosa-Wingate
- Eagle Lake
- Mallard Creek - Withrow Downs
- Farm Pond
- Mineral Springs-Rumble Road
- Providence Park
- Lansdowne
- Derita-Statesville
- Echo Hills
- Tryon Hills
- Starmount
- Coulwood West
- Elizabeth
- Wessex Square
- Eastland-Wilora Lake
- Oaklawn
- Oakhurst
- Seversville
- Wendover-Sedgewood
- Ballantyne West
- Sugaw Creek-Ritch Ave
- Newell South
- Sedgefield
- Optimist Park
- Prosperity Church Road
- Plaza-Shamrock
- Foxcroft
- Plaza Midwood
- Sherwood Forest
- Slater Rd-Hamilton Circle
- Sardis Forest
- Sunset Road
- Biddleville
- Lincoln Heights
- University City North
- Barclay Downs
- Villa Heights
- Dilworth
- Marshbrooke
- Olde Providence North
- Druid Hills South
- College Downs
- Hidden Valley
- Whiteoak
- Sterling
- Belmont
- Wilson Heights
- Oxford Hunt
- Lockwood
- Westchester
- Coulwood East
- Mountain Island
- Freedom Park
- Ashbrook-Clawson Village
- Lakewood
- Stonehaven
- Madison Park
- Chantilly
- Sardis Woods
- Druid Hills North
- Harris-Houston
- Thomasboro-Hoskins
- Carmel
- Firestone-Garden Park
- Briarcreek-Woodland
- Brookhill
- Reid Park
- Providence Estates East
- Becton Park
- Double Oaks
- Washington Heights
- Providence Plantation
- Revolution Park
- Ashley Park
- Plaza-Eastway
- Downtown Charlotte
- Third Ward
- Mountainbrook
- Seven Eagles
- Collingwood
- Plaza Hills
- West Sugar Creek-W T Harris Bl
Homes in Charlotte by Mungo Homes
Recently added communities in this area
Other Builders in Charlotte, NC
Nearby sold homes
New homes in nearby cities
More New Homes in Charlotte, NC
- Jome
- New homes search
- North Carolina
- Charlotte Metropolitan Area
- Mecklenburg County
- Charlotte
- Sloan Station
- 2928 Sloan Dr, Charlotte, NC 28208



























































