








Book your tour. Save an average of $18,473. We'll handle the rest.
We collect exclusive builder offers, book your tours, and support you from start to housewarming.
- Confirmed tours
- Get matched & compare top deals
- Expert help, no pressure
- No added fees
Estimated value based on Jome data, T&C apply





Why tour with Jome?
- No pressure toursTour at your own pace with no sales pressure
- Expert guidanceGet insights from our home buying experts
- Exclusive accessSee homes and deals not available elsewhere
Jome is featured in
- Townhouse
- Under construction
- $216.34/sqft
- 0.06-acre lot
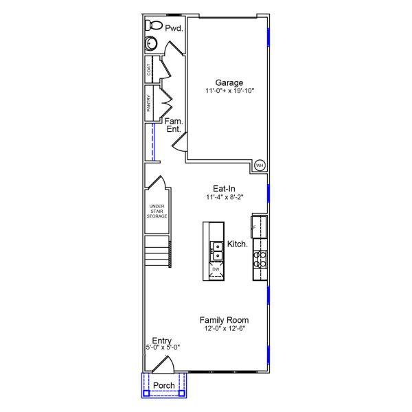
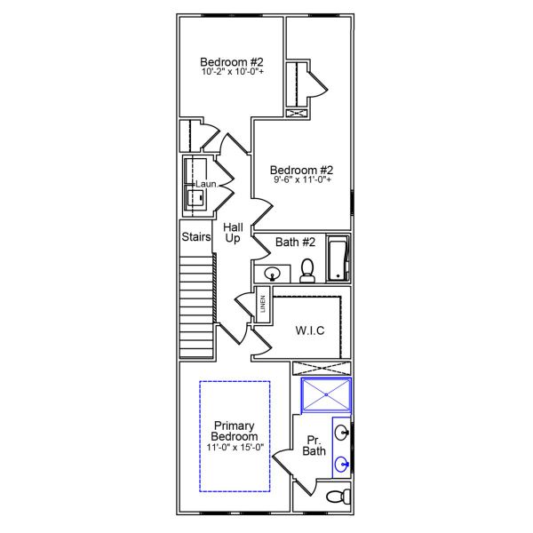
Home description
Don't miss this thoughtfully designed end-unit two-story townhome offers three bedrooms and two-and-a-half bathrooms. Just inside the entrance, you'll find an open-concept great room that flows seamlessly into the kitchen and eat-in dining area. Upstairs, the primary suite includes a spacious walk-in closet, with a boxed ceiling and dual vanities for added luxury. Two additional bedrooms and a full bathroom are also located on the second floor, along with a conveniently placed laundry closet just outside the secondary bedrooms. A powder room is located just inside the entry from the attached one-car garage, with a built-in bench and cubby to keep essentials in check.
Mungo Homes, MLS CAR4337761
May also be listed on the Mungo Homes website
Information last verified by Jome: Today at 12:01 AM (April 19, 2026)
Book your tour. Save an average of $18,473. We'll handle the rest.
We collect exclusive builder offers, book your tours, and support you from start to housewarming.
- Confirmed tours
- Get matched & compare top deals
- Expert help, no pressure
- No added fees
Estimated value based on Jome data, T&C apply
Home details
- Property status:
- Under construction
- Neighborhood:
- Toddville Road
- Lot size (acres):
- 0.06
- Size:
- 1,505 sqft
- Stories:
- 2
- Beds:
- 3
- Baths:
- 2
- Half baths:
- 1
- Garage spaces:
- 1
- Fence:
- Fenced Yard
Construction details
- Builder Name:
- Mungo Homes
- Completion Date:
- April, 2026
- Year Built:
- 2026
Home features & finishes
- Cooling:
- Central Air
- Flooring:
- Vinyl FlooringCarpet Flooring
- Foundation Details:
- Slab
- Garage/Parking:
- Door OpenerGarageRear Entry Garage/ParkingAttached Garage
- Kitchen:
- DishwasherMicrowave OvenDisposalKitchen Range
- Laundry facilities:
- Laundry Facilities In HallLaundry Facilities On Upper Level
- Pets:
- Pets Allowed
- Property amenities:
- Yard
- Rooms:
- Primary Bedroom Upstairs

Get a consultation with our New Homes Expert
- See how your home builds wealth
- Plan your home-buying roadmap
- Discover hidden gems
Utility information
- Heating:
- Water Heater, Central Heating
- Sewer:
- Public Sewer
- Water source:
- Public

Community details
Sloan Station
by Mungo Homes, Charlotte, NC
- 12 homes
- 4 plans
- 1,456 - 1,697 sqft
View Sloan Station details
More homes in Sloan Station
- Home at address 5857 Tuckaseegee Rd, Charlotte, NC 28208

Clover
Savings$298,000
- 3 bd
- 2.5 ba
- 1,505 sqft
5857 Tuckaseegee Rd, Charlotte, NC 28208
- Home at address 5835 Tuckaseegee Rd, Charlotte, NC 28208

Cannalily
Savings$318,439
- 3 bd
- 2.5 ba
- 1,456 sqft
5835 Tuckaseegee Rd, Charlotte, NC 28208
- Home at address 5865 Tuckaseegee Rd, Charlotte, NC 28208

Cannalily
Savings$318,539
- 3 bd
- 2.5 ba
- 1,456 sqft
5865 Tuckaseegee Rd, Charlotte, NC 28208
- Home at address 5861 Tuckaseegee Rd, Charlotte, NC 28208

Cannalily
Savings$318,864
- 3 bd
- 2.5 ba
- 1,456 sqft
5861 Tuckaseegee Rd, Charlotte, NC 28208
- Home at address 5853 Tuckaseegee Rd, Charlotte, NC 28208

Clover
Savings$325,294
- 3 bd
- 2.5 ba
- 1,505 sqft
5853 Tuckaseegee Rd, Charlotte, NC 28208
- Home at address 3013 Kingsfield Rd, Unit 48, Charlotte, NC 28208

Home
Savings$328,200
- 3 bd
- 2.5 ba
- 1,672 sqft
3013 Kingsfield Rd, Unit 48, Charlotte, NC 28208
Floor plans in Sloan Station
- View details for Clover - Genesis Value Collection

Clover - Genesis Value Collection
Savings$295,000+- 3 bd
- 2.5 ba
- 1,505 sqft
- View details for Cannalily - Genesis Value Collection

Cannalily - Genesis Value Collection
Savings$300,000+- 3 bd
- 2.5 ba
- 1,456 sqft
About the builder - Mungo Homes
Neighborhood
Home address
- Neighborhood:
- Toddville Road
- City:
- Charlotte
- County:
- Mecklenburg
- Zip Code:
- 28208
Schools in Charlotte-Mecklenburg Schools
GreatSchools’ Summary Rating calculation is based on 4 of the school’s themed ratings, including test scores, student/academic progress, college readiness, and equity. This information should only be used as a reference. Jome is not affiliated with GreatSchools and does not endorse or guarantee this information. Please reach out to schools directly to verify all information and enrollment eligibility. Data provided by GreatSchools.org © 2025
Places of interest
Getting around
4 nearby routes: 4 bus, 0 rail, 0 otherAir quality
Noise level
A Soundscore™ rating is a number between 50 (very loud) and 100 (very quiet) that tells you how loud a location is due to environmental noise.

Considering this home?
Our expert will guide your tour, in-person or virtual
Need more information?
Text or call (888) 545-5198
Financials
Estimated monthly payment
Let us help you find your dream home
How many bedrooms are you looking for?
Similar homes nearby
Recently added communities in this area
Nearby communities in Charlotte
New homes in nearby cities
More New Homes in Charlotte, NC
Mungo Homes, MLS CAR4337761
Based on information submitted to the MLS GRID as of 10/21/2024 2:31 PM CDT. All data is obtained from various sources and may not have been verified by the broker or MLS GRID. Supplied Open House Information is subject to change without notice. All information should be independently reviewed and verified for accuracy. Properties may or may not be listed by the office/agent presenting the information. Properties displayed may be listed or sold by various participants in the MLS. The Digital Millennium Copyright Act of 1998, 17 U.S.C. § 512 (the “DMCA”) provides recourse for copyright owners who believe that material appearing on the Internet infringes their rights under U.S. copyright law. If you believe in good faith that any content or material made available in connection with our website or services infringes your copyright, you (or your agent) may send us a notice requesting that the content or material be removed, or access to it blocked. Notices must be sent in writing by email to DMCAnotice@MLSGrid.com. The DMCA requires that your notice of alleged copyright infringement include the following information: (1) description of the copyrighted work that is the subject of claimed infringement; (2) description of the alleged infringing content and information sufficient to permit us to locate the content; (3) contact information for you, including your address, telephone number and email address; (4) a statement by you that you have a good faith belief that the content in the manner complained of is not authorized by the copyright owner, or its agent, or by the operation of any law; (5) a statement by you, signed under penalty of perjury, that the information in the notification is accurate and that you have the authority to enforce the copyrights that are claimed to be infringed; and (6) a physical or electronic signature of the copyright owner or a person authorized to act on the copyright owner’s behalf. Failure to include all of the above information may result in the delay of the processing of your complaint.
Read moreLast checked Apr 19, 11:00 am
- Jome
- New homes search
- North Carolina
- Charlotte Metropolitan Area
- Mecklenburg County
- Charlotte
- Sloan Station
- 5847 Tuckaseegee Rd, Charlotte, NC 28208





























