




- 3 bd
- 2.5 ba
- 1,672 sqft
2716 Lehigh Rd, Charlotte, NC 28208
- Townhouse
- $196.17/sqft
- 0.04-acre lot
- 381 days on Jome
New Homes for Sale Near 2716 Lehigh Rd, Charlotte, NC 28208
About this Home
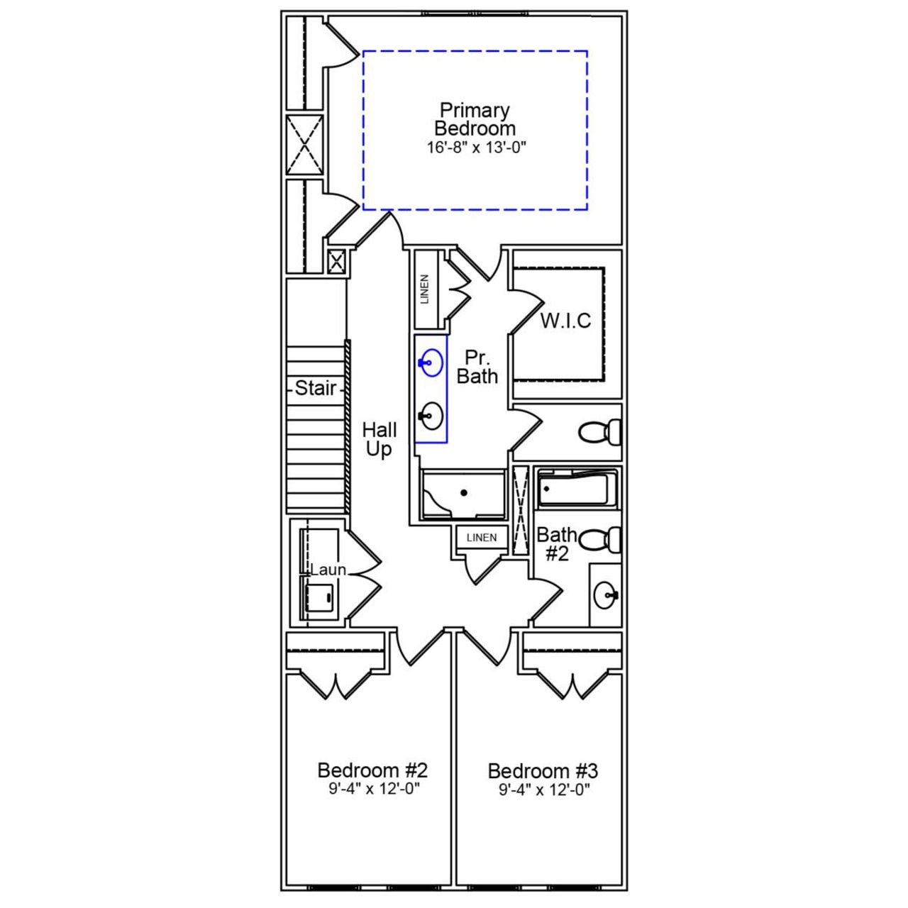
Low maintenance and great style meet in this charming two-story townhome! Step inside to an open-concept layout, where the spacious kitchen with a large island seamlessly connects to the bright living area, all featuring durable luxury vinyl plank flooring. A convenient drop zone near the garage helps keep everyday items organized. Upstairs, the primary suite offers a walk-in closet, plus two additional closets for all your storage needs. The two additional bedrooms are designed with large front-facing windows that bring in an abundance of natural light, creating a warm and inviting atmosphere.
Mungo Homes, MLS CAR4257320
May also be listed on the Mungo Homes website
Information last verified by Jome: Tuesday at 11:00 AM (January 20, 2026)
Home details
- Property status:
- Sold
- Neighborhood:
- Toddville Road
- Lot size (acres):
- 0.04
- Size:
- 1,672 sqft
- Stories:
- 2
- Beds:
- 3
- Baths:
- 2.5
- Garage spaces:
- 1
Construction details
- Builder Name:
- Mungo Homes
- Completion Date:
- August, 2025
- Year Built:
- 2025
- Roof:
- Shingle Roofing
Home features & finishes
- Cooling:
- Central Air
- Flooring:
- Vinyl FlooringCarpet Flooring
- Foundation Details:
- Slab
- Garage/Parking:
- Door OpenerGarageFront Entry Garage/ParkingAttached Garage
- Interior Features:
- Walk-In ClosetPantry
- Kitchen:
- DishwasherMicrowave OvenDisposalKitchen IslandKitchen Range
- Laundry facilities:
- Laundry Facilities In HallLaundry Facilities On Upper LevelUtility/Laundry Room
- Pets:
- Pets Allowed
- Rooms:
- KitchenDining RoomFamily RoomPrimary Bedroom Upstairs
Utility information
- Heating:
- Water Heater, Central Heating

Community details
Sloan Station
by Mungo Homes, Charlotte, NC
- 22 homes
- 5 plans
- 1,250 - 1,672 sqft
View Sloan Station details
Community amenities
- Dog Park
More homes in Sloan Station
- Home at address 2818 Lehigh Rd, Charlotte, NC 28208

$277,815
Under construction- 3 bd
- 2.5 ba
- 1,288 sqft
2818 Lehigh Rd, Charlotte, NC 28208
- Home at address 5857 Tuckaseegee Rd, Charlotte, NC 28208

$314,915
Under construction- 3 bd
- 2.5 ba
- 1,505 sqft
5857 Tuckaseegee Rd, Charlotte, NC 28208
- Home at address 5857 Tuckaseegee Rd, Unit 04, Charlotte, NC 28208

$314,915
Under construction- 3 bd
- 2.5 ba
- 1,505 sqft
5857 Tuckaseegee Rd, Unit 04, Charlotte, NC 28208
- Home at address 5835 Tuckaseegee Rd, Unit 09, Charlotte, NC 28208

$318,439
Under construction- 3 bd
- 2.5 ba
- 1,456 sqft
5835 Tuckaseegee Rd, Unit 09, Charlotte, NC 28208
- Home at address 5835 Tuckaseegee Rd, Charlotte, NC 28208

$318,439
Under construction- 3 bd
- 2.5 ba
- 1,456 sqft
5835 Tuckaseegee Rd, Charlotte, NC 28208
- Home at address 5865 Tuckaseegee Rd, Unit 02, Charlotte, NC 28208

$318,539
Under construction- 3 bd
- 2.5 ba
- 1,456 sqft
5865 Tuckaseegee Rd, Unit 02, Charlotte, NC 28208
Floor plans in Sloan Station
- View details for Laurens - Genesis Value Collection

Laurens - Genesis Value Collection
$287,000+- 3 bd
- 2.5 ba
- 1,250 sqft
- View details for Clover - Genesis Value Collection

Clover - Genesis Value Collection
$295,000+- 3 bd
- 2.5 ba
- 1,505 sqft
About the builder - Mungo Homes
Neighborhood
Home address
- Neighborhood:
- Toddville Road
- City:
- Charlotte
- County:
- Mecklenburg
- Zip Code:
- 28208
Schools in Charlotte-Mecklenburg Schools
GreatSchools’ Summary Rating calculation is based on 4 of the school’s themed ratings, including test scores, student/academic progress, college readiness, and equity. This information should only be used as a reference. Jome is not affiliated with GreatSchools and does not endorse or guarantee this information. Please reach out to schools directly to verify all information and enrollment eligibility. Data provided by GreatSchools.org © 2025
Places of interest
Getting around
4 nearby routes: 4 bus, 0 rail, 0 otherAir quality
Noise level
A Soundscore™ rating is a number between 50 (very loud) and 100 (very quiet) that tells you how loud a location is due to environmental noise.
Financials
Nearby communities in Charlotte
Homes in Charlotte Neighborhoods
- Nevin Community
- Toddville Road
- Cotswold
- Steele Creek
- Oakdale South
- Back Creek Church Road
- Beatties Ford-Trinity
- Newell
- Smallwood
- Hickory Grove
- Highland Creek
- Provincetowne
- North Charlotte
- Enderly Park
- Westerly Hills
- Montclaire South
- York Road
- Myers Park
- Ponderosa-Wingate
- Eagle Lake
- Mallard Creek - Withrow Downs
- Farm Pond
- Mineral Springs-Rumble Road
- Providence Park
- Lansdowne
- Derita-Statesville
- Echo Hills
- Tryon Hills
- Starmount
- Coulwood West
- Elizabeth
- Wessex Square
- Eastland-Wilora Lake
- Oaklawn
- Oakhurst
- Seversville
- Wendover-Sedgewood
- Ballantyne West
- Sugaw Creek-Ritch Ave
- Newell South
- Sedgefield
- Optimist Park
- Prosperity Church Road
- Plaza-Shamrock
- Foxcroft
- Plaza Midwood
- Sherwood Forest
- Slater Rd-Hamilton Circle
- Sardis Forest
- Sunset Road
- Biddleville
- Lincoln Heights
- University City North
- Barclay Downs
- Villa Heights
- Dilworth
- Marshbrooke
- Olde Providence North
- Druid Hills South
- College Downs
- Hidden Valley
- Whiteoak
- Sterling
- Belmont
- Wilson Heights
- Oxford Hunt
- Lockwood
- Westchester
- Coulwood East
- Mountain Island
- Freedom Park
- Ashbrook-Clawson Village
- Lakewood
- Stonehaven
- Madison Park
- Chantilly
- Sardis Woods
- Druid Hills North
- Harris-Houston
- Thomasboro-Hoskins
- Carmel
- Firestone-Garden Park
- Briarcreek-Woodland
- Brookhill
- Reid Park
- Providence Estates East
- Becton Park
- Double Oaks
- Washington Heights
- Providence Plantation
- Revolution Park
- Ashley Park
- Plaza-Eastway
- Downtown Charlotte
- Third Ward
- Mountainbrook
- Seven Eagles
- Collingwood
- Plaza Hills
- West Sugar Creek-W T Harris Bl
Homes in Charlotte by Mungo Homes
Recently added communities in this area
Other Builders in Charlotte, NC
Nearby sold homes
New homes in nearby cities
More New Homes in Charlotte, NC
Mungo Homes, MLS CAR4257320
Based on information submitted to the MLS GRID as of 10/21/2024 2:31 PM CDT. All data is obtained from various sources and may not have been verified by the broker or MLS GRID. Supplied Open House Information is subject to change without notice. All information should be independently reviewed and verified for accuracy. Properties may or may not be listed by the office/agent presenting the information. Properties displayed may be listed or sold by various participants in the MLS. The Digital Millennium Copyright Act of 1998, 17 U.S.C. § 512 (the “DMCA”) provides recourse for copyright owners who believe that material appearing on the Internet infringes their rights under U.S. copyright law. If you believe in good faith that any content or material made available in connection with our website or services infringes your copyright, you (or your agent) may send us a notice requesting that the content or material be removed, or access to it blocked. Notices must be sent in writing by email to DMCAnotice@MLSGrid.com. The DMCA requires that your notice of alleged copyright infringement include the following information: (1) description of the copyrighted work that is the subject of claimed infringement; (2) description of the alleged infringing content and information sufficient to permit us to locate the content; (3) contact information for you, including your address, telephone number and email address; (4) a statement by you that you have a good faith belief that the content in the manner complained of is not authorized by the copyright owner, or its agent, or by the operation of any law; (5) a statement by you, signed under penalty of perjury, that the information in the notification is accurate and that you have the authority to enforce the copyrights that are claimed to be infringed; and (6) a physical or electronic signature of the copyright owner or a person authorized to act on the copyright owner’s behalf. Failure to include all of the above information may result in the delay of the processing of your complaint.
Read moreLast checked Mar 7, 5:00 am
- Jome
- New homes search
- North Carolina
- Charlotte Metropolitan Area
- Mecklenburg County
- Charlotte
- Sloan Station
- 2716 Lehigh Rd, Charlotte, NC 28208






























































