




Book your tour. Save an average of $18,473. We'll handle the rest.
- Confirmed tours
- Get matched & compare top deals
- Expert help, no pressure
- No added fees
Estimated value based on Jome data, T&C apply
- 4 bd
- 2.5 ba
- 3,016 sqft
3619 Grappler Cir Se, Palm Bay, FL 32909
Why tour with Jome?
- No pressure toursTour at your own pace with no sales pressure
- Expert guidanceGet insights from our home buying experts
- Exclusive accessSee homes and deals not available elsewhere
Jome is featured in
- Single-Family
- Quick move-in
- $145.1/sqft
- $85/monthly HOA
Home description
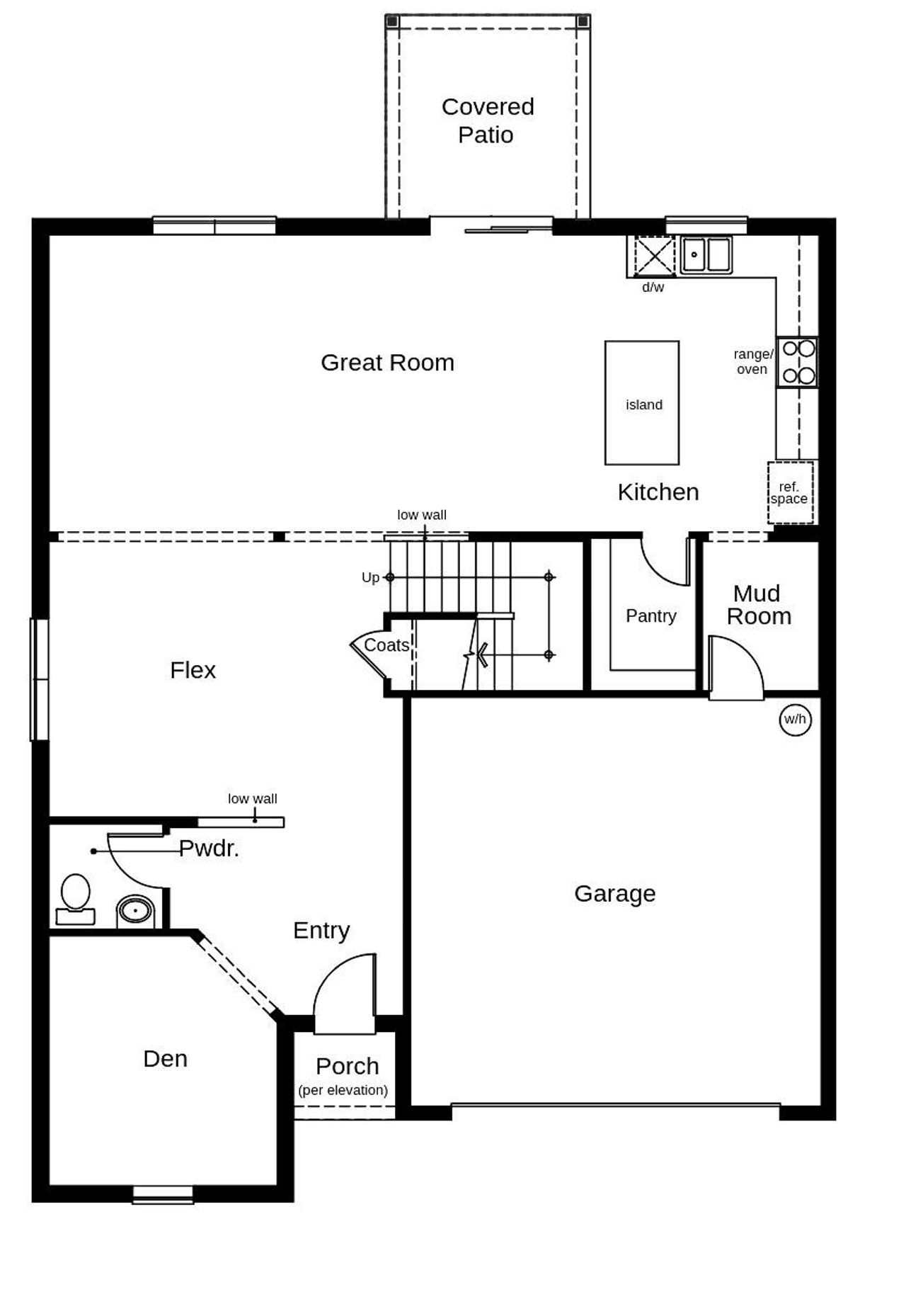
This beautifully designed, two-story home showcases an open floor plan with 9-ft. first-floor ceilings and a welcoming great room that flows seamlessly into an additional Flex Space and den. The modern kitchen boasts a spacious island, walk-in pantry, Whirlpool® stainless steel appliances, 30-in. upper cabinets and durable laminate countertops. Upstairs, a versatile loft is perfect for a home office or study area. The private primary suite features a generous walk-in closet and luxurious connecting bath that offers a dual-sink vanity, linen closet and walk-in shower with tile surround.
May also be listed on the KB Home website
Information last verified by Jome: Today at 12:47 AM (January 21, 2026)
Book your tour. Save an average of $18,473. We'll handle the rest.
We collect exclusive builder offers, book your tours, and support you from start to housewarming.
- Confirmed tours
- Get matched & compare top deals
- Expert help, no pressure
- No added fees
Estimated value based on Jome data, T&C apply
Home details
- Property status:
- Move-in ready
- Size:
- 3,016 sqft
- Stories:
- 2
- Beds:
- 4
- Baths:
- 2.5
- Garage spaces:
- 2
Construction details
- Builder Name:
- KB Home
Home features & finishes
- Garage/Parking:
- GarageAttached Garage
- Interior Features:
- Walk-In ClosetFoyerPantryLoft
- Laundry facilities:
- Utility/Laundry Room
- Property amenities:
- Porch
- Rooms:
- Flex RoomKitchenDining RoomFamily RoomPrimary Bedroom Downstairs

Get a consultation with our New Homes Expert
- See how your home builds wealth
- Plan your home-buying roadmap
- Discover hidden gems

Community details
Gardens at Waterstone II
by KB Home, Palm Bay, FL
- 2 homes
- 9 plans
- 1,541 - 3,203 sqft
View Gardens at Waterstone II details
More homes in Gardens at Waterstone II
- Home at address 3613 Barringer Dr Se, Palm Bay, FL 32909

Home
$396,114
- 4 bd
- 2 ba
- 1,989 sqft
3613 Barringer Dr Se, Palm Bay, FL 32909
Floor plans in Gardens at Waterstone II
About the builder - KB Home
Neighborhood
Home address
Schools in Brevard County School District
GreatSchools’ Summary Rating calculation is based on 4 of the school’s themed ratings, including test scores, student/academic progress, college readiness, and equity. This information should only be used as a reference. Jome is not affiliated with GreatSchools and does not endorse or guarantee this information. Please reach out to schools directly to verify all information and enrollment eligibility. Data provided by GreatSchools.org © 2025
Places of interest
Getting around
Air quality

Considering this home?
Our expert will guide your tour, in-person or virtual
Need more information?
Text or call (888) 486-2818
Financials
Estimated monthly payment
Let us help you find your dream home
How many bedrooms are you looking for?
Similar homes nearby
Recently added communities in this area
Nearby communities in Palm Bay
New homes in nearby cities
More New Homes in Palm Bay, FL
- Jome
- New homes search
- Florida
- Space Coast
- Brevard County
- Palm Bay
- Gardens at Waterstone II
- 3619 Grappler Cir Se, Palm Bay, FL 32909





























