

















































- 6 bd
- 4.5 ba
- 4,905 sqft
6466 Still Pine Cir, Castle Pines, CO 80108
- Single-Family
- $341.52/sqft
- $1,695/annual HOA
- Southeast facing
New Homes for Sale Near 6466 Still Pine Cir, Castle Pines, CO 80108
About this Home
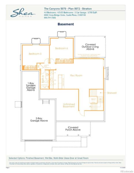
Gorgeous 2 story home with walk out basement backing to open space in The Canyons. This home features 6 bedrooms, 5.5 baths, large loft, study with barn doors, finished basement with wet bar, fireplace, 2 covered decks, and 3-bay finished tandem garage. Design finishes include Kentwood engineered wood flooring in Bohemia/Brushed Oak North Shore, Quartzite slab counter tops in Francini/White Pearl/polished, Silestone engineered counter tops in Charcoal Soapstone/polished, and Aristokraft Douglas cabinets in Purestyle Frost and Winstead Birch in Burlap. Please contact a Community Representative for complete details on the interior design finishes for this home.
The Canyons Metropolitan Districts provide various services to the property and in addition to the estimated taxes, a $30 per month operations fee is imposed.
RE/MAX Professionals, MLS REC2881809
May also be listed on the Shea Homes website
Information last verified by Jome: Saturday at 10:00 PM (March 7, 2026)
Home details
- Property status:
- Sold
- Lot size (acres):
- 0.17
- Size:
- 4,905 sqft
- Stories:
- 2
- Beds:
- 6
- Baths:
- 4
- Half baths:
- 1
- Garage spaces:
- 3
- Fence:
- No Fence
- Facing direction:
- Southeast
Construction details
- Builder Name:
- Shea Homes
- Year Built:
- 2025
- Roof:
- Composition Roofing
Home features & finishes
- Construction Materials:
- FrameStoneWood Siding
- Flooring:
- Wood FlooringCarpet FlooringTile Flooring
- Foundation Details:
- Structural
- Garage/Parking:
- GarageAttached GarageTandem Parking
- Interior Features:
- Walk-In ClosetPantryWet Bar
- Kitchen:
- DishwasherMicrowave OvenOvenRefrigeratorDisposalQuartz countertopKitchen IslandKitchen Range
- Laundry facilities:
- Laundry Facilities In UnitDryerWasher
- Pets:
- Pets AllowedCat(s) Only AllowedDog(s) Only Allowed
- Property amenities:
- BasementDeckFireplaceYardSmart Home SystemPorch
- Rooms:
- KitchenFamily RoomOpen Concept Floorplan
- Security system:
- Radon DetectorSmart Video DoorbellSmoke DetectorCarbon Monoxide Detector
Room details
Bedroom 1
Utility information
- Heating:
- Forced Air Heating
- Utilities:
- Electricity Available, Natural Gas Available, Internet Cable, Phone Available, Cable Available, High Speed Internet Access

Community details
Luxe at The Canyons at The Canyons
by Shea Homes, Castle Pines, CO
- 6 homes
- 6 plans
- 2,825 - 6,057 sqft
View Luxe at The Canyons details
More homes in Luxe at The Canyons
- Home at address 6479 Still Pine Cir, Castle Pines, CO 80108

$1,470,080
Move-in ready- 6 bd
- 5.5 ba
- 4,905 sqft
6479 Still Pine Cir, Castle Pines, CO 80108
- Home at address 6491 Still Pine Cir, Castle Pines, CO 80108

$1,531,270
Under construction- 6 bd
- 4.5 ba
- 5,048 sqft
6491 Still Pine Cir, Castle Pines, CO 80108
- Home at address 6475 Still Pine Cir, Castle Pines, CO 80108

$1,597,540
Move-in ready- 7 bd
- 6.5 ba
- 5,609 sqft
6475 Still Pine Cir, Castle Pines, CO 80108
- Home at address 6503 Still Pine Cir, Castle Pines, CO 80108

$1,630,000
Under construction- 7 bd
- 4.5 ba
- 5,968 sqft
6503 Still Pine Cir, Castle Pines, CO 80108
- Home at address 6455 Still Pine Cir, Castle Pines, CO 80108

$1,662,380
Move-in ready- 7 bd
- 6.5 ba
- 5,805 sqft
6455 Still Pine Cir, Castle Pines, CO 80108
- Home at address 6469 Still Pine Cir, Castle Pines, CO 80108

$1,710,490
Under construction- 7 bd
- 6.5 ba
- 6,057 sqft
6469 Still Pine Cir, Castle Pines, CO 80108
Floor plans in Luxe at The Canyons
About the builder - Shea Homes
Neighborhood
Home address
- City:
- Castle Pines
- County:
- Douglas
- Zip Code:
- 80108
Schools in Douglas County School District RE-1
- Grades UG-UGPrivatebrightmont academy - castle pines3.3 mi858 w happy canyon rd ste 170na
GreatSchools’ Summary Rating calculation is based on 4 of the school’s themed ratings, including test scores, student/academic progress, college readiness, and equity. This information should only be used as a reference. Jome is not affiliated with GreatSchools and does not endorse or guarantee this information. Please reach out to schools directly to verify all information and enrollment eligibility. Data provided by GreatSchools.org © 2025
Places of interest
Getting around
Air quality
Noise level
A Soundscore™ rating is a number between 50 (very loud) and 100 (very quiet) that tells you how loud a location is due to environmental noise.
Financials
Nearby communities in Castle Pines
Homes in Castle Pines by Shea Homes
Recently added communities in this area
Other Builders in Castle Pines, CO
Nearby sold homes
New homes in nearby cities
More New Homes in Castle Pines, CO
RE/MAX Professionals, MLS REC2881809
The content relating to real estate for sale in this Web site comes in part from the Internet Data eXchange (“IDX”) program of METROLIST, INC., DBA RECOLORADO® Real estate listings held by brokers other than NewHomesMate LLC, DBA Jome are marked with the IDX Logo. This information is being provided for the consumers’ personal, non-commercial use and may not be used for any other purpose. All information subject to change and should be independently verified. This publication is designed to provide information with regard to the subject matter covered. It is displayed with the understanding that the publisher and authors are not engaged in rendering real estate, legal, accounting, tax, or other professional services and that the publisher and authors are not offering such advice in this publication. If real estate, legal, or other expert assistance is required, the services of a competent, professional person should be sought. The information contained in this publication is subject to change without notice. METROLIST, INC., DBA RECOLORADO MAKES NO WARRANTY OF ANY KIND WITH REGARD TO THIS MATERIAL, INCLUDING, BUT NOT LIMITED TO, THE IMPLIED WARRANTIES OF MERCHANTABILITY AND FITNESS FOR A PARTICULAR PURPOSE. METROLIST, INC., DBA RECOLORADO SHALL NOT BE LIABLE FOR ERRORS CONTAINED HEREIN OR FOR ANY DAMAGES IN CONNECTION WITH THE FURNISHING, PERFORMANCE, OR USE OF THIS MATERIAL. PUBLISHER'S NOTICE: All real estate advertised herein is subject to the Federal Fair Housing Act and the Colorado Fair Housing Act, which Acts make it illegal to make or publish any advertisement that indicates any preference, limitation, or discrimination based on race, color, religion, sex, handicap, familial status, or national origin. METROLIST, INC., DBA RECOLORADO will not knowingly accept any advertising for real estate that is in violation of the law. All persons are hereby informed that all dwellings advertised are available on an equal opportunity basis. © 2025 METROLIST, INC., DBA RECOLORADO® - All Rights Reserved. 6455 S. Yosemite St., Suite 500, Greenwood Village, CO 80111 USA. ALL RIGHTS RESERVED WORLDWIDE. No part of this publication may be reproduced, adapted, translated, stored in a retrieval system or transmitted in any form or by any means, electronic, mechanical, photocopying, recording, or otherwise, without the prior written permission of the publisher. The information contained herein including but not limited to all text, photographs, digital images, virtual tours, may be seeded and monitored for protection and tracking.
Read moreLast checked Apr 5, 4:00 am
- Jome
- New homes search
- Colorado
- Denver Metropolitan Area
- Douglas County
- Castle Pines
- Luxe at The Canyons
- 6466 Still Pine Cir, Castle Pines, CO 80108





































































