



































- 3 bd
- 2 ba
- 1,894 sqft
13763 Daffodil Wy, Parker, CO 80108
- Single-Family
- $354.8/sqft
- $780/annual HOA
- Northeast facing
New Homes for Sale Near 13763 Daffodil Wy, Parker, CO 80108
About this Home
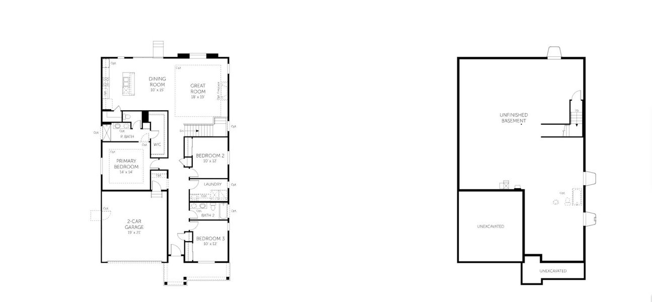
Brand new MOVE-IN READY home located in the highly desirable Looking Glass community in Parker! This 'Silverthorne' ONE-STORY home is designed for modern living. The luxury kitchen is perfect for entertaining and features 42" charcoal gray cabinets with quartz countertops and Whirlpool appliances including 36" gas cooktop, hood, and built-in microwave/oven. Relax in the spacious living area or take advantage of the full unfinished basement with rough-in plumbing for future expansion. Additional highlights include a 2-car garage and tankless water heater for comfort and efficiency. Enjoy this beautiful rolling hills community and everything Parker has to offer! Don’t wait—schedule your private showing today and make this dream home yours!
May also be listed on the Dream Finders Homes website
Information last verified by Jome: Thursday at 5:04 AM (April 9, 2026)
Home details
- Property status:
- Sold
- Lot size (acres):
- 0.15
- Lot width (feet):
- 50
- Size:
- 1,894 sqft
- Stories:
- 1
- Beds:
- 3
- Baths:
- 2
- Garage spaces:
- 2
- Fence:
- No Fence
- Facing direction:
- Northeast

Floor plan details
Silverthorne - Single Family Homes
- 3 bd
- 2 ba
- 1,894 sqft
View Silverthorne - Single Family Homes details
Construction details
- Builder Name:
- Dream Finders Homes
- Year Built:
- 2025
- Roof:
- Composition Roofing
Home features & finishes
- Appliances:
- Sprinkler System
- Construction Materials:
- CementFrameStone
- Cooling:
- Central Air
- Flooring:
- Laminate FlooringCarpet FlooringTile Flooring
- Foundation Details:
- Concrete Perimeter
- Garage/Parking:
- GarageAttached Garage
- Interior Features:
- Ceiling-HighWalk-In ClosetFoyerPantry
- Kitchen:
- DishwasherMicrowave OvenOvenDisposalQuartz countertopGranite countertopKitchen IslandCooktop
- Laundry facilities:
- Laundry Facilities In UnitUtility/Laundry Room
- Pets:
- Pets Allowed
- Property amenities:
- BasementPatioYardPorch
- Rooms:
- Primary Bedroom On MainKitchenDining RoomFamily RoomOpen Concept FloorplanPrimary Bedroom Downstairs
- Security system:
- Smoke DetectorCarbon Monoxide Detector
Utility information
- Heating:
- Water Heater, Forced Air Heating, Tankless water heater
- Utilities:
- Electricity Available, Natural Gas Available, Internet Cable, Cable Available, High Speed Internet Access

Community details
The Reserve at Looking Glass
by Dream Finders Homes, Parker, CO
- 8 homes
- 15 plans
- 1,700 - 4,122 sqft
View The Reserve at Looking Glass details
More homes in The Reserve at Looking Glass
- Home at address 13791 Daffodil Wy, Parker, CO 80134

$659,687
Move-in ready- 3 bd
- 2.5 ba
- 2,023 sqft
13791 Daffodil Wy, Parker, CO 80134
- Home at address 13783 Daffodil Wy, Parker, CO 80134

$659,990
Move-in ready- 4 bd
- 2 ba
- 1,739 sqft
13783 Daffodil Wy, Parker, CO 80134
- Home at address 13795 Daffodil Wy, Parker, CO 80134

$694,687
Move-in ready- 3 bd
- 2.5 ba
- 2,253 sqft
13795 Daffodil Wy, Parker, CO 80134
- Home at address 13780 Daffodil Wy, Parker, CO 80108

$699,990
Move-in ready- 3 bd
- 2.5 ba
- 2,253 sqft
13780 Daffodil Wy, Parker, CO 80108
- Home at address 13767 Daffodil Wy, Parker, CO 80108

$709,687
Move-in ready- 4 bd
- 2.5 ba
- 2,475 sqft
13767 Daffodil Wy, Parker, CO 80108
- Home at address 13788 Daffodil Wy, Parker, CO 80134

$749,990
Move-in ready- 5 bd
- 3 ba
- 2,612 sqft
13788 Daffodil Wy, Parker, CO 80134
Floor plans in The Reserve at Looking Glass
- View details for Braeburn - Single Family Homes

Braeburn - Single Family Homes
$624,990+- 3 bd
- 2.5 ba
- 2,023 sqft
About the builder - Dream Finders Homes

- 333communities on Jome
- 1,654homes on Jome
Neighborhood
Home address
Schools in Douglas County School District RE-1
GreatSchools’ Summary Rating calculation is based on 4 of the school’s themed ratings, including test scores, student/academic progress, college readiness, and equity. This information should only be used as a reference. Jome is not affiliated with GreatSchools and does not endorse or guarantee this information. Please reach out to schools directly to verify all information and enrollment eligibility. Data provided by GreatSchools.org © 2025
Places of interest
Getting around
Air quality
Financials
Nearby communities in Parker
Homes in Parker Neighborhoods
Homes in Parker by Dream Finders Homes
Recently added communities in this area
Other Builders in Parker, CO
Nearby sold homes
New homes in nearby cities
More New Homes in Parker, CO
- Jome
- New homes search
- Colorado
- Denver Metropolitan Area
- Douglas County
- Parker
- The Reserve at Looking Glass
- 13763 Daffodil Wy, Parker, CO 80108






































































