























- 4 bd
- 2.5 ba
- 2,235 sqft
6796 E 149Th Dr, Thornton, CO 80602
- Single-Family
- $256.53/sqft
- $1,740/annual HOA
- 0.07-acre lot
New Homes for Sale Near 6796 E 149Th Dr, Thornton, CO 80602
About this Home
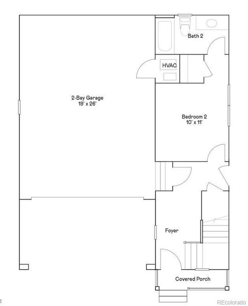
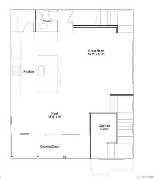
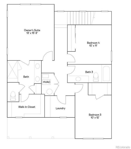
Eligible for 3.75% special financing when using builder’s preferred lender – terms and conditions apply – ask for detailsWelcome to the Skyline Collection—where thoughtful design meets modern living. This three-level home begins with a private secondary bedroom suite on the first floor, ideal for overnight guests or household members who value their own space. On the second level, you'll find a spacious Great Room, a contemporary kitchen, and a cozy nook, all arranged in an open-concept layout that encourages connection and comfort. Sliding glass doors lead to a covered deck, offering a flexible space for entertaining or relaxing. The top floor features three bedrooms, including a luxurious owner's suite complete with a peaceful bedroom, an en-suite bathroom, and a walk-in closet. The laundry room is conveniently located near the bedrooms for added ease. Located near Denver Premium Outlets, residents enjoy access to upscale shopping and dining, while Trail Winds Recreation Center provides a wide range of activities for all ages. This home is move-in ready and waiting for you to make it your own. Ready now!
Coldwell Banker Realty 56, MLS REC4921625
May also be listed on the Lennar website
Information last verified by Jome: Saturday at 4:00 PM (February 7, 2026)
Home details
- Property status:
- Sold
- Collection:
- Parterre: The Skyline
- Lot size (acres):
- 0.07
- Size:
- 2,235 sqft
- Stories:
- 3+
- Beds:
- 4
- Baths:
- 2.5
- Garage spaces:
- 2
Construction details
- Builder Name:
- Lennar
- Completion Date:
- August, 2025
- Year Built:
- 2024
- Roof:
- Composition Roofing
Home features & finishes
- Construction Materials:
- FrameStone
- Cooling:
- Central Air
- Flooring:
- Vinyl FlooringCarpet Flooring
- Garage/Parking:
- GarageAttached Garage
- Interior Features:
- Walk-In ClosetFoyer
- Kitchen:
- DishwasherMicrowave OvenOvenRefrigeratorDisposalQuartz countertopKitchen Island
- Laundry facilities:
- Utility/Laundry Room
- Property amenities:
- BasementBalconyDeckPorch
- Rooms:
- KitchenNookPowder RoomFamily RoomOpen Concept FloorplanPrimary Bedroom Upstairs
- Security system:
- Smoke DetectorCarbon Monoxide Detector
Room details
Dining Room
Bedroom 1
Great Room
Utility information
- Heating:
- Forced Air Heating

Community details
Parterre at Parterre
by Lennar, Thornton, CO
- 19 homes
- 13 plans
- 1,099 - 2,235 sqft
View Parterre details
More homes in Parterre
- Home at address 6984 E 149Th Pl, Thornton, CO 80602
Savings$556,400
Under construction- 4 bd
- 3.5 ba
- 2,235 sqft
6984 E 149Th Pl, Thornton, CO 80602
- Home at address 6984 E 149Th Ave, Thornton, CO 80602

$556,400
Move-in ready- 4 bd
- 2.5 ba
- 2,235 sqft
6984 E 149Th Ave, Thornton, CO 80602
- Home at address 6954 E 149Th Pl, Thornton, CO 80602
Savings$575,400
Move-in ready- 4 bd
- 3.5 ba
- 2,166 sqft
6954 E 149Th Pl, Thornton, CO 80602
- Home at address 6842 Arbor Blvd E, Thornton, CO 80602
Savings$624,900
Under construction- 4 bd
- 3.5 ba
- 2,166 sqft
6842 Arbor Blvd E, Thornton, CO 80602
Floor plans in Parterre
About the builder - Lennar

- 1,816communities on Jome
- 6,757homes on Jome
Neighborhood
Home address
Schools in School District 27J
- Grades KG-08Publicdiscovery magnet school1.1 mi4949 e. 147th ave.na
- Grades PK-08Privatefrassati catholic academy2.9 mi3951 cottonwood lakes blvdna
GreatSchools’ Summary Rating calculation is based on 4 of the school’s themed ratings, including test scores, student/academic progress, college readiness, and equity. This information should only be used as a reference. Jome is not affiliated with GreatSchools and does not endorse or guarantee this information. Please reach out to schools directly to verify all information and enrollment eligibility. Data provided by GreatSchools.org © 2025
Places of interest
Getting around
Air quality
Noise level
A Soundscore™ rating is a number between 50 (very loud) and 100 (very quiet) that tells you how loud a location is due to environmental noise.
Financials
Nearby communities in Thornton
Homes in Thornton by Lennar
Recently added communities in this area
Other Builders in Thornton, CO
Nearby sold homes
New homes in nearby cities
More New Homes in Thornton, CO
Coldwell Banker Realty 56, MLS REC4921625
The content relating to real estate for sale in this Web site comes in part from the Internet Data eXchange (“IDX”) program of METROLIST, INC., DBA RECOLORADO® Real estate listings held by brokers other than NewHomesMate LLC, DBA Jome are marked with the IDX Logo. This information is being provided for the consumers’ personal, non-commercial use and may not be used for any other purpose. All information subject to change and should be independently verified. This publication is designed to provide information with regard to the subject matter covered. It is displayed with the understanding that the publisher and authors are not engaged in rendering real estate, legal, accounting, tax, or other professional services and that the publisher and authors are not offering such advice in this publication. If real estate, legal, or other expert assistance is required, the services of a competent, professional person should be sought. The information contained in this publication is subject to change without notice. METROLIST, INC., DBA RECOLORADO MAKES NO WARRANTY OF ANY KIND WITH REGARD TO THIS MATERIAL, INCLUDING, BUT NOT LIMITED TO, THE IMPLIED WARRANTIES OF MERCHANTABILITY AND FITNESS FOR A PARTICULAR PURPOSE. METROLIST, INC., DBA RECOLORADO SHALL NOT BE LIABLE FOR ERRORS CONTAINED HEREIN OR FOR ANY DAMAGES IN CONNECTION WITH THE FURNISHING, PERFORMANCE, OR USE OF THIS MATERIAL. PUBLISHER'S NOTICE: All real estate advertised herein is subject to the Federal Fair Housing Act and the Colorado Fair Housing Act, which Acts make it illegal to make or publish any advertisement that indicates any preference, limitation, or discrimination based on race, color, religion, sex, handicap, familial status, or national origin. METROLIST, INC., DBA RECOLORADO will not knowingly accept any advertising for real estate that is in violation of the law. All persons are hereby informed that all dwellings advertised are available on an equal opportunity basis. © 2025 METROLIST, INC., DBA RECOLORADO® - All Rights Reserved. 6455 S. Yosemite St., Suite 500, Greenwood Village, CO 80111 USA. ALL RIGHTS RESERVED WORLDWIDE. No part of this publication may be reproduced, adapted, translated, stored in a retrieval system or transmitted in any form or by any means, electronic, mechanical, photocopying, recording, or otherwise, without the prior written permission of the publisher. The information contained herein including but not limited to all text, photographs, digital images, virtual tours, may be seeded and monitored for protection and tracking.
Read moreLast checked Apr 3, 10:00 am
- Jome
- New homes search
- Colorado
- Denver Metropolitan Area
- Adams County
- Thornton
- Parterre
- Parterre: The Skyline
- 6796 E 149Th Dr, Thornton, CO 80602





























































