








Book your tour. Save an average of $18,473. We'll handle the rest.
We collect exclusive builder offers, book your tours, and support you from start to housewarming.
- Confirmed tours
- Get matched & compare top deals
- Expert help, no pressure
- No added fees
Estimated value based on Jome data, T&C apply





Why tour with Jome?
- No pressure toursTour at your own pace with no sales pressure
- Expert guidanceGet insights from our home buying experts
- Exclusive accessSee homes and deals not available elsewhere
Jome is featured in
- Single-Family
- Quick move-in
- $257.74/sqft
- $1,740/annual HOA
Home description
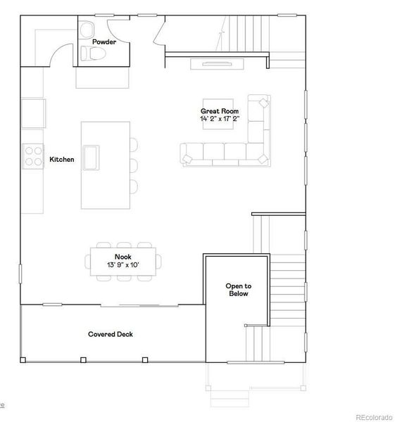
Welcome to the Skyline Collection by Lennar! This thoughtfully designed Visage three-story home offers comfort, functionality, and modern style throughout. The main level features a private secondary bedroom suite—perfect for guests or anyone seeking added privacy. On the second level, enjoy an open-concept layout where the Great Room, kitchen, and dining nook flow seamlessly together, creating an ideal space for everyday living and entertaining. Sliding glass doors open to a versatile covered deck, perfect for relaxing or hosting. The top floor is home to three additional bedrooms, including the luxurious owner’s suite complete with a serene bedroom, en-suite bath, and walk-in closet. A conveniently located laundry room near the bedrooms adds everyday ease. Ideally situated, the community offers access to a variety of amenities, including upscale shopping and dining at Denver Premium Outlets and endless recreation opportunities at Trail Winds Recreation Center. Estimated completion is August 2026.
Coldwell Banker Realty 56, MLS REC4652802
May also be listed on the Lennar website
Information last verified by Jome: Yesterday at 10:11 AM (March 24, 2026)
Book your tour. Save an average of $18,473. We'll handle the rest.
We collect exclusive builder offers, book your tours, and support you from start to housewarming.
- Confirmed tours
- Get matched & compare top deals
- Expert help, no pressure
- No added fees
Estimated value based on Jome data, T&C apply
Home details
- Property status:
- Move-in ready
- Lot size (acres):
- 0.06
- Size:
- 2,235 sqft
- Stories:
- 3+
- Beds:
- 4
- Baths:
- 2
- Half baths:
- 1
- Garage spaces:
- 2
Construction details
- Builder Name:
- Lennar
- Year Built:
- 2026
- Roof:
- Composition Roofing
Home features & finishes
- Construction Materials:
- FrameStone
- Cooling:
- Central Air
- Flooring:
- Vinyl FlooringCarpet Flooring
- Garage/Parking:
- GarageAttached Garage
- Interior Features:
- Ceiling-HighWalk-In ClosetFoyerPantryBreakfast Bar
- Kitchen:
- DishwasherMicrowave OvenOvenRefrigeratorDisposalQuartz countertopKitchen Island
- Property amenities:
- BasementBalconyPorch
- Rooms:
- KitchenBreakfast AreaOpen Concept Floorplan
- Security system:
- Smoke DetectorCarbon Monoxide Detector
Room details
Dining Room
Bedroom 1
Great Room

Get a consultation with our New Homes Expert
- See how your home builds wealth
- Plan your home-buying roadmap
- Discover hidden gems
Utility information
- Heating:
- Forced Air Heating
- Utilities:
- Electricity Available, Phone Available, Cable Available

Community details
Parterre at Parterre
by Lennar, Thornton, CO
- 18 homes
- 13 plans
- 1,099 - 2,235 sqft
View Parterre details
More homes in Parterre
- Home at address 6984 E 149Th Pl, Thornton, CO 80602

Visage
SavingsParterre: The Skyline
$556,400
- 4 bd
- 3.5 ba
- 2,235 sqft
6984 E 149Th Pl, Thornton, CO 80602
- Home at address 6842 Arbor Blvd E, Thornton, CO 80602

Forte
SavingsParterre: The Skyline
$624,900
- 4 bd
- 3.5 ba
- 2,166 sqft
6842 Arbor Blvd E, Thornton, CO 80602
Floor plans in Parterre
About the builder - Lennar

- 1,799communities on Jome
- 6,683homes on Jome
Neighborhood
Home address
Schools in School District 27J
- Grades KG-08Publicdiscovery magnet school1.2 mi4949 e. 147th ave.na
- Grades PK-08Privatefrassati catholic academy3.0 mi3951 cottonwood lakes blvdna
GreatSchools’ Summary Rating calculation is based on 4 of the school’s themed ratings, including test scores, student/academic progress, college readiness, and equity. This information should only be used as a reference. Jome is not affiliated with GreatSchools and does not endorse or guarantee this information. Please reach out to schools directly to verify all information and enrollment eligibility. Data provided by GreatSchools.org © 2025
Places of interest
Getting around
Air quality
Noise level
A Soundscore™ rating is a number between 50 (very loud) and 100 (very quiet) that tells you how loud a location is due to environmental noise.

Considering this home?
Our expert will guide your tour, in-person or virtual
Need more information?
Text or call (888) 545-5198
Financials
Estimated monthly payment
Let us help you find your dream home
How many bedrooms are you looking for?
Similar homes nearby
Recently added communities in this area
Nearby communities in Thornton
New homes in nearby cities
More New Homes in Thornton, CO
Coldwell Banker Realty 56, MLS REC4652802
The content relating to real estate for sale in this Web site comes in part from the Internet Data eXchange (“IDX”) program of METROLIST, INC., DBA RECOLORADO® Real estate listings held by brokers other than NewHomesMate LLC, DBA Jome are marked with the IDX Logo. This information is being provided for the consumers’ personal, non-commercial use and may not be used for any other purpose. All information subject to change and should be independently verified. This publication is designed to provide information with regard to the subject matter covered. It is displayed with the understanding that the publisher and authors are not engaged in rendering real estate, legal, accounting, tax, or other professional services and that the publisher and authors are not offering such advice in this publication. If real estate, legal, or other expert assistance is required, the services of a competent, professional person should be sought. The information contained in this publication is subject to change without notice. METROLIST, INC., DBA RECOLORADO MAKES NO WARRANTY OF ANY KIND WITH REGARD TO THIS MATERIAL, INCLUDING, BUT NOT LIMITED TO, THE IMPLIED WARRANTIES OF MERCHANTABILITY AND FITNESS FOR A PARTICULAR PURPOSE. METROLIST, INC., DBA RECOLORADO SHALL NOT BE LIABLE FOR ERRORS CONTAINED HEREIN OR FOR ANY DAMAGES IN CONNECTION WITH THE FURNISHING, PERFORMANCE, OR USE OF THIS MATERIAL. PUBLISHER'S NOTICE: All real estate advertised herein is subject to the Federal Fair Housing Act and the Colorado Fair Housing Act, which Acts make it illegal to make or publish any advertisement that indicates any preference, limitation, or discrimination based on race, color, religion, sex, handicap, familial status, or national origin. METROLIST, INC., DBA RECOLORADO will not knowingly accept any advertising for real estate that is in violation of the law. All persons are hereby informed that all dwellings advertised are available on an equal opportunity basis. © 2025 METROLIST, INC., DBA RECOLORADO® - All Rights Reserved. 6455 S. Yosemite St., Suite 500, Greenwood Village, CO 80111 USA. ALL RIGHTS RESERVED WORLDWIDE. No part of this publication may be reproduced, adapted, translated, stored in a retrieval system or transmitted in any form or by any means, electronic, mechanical, photocopying, recording, or otherwise, without the prior written permission of the publisher. The information contained herein including but not limited to all text, photographs, digital images, virtual tours, may be seeded and monitored for protection and tracking.
Read moreLast checked Mar 24, 10:00 pm
- Jome
- New homes search
- Colorado
- Denver Metropolitan Area
- Adams County
- Thornton
- Parterre
- 6984 E 149Th Ave, Thornton, CO 80602




























