
























- 3 bd
- 1.5 ba
- 1,803 sqft
6779 Juniper Dr, Thornton, CO 80602
- Duplex
- $296.7/sqft
- $2,220/annual HOA
- 0.07-acre lot
New Homes for Sale Near 6779 Juniper Dr, Thornton, CO 80602
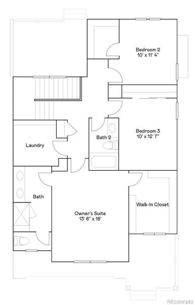
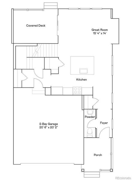
About this Home
*** This home eligible for Special Financing - Terms and conditions apply - Ask for details!***Introducing a stunning paired home, where thoughtful design meets everyday comfort. This two-story residence offers an open-concept main level, seamlessly connecting the kitchen and Great Room, with easy access to a covered deck—ideal for relaxing or entertaining outdoors.
Upstairs, you'll find three well-appointed bedrooms, including a refined owner’s suite designed for privacy and relaxation. The laundry room is conveniently located near the bedrooms for added functionality. Stylish finishes throughout include luxury vinyl plank flooring, sleek Quartz countertops, and an unfinished basement ready for your personal touch. Situated in a vibrant community, residents enjoy proximity to the Denver Premium Outlets for upscale shopping and dining, along with abundant recreational opportunities at Trail Winds Recreation Center. This home offers a lifestyle that suits every stage of life. Estimated completion is August 2025.
Coldwell Banker Realty 56, MLS REC6822407
May also be listed on the Lennar website
Information last verified by Jome: Friday at 1:27 PM (February 6, 2026)
Home details
- Property status:
- Sold
- Collection:
- Parterre: Paired Homes
- Lot size (acres):
- 0.07
- Size:
- 1,803 sqft
- Stories:
- 2
- Beds:
- 3
- Baths:
- 1.5
- Garage spaces:
- 2
Construction details
- Builder Name:
- Lennar
- Completion Date:
- June, 2025
- Year Built:
- 2024
- Roof:
- Composition Roofing
Home features & finishes
- Construction Materials:
- FrameStone
- Cooling:
- Central Air
- Flooring:
- Vinyl FlooringCarpet Flooring
- Foundation Details:
- Slab
- Garage/Parking:
- GarageAttached Garage
- Interior Features:
- Walk-In ClosetFoyer
- Kitchen:
- DishwasherMicrowave OvenOvenRefrigeratorDisposalQuartz countertopKitchen Island
- Laundry facilities:
- Utility/Laundry Room
- Property amenities:
- BasementDeckPorch
- Rooms:
- KitchenPowder RoomFamily RoomOpen Concept FloorplanPrimary Bedroom Upstairs
- Security system:
- Smoke DetectorCarbon Monoxide Detector
Room details
Bedroom 1
Great Room
Utility information
- Heating:
- Forced Air Heating

Community details
Parterre at Parterre
by Lennar, Thornton, CO
- 19 homes
- 13 plans
- 1,099 - 2,235 sqft
View Parterre details
More homes in Parterre
- Home at address 6888 E 149Th Ave, Unit 5, Thornton, CO 80602
Savings$449,300
Move-in ready- 3 bd
- 1.5 ba
- 1,529 sqft
6888 E 149Th Ave, Unit 5, Thornton, CO 80602
- Home at address 6921 Arbor Blvd E, Thornton, CO 80602
Savings$509,900
Under construction- 3 bd
- 2.5 ba
- 1,803 sqft
6921 Arbor Blvd E, Thornton, CO 80602
- Home at address 6920 Juniper Dr, Thornton, CO 80602
Savings$511,900
Move-in ready- 3 bd
- 1.5 ba
- 1,825 sqft
6920 Juniper Dr, Thornton, CO 80602
- Home at address 6910 Juniper Dr, Thornton, CO 80602
Savings$524,900
Move-in ready- 3 bd
- 1.5 ba
- 2,026 sqft
6910 Juniper Dr, Thornton, CO 80602
- Home at address 6934 E 149Th Pl, Thornton, CO 80602
Savings$544,600
Move-in ready- 3 bd
- 1.5 ba
- 1,868 sqft
6934 E 149Th Pl, Thornton, CO 80602
- Home at address 6969 Juniper Dr, Thornton, CO 80602
Savings$549,400
Move-in ready- 3 bd
- 1.5 ba
- 1,803 sqft
6969 Juniper Dr, Thornton, CO 80602
Floor plans in Parterre
About the builder - Lennar

- 1,816communities on Jome
- 6,757homes on Jome
Neighborhood
Home address
Schools in School District 27J
- Grades KG-08Publicdiscovery magnet school1.1 mi4949 e. 147th ave.na
- Grades PK-08Privatefrassati catholic academy3.0 mi3951 cottonwood lakes blvdna
GreatSchools’ Summary Rating calculation is based on 4 of the school’s themed ratings, including test scores, student/academic progress, college readiness, and equity. This information should only be used as a reference. Jome is not affiliated with GreatSchools and does not endorse or guarantee this information. Please reach out to schools directly to verify all information and enrollment eligibility. Data provided by GreatSchools.org © 2025
Places of interest
Getting around
Air quality
Noise level
A Soundscore™ rating is a number between 50 (very loud) and 100 (very quiet) that tells you how loud a location is due to environmental noise.
Financials
Nearby communities in Thornton
Homes in Thornton by Lennar
Recently added communities in this area
Other Builders in Thornton, CO
Nearby sold homes
New homes in nearby cities
More New Homes in Thornton, CO
Coldwell Banker Realty 56, MLS REC6822407
The content relating to real estate for sale in this Web site comes in part from the Internet Data eXchange (“IDX”) program of METROLIST, INC., DBA RECOLORADO® Real estate listings held by brokers other than NewHomesMate LLC, DBA Jome are marked with the IDX Logo. This information is being provided for the consumers’ personal, non-commercial use and may not be used for any other purpose. All information subject to change and should be independently verified. This publication is designed to provide information with regard to the subject matter covered. It is displayed with the understanding that the publisher and authors are not engaged in rendering real estate, legal, accounting, tax, or other professional services and that the publisher and authors are not offering such advice in this publication. If real estate, legal, or other expert assistance is required, the services of a competent, professional person should be sought. The information contained in this publication is subject to change without notice. METROLIST, INC., DBA RECOLORADO MAKES NO WARRANTY OF ANY KIND WITH REGARD TO THIS MATERIAL, INCLUDING, BUT NOT LIMITED TO, THE IMPLIED WARRANTIES OF MERCHANTABILITY AND FITNESS FOR A PARTICULAR PURPOSE. METROLIST, INC., DBA RECOLORADO SHALL NOT BE LIABLE FOR ERRORS CONTAINED HEREIN OR FOR ANY DAMAGES IN CONNECTION WITH THE FURNISHING, PERFORMANCE, OR USE OF THIS MATERIAL. PUBLISHER'S NOTICE: All real estate advertised herein is subject to the Federal Fair Housing Act and the Colorado Fair Housing Act, which Acts make it illegal to make or publish any advertisement that indicates any preference, limitation, or discrimination based on race, color, religion, sex, handicap, familial status, or national origin. METROLIST, INC., DBA RECOLORADO will not knowingly accept any advertising for real estate that is in violation of the law. All persons are hereby informed that all dwellings advertised are available on an equal opportunity basis. © 2025 METROLIST, INC., DBA RECOLORADO® - All Rights Reserved. 6455 S. Yosemite St., Suite 500, Greenwood Village, CO 80111 USA. ALL RIGHTS RESERVED WORLDWIDE. No part of this publication may be reproduced, adapted, translated, stored in a retrieval system or transmitted in any form or by any means, electronic, mechanical, photocopying, recording, or otherwise, without the prior written permission of the publisher. The information contained herein including but not limited to all text, photographs, digital images, virtual tours, may be seeded and monitored for protection and tracking.
Read moreLast checked Apr 3, 10:00 am
- Jome
- New homes search
- Colorado
- Denver Metropolitan Area
- Adams County
- Thornton
- Parterre
- Parterre: Paired Homes
- 6779 Juniper Dr, Thornton, CO 80602



































































