


























- 4 bd
- 3 ba
- 2,594 sqft
2594W plan in Santa Rita Ranch Tierra Rosa by Perry Homes
New Homes for Sale Near 113 Civita Rd, Liberty Hill, TX 78642
About this Plan
May also be listed on the Perry Homes website
Information last verified by Jome: Thursday at 10:24 AM (February 26, 2026)
Plan details
- Name:
- 2594W
- Property type:
- Sold
- Community:
- Santa Rita Ranch Tierra Rosa
- Builder:
- Perry Homes
- Collection:
- Santa Rita Ranch 45'
- Lot width (feet):
- 45
- Size:
- 2,594 sqft
- Stories:
- 2
- Beds:
- 4
- Baths:
- 3
- Garage spaces:
- 2
Plan features & finishes
- Appliances:
- Water SoftenerSprinkler System
- Garage/Parking:
- GarageAttached Garage
- Interior Features:
- Ceiling-HighWalk-In ClosetPantry
- Kitchen:
- Gas CooktopKitchen Island
- Laundry facilities:
- Utility/Laundry Room
- Property amenities:
- SodBathtub in primaryPatioFireplaceSmart Home SystemPorch
- Rooms:
- Flex RoomPrimary Bedroom On MainKitchenTwo-Story Great RoomGame RoomOffice/StudyMudroomDining RoomFamily RoomOpen Concept FloorplanPrimary Bedroom Downstairs
- Upgrade Options:
- Freestanding TubExtra Half BathSliding DoorsFireplace
Utility information
- Utilities:
- Natural Gas Available
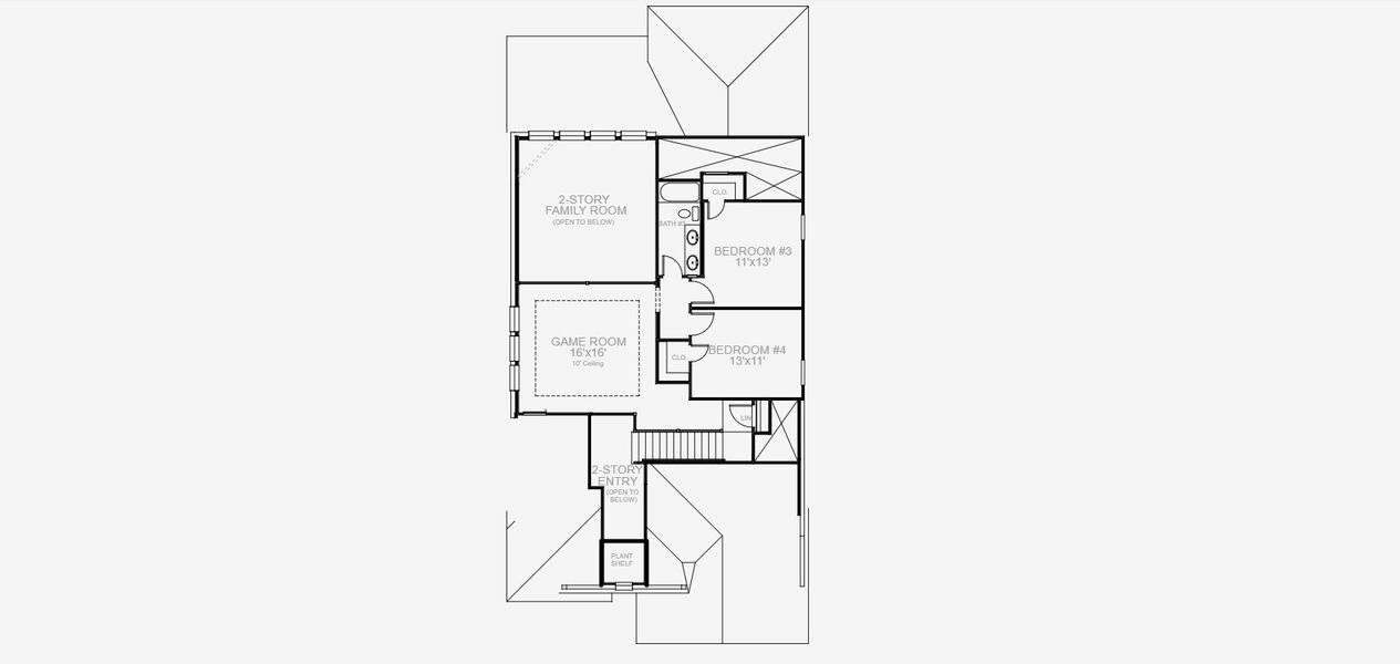
See the full plan layout
Download the floor plan PDF with room dimensions and home design details.

Instant download, no cost

Community details
Santa Rita Ranch Tierra Rosa at Santa Rita Ranch
by Perry Homes, Liberty Hill, TX
- 27 homes
- 78 plans
- 1,500 - 5,573 sqft
View Santa Rita Ranch Tierra Rosa details
Want to know more about what's around here?
The 2594W floor plan is part of Santa Rita Ranch Tierra Rosa, a new home community by Perry Homes, located in Liberty Hill, TX. Visit the Santa Rita Ranch Tierra Rosa community page for full neighborhood insights, including nearby schools, shopping, walk & bike-scores, commuting, air quality & natural hazards.

Homes built from this plan
Available homes in Santa Rita Ranch Tierra Rosa
- Home at address 105 Blue Summit Bnd, Liberty Hill, TX 78642
Savings$494,900
Under construction- 4 bd
- 5.5 ba
- 2,370 sqft
105 Blue Summit Bnd, Liberty Hill, TX 78642
- Home at address 228 Menlo Bnd, Liberty Hill, TX 78642
Savings$524,900
Under construction- 4 bd
- 3.5 ba
- 2,330 sqft
228 Menlo Bnd, Liberty Hill, TX 78642
- Home at address 249 Menlo Bnd, Liberty Hill, TX 78642
Savings$524,900
Move-in ready- 5 bd
- 4 ba
- 2,585 sqft
249 Menlo Bnd, Liberty Hill, TX 78642
- Home at address 333 Blue Summit Bnd, Liberty Hill, TX 78642
Savings$549,900
Under construction- 4 bd
- 3 ba
- 2,426 sqft
333 Blue Summit Bnd, Liberty Hill, TX 78642
- Home at address 361 Blue Summit Bnd, Liberty Hill, TX 78642
Savings$549,900
Under construction- 5 bd
- 3.5 ba
- 2,442 sqft
361 Blue Summit Bnd, Liberty Hill, TX 78642
- Home at address 201 Blue Summit Bnd, Liberty Hill, TX 78642
Savings$549,900
Under construction- 4 bd
- 3.5 ba
- 2,392 sqft
201 Blue Summit Bnd, Liberty Hill, TX 78642
More floor plans in Santa Rita Ranch Tierra Rosa
Financials
Nearby communities in Liberty Hill
Homes in Liberty Hill by Perry Homes
Recently added communities in this area
Other Builders in Liberty Hill, TX
Nearby sold homes
New homes in nearby cities
More New Homes in Liberty Hill, TX
- Jome
- New homes search
- Texas
- Greater Austin Area
- Williamson County
- Liberty Hill
- Santa Rita Ranch Tierra Rosa
- Santa Rita Ranch 45'
- 113 Civita Rd, Liberty Hill, TX 78642










































































