
























- 4 bd
- 3.5 ba
- 2,594 sqft
132 Datewood Dr, Liberty Hill, TX 78628
- Single-Family
- $235.89/sqft
- $95/monthly HOA
- 56 days on Jome
New Homes for Sale Near 132 Datewood Dr, Liberty Hill, TX 78628
About this Home
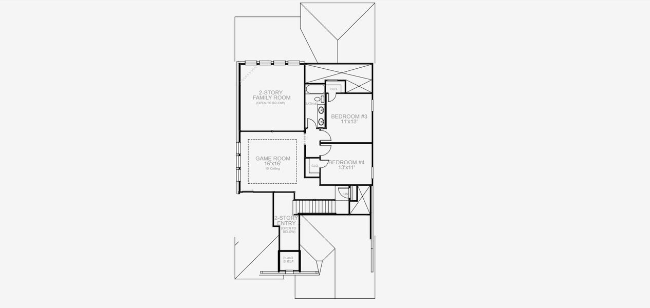
Home office with French doors set at two-story entry. Dining area opens to kitchen and adjacent two-story family room. Kitchen features walk-in pantry, a 5-burner gas cooktop, and generous island with built-in seating space. Family room features wall of windows. First-floor primary suite includes primary bath with dual vanity, a freestanding tub, separate glass-enclosed shower and two walk-in closets. An additional bedroom is downstairs. A game room and two secondary bedrooms are upstairs. Covered backyard patio. Landscape features a 7-zone sprinkler system. Mud room off two-car garage.
May also be listed on the Perry Homes website
Information last verified by Jome: Thursday at 6:22 AM (February 26, 2026)
Home details
- Property status:
- Sold
- Collection:
- Santa Rita Ranch 45'
- Lot width (feet):
- 45
- Size:
- 2,594 sqft
- Stories:
- 2
- Beds:
- 4
- Baths:
- 3
- Half baths:
- 1
- Garage spaces:
- 2
Construction details
- Builder Name:
- Perry Homes
- Completion Date:
- May, 2026
Home features & finishes
- Appliances:
- Water SoftenerSprinkler System
- Garage/Parking:
- GarageAttached Garage
- Interior Features:
- Ceiling-HighWalk-In ClosetPantry
- Kitchen:
- Gas CooktopKitchen Island
- Laundry facilities:
- Utility/Laundry Room
- Property amenities:
- SodBathtub in primaryPatioFireplaceSmart Home SystemPorch
- Rooms:
- Flex RoomPrimary Bedroom On MainKitchenTwo-Story Great RoomGame RoomOffice/StudyMudroomDining RoomFamily RoomOpen Concept FloorplanPrimary Bedroom Downstairs
Utility information
- Utilities:
- Natural Gas Available

Community details
Santa Rita Ranch Tierra Rosa at Santa Rita Ranch
by Perry Homes, Liberty Hill, TX
- 28 homes
- 79 plans
- 1,500 - 5,573 sqft
View Santa Rita Ranch Tierra Rosa details
More homes in Santa Rita Ranch Tierra Rosa
- Home at address 248 Menlo Bnd, Liberty Hill, TX 78642
Savings$474,900
Move-in ready- 5 bd
- 4.5 ba
- 2,407 sqft
248 Menlo Bnd, Liberty Hill, TX 78642
- Home at address 105 Blue Summit Bnd, Liberty Hill, TX 78642
Savings$474,900
Under construction- 4 bd
- 5.5 ba
- 2,370 sqft
105 Blue Summit Bnd, Liberty Hill, TX 78642
- Home at address 228 Menlo Bnd, Liberty Hill, TX 78642
Savings$489,900
Under construction- 4 bd
- 3.5 ba
- 2,330 sqft
228 Menlo Bnd, Liberty Hill, TX 78642
- Home at address 171 Covered Bridge Trl, Liberty Hill, TX 78642

$524,900
Under construction- 4 bd
- 3.5 ba
- 2,370 sqft
171 Covered Bridge Trl, Liberty Hill, TX 78642
- Home at address 201 Blue Summit Bnd, Liberty Hill, TX 78642
Savings$529,900
Under construction- 4 bd
- 3.5 ba
- 2,392 sqft
201 Blue Summit Bnd, Liberty Hill, TX 78642
- Home at address 104 Covered Bridge Trl, Liberty Hill, TX 78642

$539,900
Under construction- 4 bd
- 3 ba
- 1,878 sqft
104 Covered Bridge Trl, Liberty Hill, TX 78642
Floor plans in Santa Rita Ranch Tierra Rosa
About the builder - Perry Homes

- 390communities on Jome
- 1,617homes on Jome
Neighborhood
Home address
- City:
- Liberty Hill
- County:
- Williamson
- Zip Code:
- 78628
Schools in Liberty Hill Independent School District
- Grades M-MPublictierra rosa elementary1.3 mi89 e santa rita blvdna
- Grades KG-06Privatedivine savior academy - santa rita ranch1.6 mi23857 ronald w reagan blvdna
- Grades M-MPubliclegacy ranch high school3.3 mi450 cr 258na
GreatSchools’ Summary Rating calculation is based on 4 of the school’s themed ratings, including test scores, student/academic progress, college readiness, and equity. This information should only be used as a reference. Jome is not affiliated with GreatSchools and does not endorse or guarantee this information. Please reach out to schools directly to verify all information and enrollment eligibility. Data provided by GreatSchools.org © 2025
Places of interest
Getting around
Air quality
Financials
Nearby communities in Liberty Hill
Homes in Liberty Hill by Perry Homes
Recently added communities in this area
Other Builders in Liberty Hill, TX
Nearby sold homes
New homes in nearby cities
More New Homes in Liberty Hill, TX
- Jome
- New homes search
- Texas
- Greater Austin Area
- Williamson County
- Liberty Hill
- Santa Rita Ranch Tierra Rosa
- Santa Rita Ranch 45'
- 132 Datewood Dr, Liberty Hill, TX 78628







































































