



Book your tour. Save an average of $18,473. We'll handle the rest.
We collect exclusive builder offers, book your tours, and support you from start to housewarming.
- Confirmed tours
- Get matched & compare top deals
- Expert help, no pressure
- No added fees
Estimated value based on Jome data, T&C apply


- 4 bd
- 5.5 ba
- 2,370 sqft
105 Blue Summit Bnd, Liberty Hill, TX 78642
Why tour with Jome?
- No pressure toursTour at your own pace with no sales pressure
- Expert guidanceGet insights from our home buying experts
- Exclusive accessSee homes and deals not available elsewhere
Jome is featured in
- Single-Family
- Ready by April 2026
- $200.38/sqft
- $106/monthly HOA
Builder deals available
- TOP-TIER DEAL
Conventional 30 Year Fixed
$54,960 est. value- Fixed rate from 4.99% with 5.178% APR and 10% down payment
Any loan type
$50,000 est. value- $50,000 free upgrades
Any loan type
$50,000 est. value- 6% closing costs help
Deals may change and are not guaranteed. Some deals apply to specific homes or plans. Not a financing offer. Eligibility varies by lender. Please verify details.
Home description
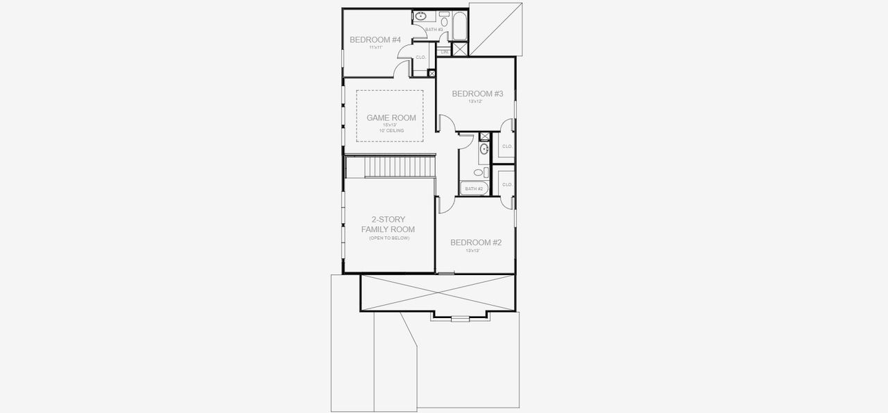
Side porch opens into entryway. The home office offers French doors and is located at the front of the home for added privacy. The family room boasts a 19-foot ceiling. The kitchen features an island with built-in seating, a 5-burner gas cooktop, and corner pantry. The dining area features a wall of windows and provides access to the backyard covered patio. Landscape features a 7 zone sprinkler system. The primary bathroom offers three large windows looking out into the backyard. Double doors lead into the bathroom which boasts dual vanities, a glass enclosed shower, and large walk-in closet. The utility room is located off of the primary bedroom entryway. Upstairs you are greeted by a game room that allows ample light from its wall of windows. Three secondary bedrooms with walk-in closets and two full bathrooms complete the space. The two-car garage is located off the main entryway.
Perry Homes Realty, LLC, MLS 4407350
May also be listed on the Perry Homes website
Information last verified by Jome: Today at 6:18 AM (April 9, 2026)
Home highlights
Scenic Highland Lakes reservoir west of Austin, known for boating, cliffside views, and upscale lakefront living.
Book your tour. Save an average of $18,473. We'll handle the rest.
We collect exclusive builder offers, book your tours, and support you from start to housewarming.
- Confirmed tours
- Get matched & compare top deals
- Expert help, no pressure
- No added fees
Estimated value based on Jome data, T&C apply
Home details
- Property status:
- Under construction
- Collection:
- Santa Rita Ranch 40'
- Lot size (acres):
- 0.12
- Lot width (feet):
- 40
- Size:
- 2,370 sqft
- Stories:
- 2
- Beds:
- 4
- Baths:
- 5
- Half baths:
- 3
- Garage spaces:
- 2
- Fence:
- Privacy Fence
- Facing direction:
- Southwest
Construction details
- Builder Name:
- Perry Homes
- Completion Date:
- April, 2026
- Year Built:
- 2026
- Roof:
- Roof Gutter, Composition Roofing
Home features & finishes
- Construction Materials:
- CementBrick
- Cooling:
- Central Air
- Flooring:
- Carpet FlooringTile Flooring
- Foundation Details:
- Slab
- Garage/Parking:
- Door OpenerGarageAttached Garage
- Home amenities:
- ENERGY STAR Certified
- Interior Features:
- Ceiling-HighWalk-In ClosetPantryFrench Doors
- Kitchen:
- DishwasherMicrowave OvenOvenDisposalGas CooktopBuilt-In OvenSelf Cleaning OvenKitchen IslandCooktop
- Laundry facilities:
- DryerWasherUtility/Laundry Room
- Property amenities:
- PatioYardPorch
- Rooms:
- Primary Bedroom On MainKitchenGame RoomOffice/StudyDining RoomFamily RoomOpen Concept FloorplanPrimary Bedroom Downstairs
- Security system:
- Smoke Detector

Get a consultation with our New Homes Expert
- See how your home builds wealth
- Plan your home-buying roadmap
- Discover hidden gems
Utility information
- Heating:
- Water Heater, Central Heating, Gas Heating, Tankless water heater
- Sewer:
- Public Sewer
- Utilities:
- Underground Utilities
- Water source:
- Public

Community details
Santa Rita Ranch Tierra Rosa at Santa Rita Ranch
by Perry Homes, Liberty Hill, TX
- 25 homes
- 79 plans
- 1,500 - 5,573 sqft
View Santa Rita Ranch Tierra Rosa details
Community amenities
- Grill Area
- Common Grounds
- Dog Park
- Playground
- Fitness Center/Exercise Area
- Club House
- Sport Court
- Tennis Courts
- Community Pool
- Park Nearby
- BBQ Area
- Sport Facility
- Cluster Mailbox
More homes in Santa Rita Ranch Tierra Rosa
- Home at address 228 Menlo Bnd, Liberty Hill, TX 78642

2330W
SavingsSanta Rita Ranch 40'
$499,900
- 4 bd
- 3.5 ba
- 2,330 sqft
228 Menlo Bnd, Liberty Hill, TX 78642
- Home at address 249 Menlo Bnd, Liberty Hill, TX 78642

2585W
SavingsSanta Rita Ranch 40'
$514,900
- 5 bd
- 4 ba
- 2,585 sqft
249 Menlo Bnd, Liberty Hill, TX 78642
- Home at address 171 Covered Bridge Trl, Liberty Hill, TX 78642

2370W
Santa Rita Ranch 40'
$524,900
- 4 bd
- 3.5 ba
- 2,370 sqft
171 Covered Bridge Trl, Liberty Hill, TX 78642
- Home at address 201 Blue Summit Bnd, Liberty Hill, TX 78642

2392W
SavingsSanta Rita Ranch 40'
$539,900
- 4 bd
- 3.5 ba
- 2,392 sqft
201 Blue Summit Bnd, Liberty Hill, TX 78642
- Home at address 361 Blue Summit Bnd, Liberty Hill, TX 78642

2442W
SavingsSanta Rita Ranch 45'
$544,900
- 5 bd
- 3.5 ba
- 2,442 sqft
361 Blue Summit Bnd, Liberty Hill, TX 78642
- Home at address 168 Covered Bridge Trl, Liberty Hill, TX 78642

2585W
SavingsSanta Rita Ranch 40'
$549,900
- 5 bd
- 4 ba
- 2,585 sqft
168 Covered Bridge Trl, Liberty Hill, TX 78642
Floor plans in Santa Rita Ranch Tierra Rosa
About the builder - Perry Homes

- 391communities on Jome
- 1,555homes on Jome
Neighborhood
Home address
- City:
- Liberty Hill
- County:
- Williamson
- Zip Code:
- 78642
Schools in Liberty Hill Independent School District
- Grades M-MPublictierra rosa elementary1.5 mi89 e santa rita blvdna
- Grades KG-06Privatedivine savior academy - santa rita ranch1.9 mi23857 ronald w reagan blvdna
- Grades PK-05Publicnew elementary bar w3.5 mi2100 stamp iron avena
GreatSchools’ Summary Rating calculation is based on 4 of the school’s themed ratings, including test scores, student/academic progress, college readiness, and equity. This information should only be used as a reference. Jome is not affiliated with GreatSchools and does not endorse or guarantee this information. Please reach out to schools directly to verify all information and enrollment eligibility. Data provided by GreatSchools.org © 2025
Places of interest
Getting around
Air quality

Considering this home?
Our expert will guide your tour, in-person or virtual
Need more information?
Text or call (888) 545-5198
Financials
Estimated monthly payment
Let us help you find your dream home
How many bedrooms are you looking for?
Similar homes nearby
Recently added communities in this area
Nearby communities in Liberty Hill
New homes in nearby cities
More New Homes in Liberty Hill, TX
Perry Homes Realty, LLC, MLS 4407350
Based on information from the Austin Board of REALTORS® (alternatively, from ACTRIS) for the period through 08/13/2024. Neither the Board nor ACTRIS guarantees or is in any way responsible for its accuracy. All data is provided “AS IS” and with all faults. Data maintained by the Board or ACTRIS may not reflect all real estate activity in the market. Information being provided is for consumers’ personal, non-commercial use and may not be used for any purpose other than to identify prospective properties consumers may be interested in purchasing. The Digital Millennium Copyright Act of 1998, 17 U.S.C. § 512 (the “DMCA”) provides recourse for copyright owners who believe that material appearing on the Internet infringes their rights under U.S. copyright law. If you believe in good faith that any content or material made available in connection with our website or services infringes your copyright, you (or your agent) may send us a notice requesting that the content or material be removed, or access to it blocked. Notices must be sent in writing by email to DMCAnotice@MLSGrid.com. The DMCA requires that your notice of alleged copyright infringement include the following information: (1) description of the copyrighted work that is the subject of claimed infringement; (2) description of the alleged infringing content and information sufficient to permit us to locate the content; (3) contact information for you, including your address, telephone number and email address; (4) a statement by you that you have a good faith belief that the content in the manner complained of is not authorized by the copyright owner, or its agent, or by the operation of any law; (5) a statement by you, signed under penalty of perjury, that the information in the notification is accurate and that you have the authority to enforce the copyrights that are claimed to be infringed; and (6) a physical or electronic signature of the copyright owner or a person authorized to act on the copyright owner’s behalf. Failure to include all of the above information may result in the delay of the processing of your complaint.
Read moreLast checked Apr 9, 6:40 am
- Jome
- New homes search
- Texas
- Greater Austin Area
- Williamson County
- Liberty Hill
- Santa Rita Ranch Tierra Rosa
- Santa Rita Ranch 40'
- 105 Blue Summit Bnd, Liberty Hill, TX 78642



































