




- 4 bd
- 3 ba
- 2,567 sqft
The Omaha plan in Grand Central Park - Ascent Collection by David Weekley Homes
New Homes for Sale Near 422 Lake Day Dr, Conroe, TX 77304
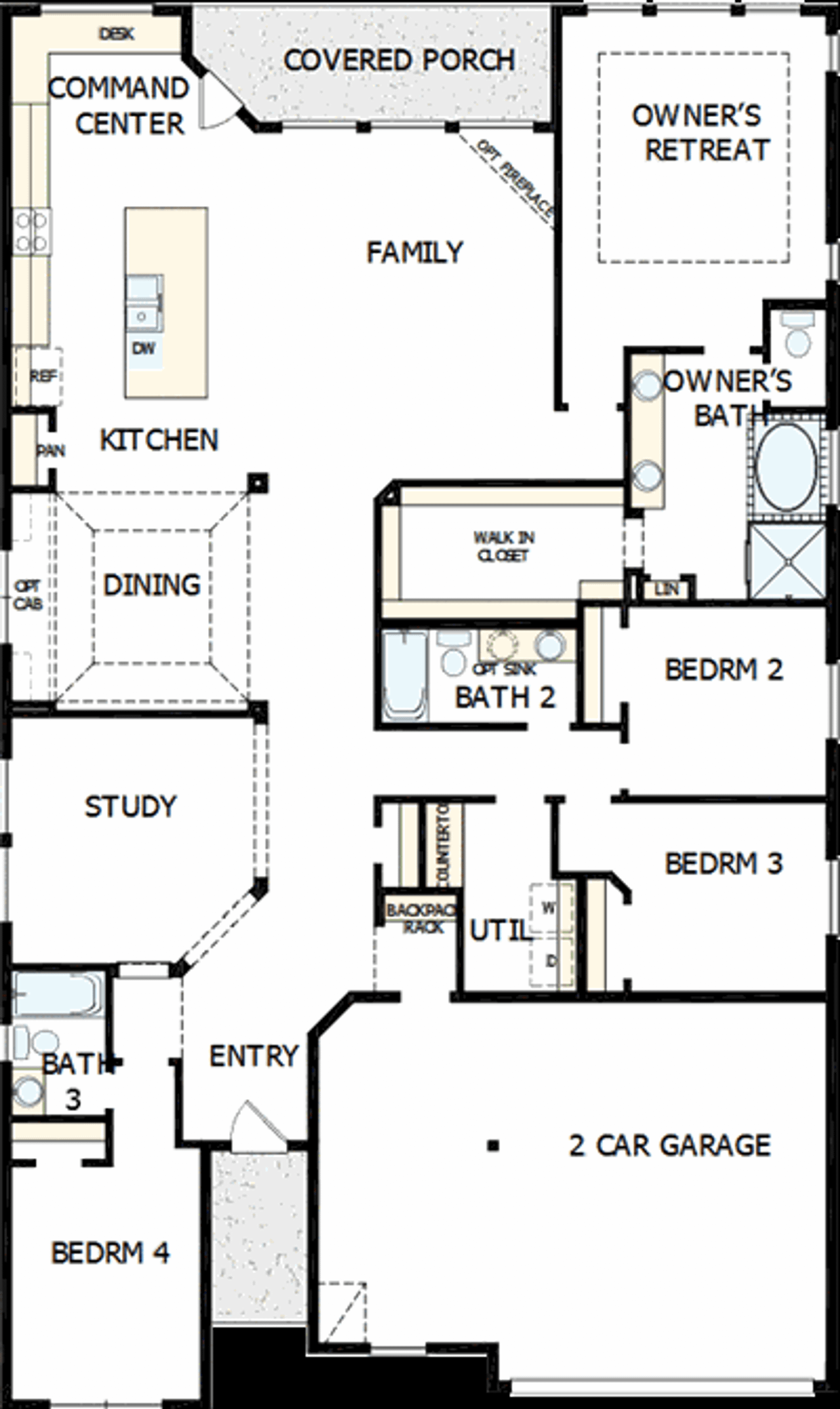
About this Plan
May also be listed on the David Weekley Homes website
Information last verified by Jome: Monday at 1:33 AM (March 9, 2026)
Plan details
- Name:
- The Omaha
- Property type:
- Sold
- Community:
- Grand Central Park - Ascent Collection
- Builder:
- David Weekley Homes
- Lot width (feet):
- 55
- Size from:
- 2,567 sqft
- Size to:
- 3,160 sqft
- Stories:
- 1
- Beds:
- 4
- Baths:
- 3
- Half baths to:
- 1
- Garage spaces from:
- 2
- Garage spaces to:
- 3
Plan features & finishes
- Garage/Parking:
- GarageAttached Garage
- Interior Features:
- Walk-In ClosetPantry
- Laundry facilities:
- Utility/Laundry Room
- Property amenities:
- Porch
- Rooms:
- Primary Bedroom On MainKitchenOffice/StudyDining RoomFamily RoomOpen Concept FloorplanPrimary Bedroom Downstairs

Community details
Grand Central Park - Ascent Collection at Grand Central Park
by David Weekley Homes, Conroe, TX
- 4 homes
- 9 plans
- 2,271 - 3,241 sqft
View Grand Central Park - Ascent Collection details
Want to know more about what's around here?
The The Omaha floor plan is part of Grand Central Park - Ascent Collection, a new home community by David Weekley Homes, located in Conroe, TX. Visit the Grand Central Park - Ascent Collection community page for full neighborhood insights, including nearby schools, shopping, walk & bike-scores, commuting, air quality & natural hazards.

Homes built from this plan
Available homes in Grand Central Park - Ascent Collection
- Home at address 115 Silverbow Creek Wy, Conroe, TX 77304
Savings$539,000
Move-in ready- 4 bd
- 3 ba
- 2,681 sqft
115 Silverbow Creek Wy, Conroe, TX 77304
More floor plans in Grand Central Park - Ascent Collection
Financials
Nearby communities in Conroe
Homes in Conroe by David Weekley Homes
Recently added communities in this area
Other Builders in Conroe, TX
Nearby sold homes
New homes in nearby cities
More New Homes in Conroe, TX
- Jome
- New homes search
- Texas
- Greater Houston Area
- Conroe
- Grand Central Park - Ascent Collection
- 422 Lake Day Dr, Conroe, TX 77304







































































