

































Sold
- 4 bd
- 2 ba
- 1,649 sqft
Glendale plan in Polo Fields by D.R. Horton
Kingsport, TN
Last saved price from $317,990
New Homes for Sale Near 435 Rock Springs Rd, Kingsport, TN 37663
About this Plan
This plan is sold. The information provided reflects details of the plan when it was on the market.
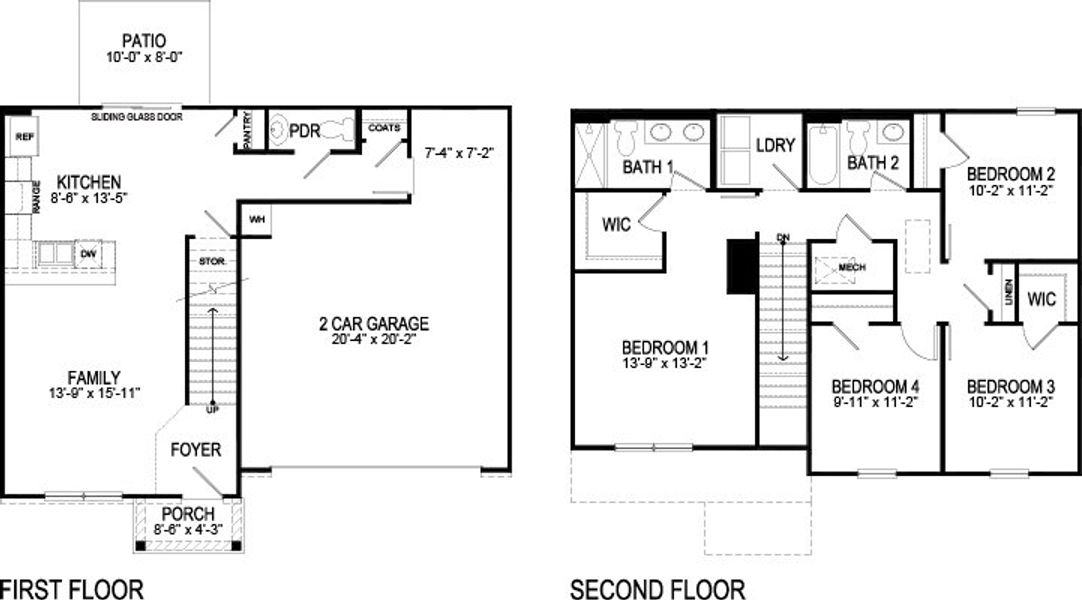
For a growing family needing separate spaces, the Glendale's four bedrooms offer distinct advantages. This two-story home, starting at $317,990, provides a dedicated laundry room on the upper level, keeping chores convenient to where they're needed most. The main level's open concept living and kitchen area encourages togetherness, while the powder room on this floor is practical for daily use and guests. Each of the three additional bedrooms ensures children have their own space, and the primary suite includes a walk-in closet and en suite bathroom for parental retreat. With a concrete rear patio for outdoor enjoyment and ample storage throughout, this 1649 sqft home is structured for active family life.
May also be listed on the D.R. Horton website
Information last verified by Jome: Today at 2:56 AM (May 23, 2026)
Plan details
*Pricing and availability are subject to change.
- Name:
- Glendale
- Property type:
- Sold
- Community:
- Polo Fields
- Builder:
- D.R. Horton
- Size:
- 1,649 sqft
- Stories:
- 2
- Beds:
- 4
- Baths:
- 2
- Garage spaces:
- 2
Plan features & finishes
- Garage/Parking:
- Garage
Want to know more about what's around here?
The Glendale floor plan is part of Polo Fields, a new home community by D.R. Horton, located in Kingsport, TN. Visit the Polo Fields community page for full neighborhood insights, including nearby schools, shopping, walk & bike-scores, commuting, air quality & natural hazards.

Homes built from this plan
Nearby communities in Kingsport
Homes in Kingsport by D.R. Horton
Recently added communities in this area
Other Builders in Kingsport, TN
Nearby sold homes
New homes in nearby cities
More New Homes in Kingsport, TN
Something doesn't look right on this page?
- Jome
- New homes search
- Tennessee
- Chattanooga-Knoxville Area
- Sullivan County
- Kingsport
- Polo Fields
- 435 Rock Springs Rd, Kingsport, TN 37663




































