








Book your tour. Save an average of $18,473. We'll handle the rest.
We collect exclusive builder offers, book your tours, and support you from start to housewarming.
- Confirmed tours
- Get matched & compare top deals
- Expert help, no pressure
- No added fees
Estimated value based on Jome data, T&C apply
























- 4 bd
- 4 ba
- 3,278 sqft
Boca II w/Bonus - Single Family Homes plan in Seaire by Dream Finders Homes
Visit the community to experience this floor plan
Why tour with Jome?
- No pressure toursTour at your own pace with no sales pressure
- Expert guidanceGet insights from our home buying experts
- Exclusive accessSee homes and deals not available elsewhere
Jome is featured in
Plan description
May also be listed on the Dream Finders Homes website
Information last verified by Jome: Today at 5:05 AM (April 17, 2026)
Plan details
- Name:
- Boca II w/Bonus - Single Family Homes
- Property type:
- Floor plan
- Community:
- Seaire
- Builder:
- Dream Finders Homes
- Collection:
- Seaire 60'
- Size:
- 3,278 sqft
- Stories:
- 1.5
- Beds from:
- 4
- Beds to:
- 5
- Baths:
- 4
- Garage spaces:
- 3
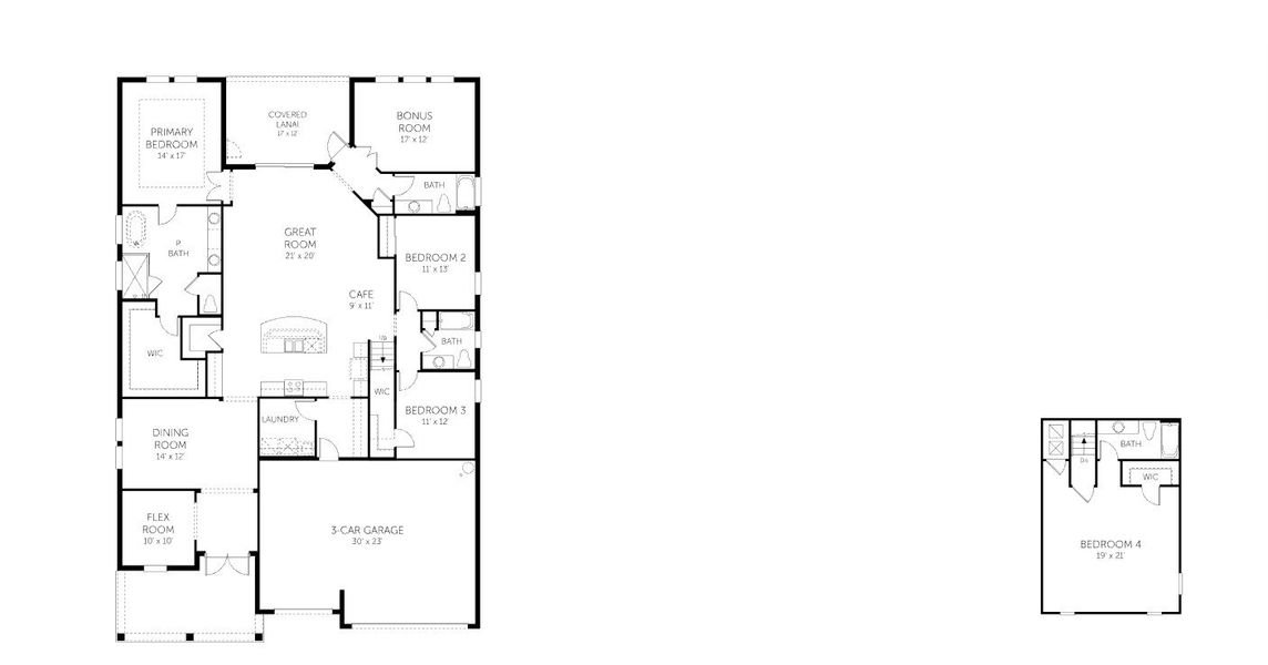
Plan features & finishes
- Garage/Parking:
- GarageAttached Garage
- Interior Features:
- Walk-In Closet
- Kitchen:
- Kitchen Island
- Laundry facilities:
- Utility/Laundry Room
- Property amenities:
- PatioPorch
- Rooms:
- Bonus RoomFlex RoomPrimary Bedroom On MainKitchenDining RoomFamily RoomBreakfast AreaOpen Concept FloorplanPrimary Bedroom Downstairs
- Upgrade Options:
- Gourmet KitchenOffice/StudySliding Glass DoorsAlternate Primary BathExtended LanaiGuest Room

Get a consultation with our New Homes Expert
- See how your home builds wealth
- Plan your home-buying roadmap
- Discover hidden gems
See the full plan layout
Download the floor plan PDF with room dimensions and home design details.

Instant download, no cost

Community details
Seaire
by Dream Finders Homes, Palmetto, FL
- 24 homes
- 15 plans
- 1,433 - 3,550 sqft
View Seaire details
Want to know more about what's around here?
The Boca II w/Bonus - Single Family Homes floor plan is part of Seaire, a new home community by Dream Finders Homes, located in Parrish, FL. Visit the Seaire community page for full neighborhood insights, including nearby schools, shopping, walk & bike-scores, commuting, air quality & natural hazards.

Available homes in Seaire
- Home at address 8128 Sunny Point Trl, Parrish, FL 34219

Salerno
SavingsSeaire 40'
$418,639
- 4 bd
- 2.5 ba
- 2,002 sqft
8128 Sunny Point Trl, Parrish, FL 34219
- Home at address 8132 Sunny Point Trl, Parrish, FL 34219

Florence
SavingsSeaire 40'
$424,940
- 4 bd
- 2.5 ba
- 2,103 sqft
8132 Sunny Point Trl, Parrish, FL 34219
- Home at address 8086 Sunny Point Trl, Parrish, FL 34219

Florence
SavingsSeaire 40'
$428,990
- 4 bd
- 2.5 ba
- 2,103 sqft
8086 Sunny Point Trl, Parrish, FL 34219
- Home at address 7827 Glen Lily Pl, Parrish, FL 34219

Lucca
SavingsSeaire 50'
$484,710
- 4 bd
- 3 ba
- 2,111 sqft
7827 Glen Lily Pl, Parrish, FL 34219
- Home at address 7823 Glen Lily Pl, Parrish, FL 34219

Ravenna
SavingsSeaire 50'
$492,264
- 4 bd
- 2.5 ba
- 2,235 sqft
7823 Glen Lily Pl, Parrish, FL 34219
- Home at address 7835 Glen Lily Pl, Parrish, FL 34219

Ravenna
SavingsSeaire 50'
$494,633
- 4 bd
- 2.5 ba
- 2,235 sqft
7835 Glen Lily Pl, Parrish, FL 34219
More floor plans in Seaire
- View details for Salerno - Single Family Homes

Salerno - Single Family Homes
SavingsSeaire 40'
$384,990+- 4 bd
- 2.5 ba
- 2,002 sqft
- View details for Florence - Single Family Homes

Florence - Single Family Homes
SavingsSeaire 40'
$389,990+- 4 bd
- 2.5 ba
- 2,103 sqft

Considering this plan?
Our expert will guide your tour, in-person or virtual
Need more information?
Text or call (888) 545-5198
Financials
Estimated monthly payment
Let us help you find your dream home
How many bedrooms are you looking for?
Similar homes nearby
Recently added communities in this area
Nearby communities in Parrish
New homes in nearby cities
More New Homes in Parrish, FL
- Jome
- New homes search
- Florida
- Tampa Bay Area
- Manatee County
- Parrish
- Seaire
- Seaire 60'
- 7495 Sea Manatee St, Parrish, FL 34219































