



- 4 bd
- 2.5 ba
- 2,002 sqft
8112 Sunny Point Trl, Parrish, FL 34219
- Single-Family
- $210.28/sqft
- $100/monthly HOA
- 58 days on Jome
New Homes for Sale Near 8112 Sunny Point Trl, Parrish, FL 34219
About this Home
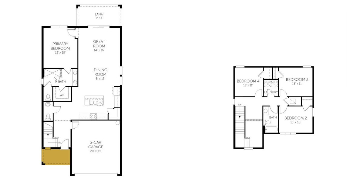
The Salerno floorplan by Dream Finders Homes offers 2,002 square feet of thoughtfully designed living space across two stories. This home features 4 bedrooms, 2.5 bathrooms, and a spacious 2-car garage. The first floor includes an open-concept layout with a large family room, dining area, and gourmet kitchen complete with a center island and walk-in pantry. The primary bedroom is conveniently located on the first floor and features a luxurious bath with dual vanities and a walk-in closet. Upstairs, you’ll find three additional bedrooms and a full bath. A covered lanai extends the living space outdoors.
May also be listed on the Dream Finders Homes website
Information last verified by Jome: Wednesday at 5:04 AM (March 18, 2026)
Home details
- Property status:
- Sold
- Collection:
- Seaire 40'
- Size:
- 2,002 sqft
- Stories:
- 2
- Beds:
- 4
- Baths:
- 2
- Half baths:
- 1
- Garage spaces:
- 1.5

Floor plan details
Salerno - Single Family Homes
- 4 bd
- 2.5 ba
- 2,002 sqft
View Salerno - Single Family Homes details
Construction details
- Builder Name:
- Dream Finders Homes
Home features & finishes
- Garage/Parking:
- GarageAttached Garage
- Interior Features:
- Walk-In Closet
- Kitchen:
- Kitchen Island
- Laundry facilities:
- Utility/Laundry Room
- Property amenities:
- Lanai
- Rooms:
- Primary Bedroom On MainKitchenPowder RoomDining RoomOpen Concept FloorplanPrimary Bedroom Downstairs

Community details
Seaire
by Dream Finders Homes, Palmetto, FL
- 24 homes
- 15 plans
- 1,433 - 3,550 sqft
View Seaire details
More homes in Seaire
- Home at address 8128 Sunny Point Trl, Parrish, FL 34219
Savings$418,639
Move-in ready- 4 bd
- 2.5 ba
- 2,002 sqft
8128 Sunny Point Trl, Parrish, FL 34219
- Home at address 8132 Sunny Point Trl, Parrish, FL 34219
Savings$424,940
Move-in ready- 4 bd
- 2.5 ba
- 2,103 sqft
8132 Sunny Point Trl, Parrish, FL 34219
- Home at address 8086 Sunny Point Trl, Parrish, FL 34219
Savings$428,990
Move-in ready- 4 bd
- 2.5 ba
- 2,103 sqft
8086 Sunny Point Trl, Parrish, FL 34219
- Home at address 7827 Glen Lily Pl, Parrish, FL 34219
Savings$484,710
Move-in ready- 4 bd
- 3 ba
- 2,111 sqft
7827 Glen Lily Pl, Parrish, FL 34219
- Home at address 7823 Glen Lily Pl, Parrish, FL 34219
Savings$492,264
Move-in ready- 4 bd
- 2.5 ba
- 2,235 sqft
7823 Glen Lily Pl, Parrish, FL 34219
- Home at address 7835 Glen Lily Pl, Parrish, FL 34219
Savings$494,633
Move-in ready- 4 bd
- 2.5 ba
- 2,235 sqft
7835 Glen Lily Pl, Parrish, FL 34219
Floor plans in Seaire
- View details for Salerno - Single Family Homes

Salerno - Single Family Homes
SavingsSeaire 40'
$384,990+- 4 bd
- 2.5 ba
- 2,002 sqft
- View details for Florence - Single Family Homes

Florence - Single Family Homes
SavingsSeaire 40'
$389,990+- 4 bd
- 2.5 ba
- 2,103 sqft
About the builder - Dream Finders Homes

- 333communities on Jome
- 1,577homes on Jome
Neighborhood
Home address
Schools in Manatee County School District
GreatSchools’ Summary Rating calculation is based on 4 of the school’s themed ratings, including test scores, student/academic progress, college readiness, and equity. This information should only be used as a reference. Jome is not affiliated with GreatSchools and does not endorse or guarantee this information. Please reach out to schools directly to verify all information and enrollment eligibility. Data provided by GreatSchools.org © 2025
Places of interest
Getting around
Air quality
Noise level
A Soundscore™ rating is a number between 50 (very loud) and 100 (very quiet) that tells you how loud a location is due to environmental noise.
Financials
Nearby communities in Parrish
Homes in Parrish by Dream Finders Homes
Recently added communities in this area
Other Builders in Parrish, FL
Nearby sold homes
New homes in nearby cities
More New Homes in Parrish, FL
- Jome
- New homes search
- Florida
- Tampa Bay Area
- Manatee County
- Parrish
- Seaire
- Seaire 40'
- 8112 Sunny Point Trl, Parrish, FL 34219
























































