



Book your tour. Save an average of $18,473. We'll handle the rest.
We collect exclusive builder offers, book your tours, and support you from start to housewarming.
- Confirmed tours
- Get matched & compare top deals
- Expert help, no pressure
- No added fees
Estimated value based on Jome data, T&C apply


- 4 bd
- 3.5 ba
- 2,699 sqft
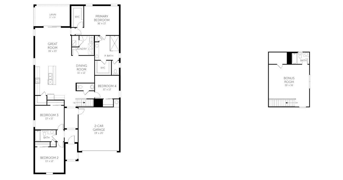
Ravenna II - Single Family Homes plan in Seaire by Dream Finders Homes
Visit the community to experience this floor plan
Why tour with Jome?
- No pressure toursTour at your own pace with no sales pressure
- Expert guidanceGet insights from our home buying experts
- Exclusive accessSee homes and deals not available elsewhere
Jome is featured in
Plan description
May also be listed on the Dream Finders Homes website
Information last verified by Jome: Today at 5:51 AM (March 29, 2026)
Plan details
- Name:
- Ravenna II - Single Family Homes
- Property type:
- Floor plan
- Community:
- Seaire
- Builder:
- Dream Finders Homes
- Collection:
- Seaire 50'
- Size:
- 2,699 sqft
- Stories:
- 2
- Beds:
- 4
- Baths:
- 3
- Half baths:
- 1
- Garage spaces:
- 2
Plan features & finishes
- Garage/Parking:
- GarageAttached Garage
- Interior Features:
- Walk-In ClosetPantry
- Kitchen:
- Kitchen Island
- Laundry facilities:
- Utility/Laundry Room
- Property amenities:
- Lanai
- Rooms:
- Bonus RoomGreat RoomPrimary Bedroom On MainKitchenDining RoomOpen Concept FloorplanPrimary Bedroom Downstairs
- Upgrade Options:
- Gourmet KitchenSliding Glass DoorsShower

Get a consultation with our New Homes Expert
- See how your home builds wealth
- Plan your home-buying roadmap
- Discover hidden gems
See the full plan layout
Download the floor plan PDF with room dimensions and home design details.

Instant download, no cost

Community details
Seaire
by Dream Finders Homes, Palmetto, FL
- 25 homes
- 15 plans
- 1,433 - 3,550 sqft
View Seaire details
Want to know more about what's around here?
The Ravenna II - Single Family Homes floor plan is part of Seaire, a new home community by Dream Finders Homes, located in Parrish, FL. Visit the Seaire community page for full neighborhood insights, including nearby schools, shopping, walk & bike-scores, commuting, air quality & natural hazards.

Homes built from this plan
Available homes in Seaire
- Home at address 8128 Sunny Point Trl, Parrish, FL 34219

Salerno
Seaire 40'
$418,639
- 4 bd
- 2.5 ba
- 2,002 sqft
8128 Sunny Point Trl, Parrish, FL 34219
- Home at address 8132 Sunny Point Trl, Parrish, FL 34219

Florence
Seaire 40'
$424,940
- 4 bd
- 2.5 ba
- 2,103 sqft
8132 Sunny Point Trl, Parrish, FL 34219
- Home at address 7827 Glen Lily Pl, Parrish, FL 34219

Lucca
Seaire 50'
$484,710
- 4 bd
- 3 ba
- 2,111 sqft
7827 Glen Lily Pl, Parrish, FL 34219
- Home at address 7823 Glen Lily Pl, Parrish, FL 34219

Ravenna
Seaire 50'
$492,264
- 4 bd
- 2.5 ba
- 2,235 sqft
7823 Glen Lily Pl, Parrish, FL 34219
- Home at address 7835 Glen Lily Pl, Parrish, FL 34219

Ravenna
Seaire 50'
$494,633
- 4 bd
- 2.5 ba
- 2,235 sqft
7835 Glen Lily Pl, Parrish, FL 34219
- Home at address 7831 Glen Lily Pl, Parrish, FL 34219

Modena
Seaire 50'
$516,056
- 4 bd
- 3 ba
- 2,519 sqft
7831 Glen Lily Pl, Parrish, FL 34219
More floor plans in Seaire
- View details for Salerno - Single Family Homes

Salerno - Single Family Homes
Seaire 40'
$384,990+- 4 bd
- 2.5 ba
- 2,002 sqft
- View details for Florence - Single Family Homes

Florence - Single Family Homes
Seaire 40'
$389,990+- 4 bd
- 2.5 ba
- 2,103 sqft

Considering this plan?
Our expert will guide your tour, in-person or virtual
Need more information?
Text or call (888) 545-5198
Financials
Estimated monthly payment
Let us help you find your dream home
How many bedrooms are you looking for?































