




Book your tour. Save an average of $18,473. We'll handle the rest.
We collect exclusive builder offers, book your tours, and support you from start to housewarming.
- Confirmed tours
- Get matched & compare top deals
- Expert help, no pressure
- No added fees
Estimated value based on Jome data, T&C apply
- 4 bd
- 2.5 ba
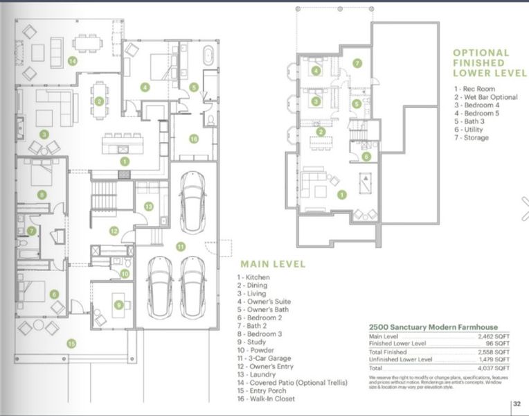
- 2,558 sqft
2500 Sanctuary plan in Northstar by Markel Homes
Visit the community to experience this floor plan
Why tour with Jome?
- No pressure toursTour at your own pace with no sales pressure
- Expert guidanceGet insights from our home buying experts
- Exclusive accessSee homes and deals not available elsewhere
Jome is featured in
Plan description
May also be listed on the Markel Homes website
Information last verified by Jome: Sunday at 5:00 PM (February 15, 2026)
Plan details
- Name:
- 2500 Sanctuary
- Property status:
- Floor plan
- Size:
- 2,558 sqft
- Stories:
- 1
- Beds:
- 4
- Baths:
- 2.5
- Garage spaces:
- 3
Plan features & finishes
- Garage/Parking:
- GarageAttached Garage
- Interior Features:
- Walk-In ClosetStorage
- Laundry facilities:
- Utility/Laundry Room
- Property amenities:
- BasementCovered PatioPorch
- Rooms:
- Primary Bedroom On MainKitchenEntry HallPowder RoomOffice/StudyDining RoomLiving RoomOpen Concept FloorplanPrimary Bedroom Downstairs
- Upgrade Options:
- Wet Bar

Get a consultation with our New Homes Expert
- See how your home builds wealth
- Plan your home-buying roadmap
- Discover hidden gems
See the full plan layout
Download the floor plan PDF with room dimensions and home design details.

Instant download, no cost

Community details
Northstar
by Markel Homes, Longmont, CO
- 2 homes
- 3 plans
- 1,968 - 3,302 sqft
View Northstar details
Want to know more about what's around here?
The 2500 Sanctuary floor plan is part of Northstar, a new home community by Markel Homes, located in Longmont, CO. Visit the Northstar community page for full neighborhood insights, including nearby schools, shopping, walk & bike-scores, commuting, air quality & natural hazards.

Homes built from this plan
Available homes in Northstar
- Home at address 2286 Star Hill St, Longmont, CO 80503

2000 Oasis
$1,249,900
- 3 bd
- 2.5 ba
- 3,302 sqft
2286 Star Hill St, Longmont, CO 80503
More floor plans in Northstar

Considering this plan?
Our expert will guide your tour, in-person or virtual
Need more information?
Text or call (888) 488-9243
Financials
Let us help you find your dream home
How many bedrooms are you looking for?
Similar homes nearby
Recently added communities in this area
Nearby communities in Longmont
New homes in nearby cities
More New Homes in Longmont, CO
- Jome
- New homes search
- Colorado
- Denver Metropolitan Area
- Boulder County
- Longmont
- Northstar
- 2102 Star Hill St, Longmont, CO 80503






























