


















- 6 bd
- 4.5 ba
- 3,363 sqft
Vienne plan in Viviendo by K. Hovnanian® Homes
New Homes for Sale Near Chandler, AZ 85249
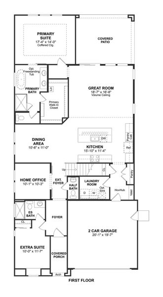
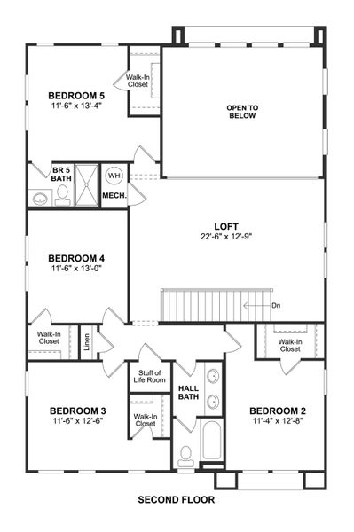
About this Plan
May also be listed on the K. Hovnanian® Homes website
Information last verified by Jome: Tuesday at 5:56 PM (February 10, 2026)
Plan details
- Name:
- Vienne
- Property status:
- Sold
- Size:
- 3,363 sqft
- Stories:
- 2
- Beds:
- 6
- Baths:
- 4.5
- Garage spaces:
- 2
Plan features & finishes
- Garage/Parking:
- GarageAttached Garage
- Interior Features:
- Walk-In ClosetFoyerPantryLoft
- Kitchen:
- Kitchen Island
- Laundry facilities:
- Utility/Laundry Room
- Property amenities:
- Patio
- Rooms:
- Great RoomKitchenOffice/StudyDining RoomOpen Concept FloorplanPrimary Bedroom Downstairs
- Upgrade Options:
- Freestanding TubMulti-Slide Doors
See the full plan layout
Download the floor plan PDF with room dimensions and home design details.

Instant download, no cost

Community details
Viviendo
by K. Hovnanian® Homes, Chandler, AZ
- 6 homes
- 3 plans
- 2,147 - 3,397 sqft
View Viviendo details
Want to know more about what's around here?
The Vienne floor plan is part of Viviendo, a new home community by K. Hovnanian® Homes, located in Chandler, AZ. Visit the Viviendo community page for full neighborhood insights, including nearby schools, shopping, walk & bike-scores, commuting, air quality & natural hazards.

Homes built from this plan
Available homes in Viviendo
- Home at address 4156 S Springs Dr, Chandler, AZ 85249

$780,750
Under construction- 4 bd
- 3 ba
- 2,147 sqft
4156 S Springs Dr, Chandler, AZ 85249
- Home at address 4116 S Springs Dr, Chandler, AZ 85249

$782,640
Move-in ready- 4 bd
- 3 ba
- 2,147 sqft
4116 S Springs Dr, Chandler, AZ 85249
- Home at address 4237 S Springs Dr, Chandler, AZ 85249

$784,740
Move-in ready- 4 bd
- 3 ba
- 2,147 sqft
4237 S Springs Dr, Chandler, AZ 85249
- Home at address 4166 S Springs Dr, Chandler, AZ 85249

$799,410
Move-in ready- 3 bd
- 3 ba
- 2,567 sqft
4166 S Springs Dr, Chandler, AZ 85249
- Home at address 4206 S Springs Dr, Chandler, AZ 85249

$849,990
Move-in ready- 5 bd
- 3.5 ba
- 2,854 sqft
4206 S Springs Dr, Chandler, AZ 85249






























































