








Book your tour. Save an average of $18,473. We'll handle the rest.
We collect exclusive builder offers, book your tours, and support you from start to housewarming.
- Confirmed tours
- Get matched & compare top deals
- Expert help, no pressure
- No added fees
Estimated value based on Jome data, T&C apply



- 5 bd
- 4.5 ba
- 4,247 sqft
1208 Strait Ln, Burleson, TX 76028
Why tour with Jome?
- No pressure toursTour at your own pace with no sales pressure
- Expert guidanceGet insights from our home buying experts
- Exclusive accessSee homes and deals not available elsewhere
Jome is featured in
- Single-Family
- Quick move-in
- $181.47/sqft
- $725/annual HOA
Home description
MLS# 21219301 - Built by First Texas Homes - Ready Now! ~ Discover the beautifully designed Hillcrest 2 home in High Country, Burleson, offering 4,247 sq ft of elegant living space. This impressive residence features 5 spacious bedrooms, 4.5 bathrooms, and a 2-car garage. Enjoy exceptional privacy as the home backs to a tranquil greenbelt, providing a peaceful retreat. Perfect for both everyday living and entertaining, the home boasts custom features and surround sound in the living area, media room, and covered back porch. Schedule your tour today and experience elevated living!
HomesUSA.com, MLS 21219301
May also be listed on the First Texas Homes website
Information last verified by Jome: Today at 2:25 AM (April 1, 2026)
Home highlights
Book your tour. Save an average of $18,473. We'll handle the rest.
We collect exclusive builder offers, book your tours, and support you from start to housewarming.
- Confirmed tours
- Get matched & compare top deals
- Expert help, no pressure
- No added fees
Estimated value based on Jome data, T&C apply
Home details
- Property status:
- Move-in ready
- Lot size (acres):
- 0.25
- Size:
- 4,247 sqft
- Stories:
- 2
- Beds:
- 5
- Baths:
- 4
- Half baths:
- 1
- Garage spaces:
- 2
- Fence:
- Wood Fence

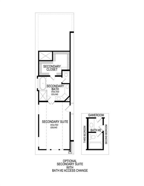
Floor plan details
Hillcrest 2F (w/Media)
- 5 bd
- 3.5 ba
- 3,896 sqft
View Hillcrest 2F (w/Media) details
Construction details
- Builder Name:
- First Texas Homes
- Year Built:
- 2026
- Roof:
- Roof Gutter, Composition Roofing
Home features & finishes
- Appliances:
- Exhaust Fan Vented
- Construction Materials:
- CementBrick
- Cooling:
- Ceiling Fan(s)Central Air
- Flooring:
- Wood FlooringCarpet FlooringTile Flooring
- Foundation Details:
- Slab
- Garage/Parking:
- GarageAttached Garage
- Interior Features:
- Ceiling-VaultedWalk-In ClosetFoyerPantryWet BarSound System WiringDouble Vanity
- Kitchen:
- DishwasherMicrowave OvenDisposalGas CooktopKitchen IslandElectric Oven
- Laundry facilities:
- DryerWasherUtility/Laundry Room
- Lighting:
- Exterior LightingDecorative/Designer Lighting
- Property amenities:
- SidewalkBackyardElectric FireplacePatioFireplaceYardSmart Home SystemPorch
- Rooms:
- Flex RoomPrimary Bedroom On MainKitchenGame RoomMedia RoomOffice/StudyDining RoomFamily RoomLiving RoomOpen Concept FloorplanPrimary Bedroom Downstairs
- Security system:
- Smoke Detector

Get a consultation with our New Homes Expert
- See how your home builds wealth
- Plan your home-buying roadmap
- Discover hidden gems
Utility information
- Heating:
- Water Heater, Central Heating, Tankless water heater
- Utilities:
- Underground Utilities, City Water System, Individual Water Meter, Individual Gas Meter, High Speed Internet Access, Curbs

Community details
High Country
by First Texas Homes, Burleson, TX
- 11 homes
- 13 plans
- 2,293 - 4,670 sqft
View High Country details
Community amenities
- Playground
- Park Nearby
- Sidewalks Available
- Greenbelt View
- Walking, Jogging, Hike Or Bike Trails
More homes in High Country
- Home at address 1328 Cash St, Burleson, TX 76028

Coventry 2F
$579,950
- 5 bd
- 4 ba
- 3,278 sqft
1328 Cash St, Burleson, TX 76028
- Home at address 309 Loretta Ln, Burleson, TX 76028

Boston 2F (w/Media)
$646,950
- 5 bd
- 4 ba
- 3,874 sqft
309 Loretta Ln, Burleson, TX 76028
- Home at address 341 Loretta Ln, Burleson, TX 76028

Brentwood 3F (w/Media)
$713,950
- 5 bd
- 4 ba
- 4,315 sqft
341 Loretta Ln, Burleson, TX 76028
- Home at address 421 Willie Wy, Burleson, TX 76028

Northcrest FSW w/ Media
$751,527
- 5 bd
- 4.5 ba
- 4,670 sqft
421 Willie Wy, Burleson, TX 76028
- Home at address 633 Ole Opry Dr, Burleson, TX 76028

Stonebriar 2FSW (w/Media)
$761,796
- 6 bd
- 4.5 ba
- 4,381 sqft
633 Ole Opry Dr, Burleson, TX 76028
- Home at address 1228 Strait Ln, Burleson, TX 76028

Northcrest 2FSW (w/Media)
$783,950
- 5 bd
- 4.5 ba
- 4,552 sqft
1228 Strait Ln, Burleson, TX 76028
Floor plans in High Country
About the builder - First Texas Homes
Neighborhood
Home address
Schools in Burleson Independent School District
GreatSchools’ Summary Rating calculation is based on 4 of the school’s themed ratings, including test scores, student/academic progress, college readiness, and equity. This information should only be used as a reference. Jome is not affiliated with GreatSchools and does not endorse or guarantee this information. Please reach out to schools directly to verify all information and enrollment eligibility. Data provided by GreatSchools.org © 2025
Places of interest
Getting around
Air quality
Noise level
A Soundscore™ rating is a number between 50 (very loud) and 100 (very quiet) that tells you how loud a location is due to environmental noise.

Considering this home?
Our expert will guide your tour, in-person or virtual
Need more information?
Text or call (888) 545-5198
Financials
Estimated monthly payment
Let us help you find your dream home
How many bedrooms are you looking for?
Similar homes nearby
Recently added communities in this area
Nearby communities in Burleson
New homes in nearby cities
More New Homes in Burleson, TX
HomesUSA.com, MLS 21219301
IDX information is provided exclusively for personal, non-commercial use, and may not be used for any purpose other than to identify prospective properties consumers may be interested in purchasing. You may not reproduce or redistribute this data, it is for viewing purposes only. This data is deemed reliable, but is not guaranteed accurate by the MLS or NTREIS.
Read moreLast checked Apr 1, 4:00 am
- Jome
- New homes search
- Texas
- Dallas-Fort Worth Area
- Tarrant County
- Burleson
- High Country
- 1208 Strait Ln, Burleson, TX 76028
































