


















- 4 bd
- 2 ba
- 1,772 sqft
5524 Eula Ln, New Braunfels, TX 78130
- Single-Family
- $238.09/sqft
- 94 days on Jome
New Homes for Sale Near 5524 Eula Ln, New Braunfels, TX 78130
About this Home
About this home
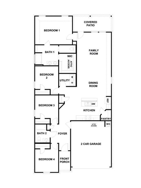
See yourself at 5524 Eula Ln! The Gaven is one of our one-story homes featured in our Mayfair community in New Braunfels, Texas. This efficient floorplan offers 1,780 square feet of living space across 4 bedrooms, 2 bathrooms and a 2-car garage. Our homes in Mayfair feature front masonry exteriors.
Stepping inside the home from the covered entryway, you will find two secondary bedrooms and a full bathroom off the foyer. The secondary bathroom includes a shower/tub combination, and the bedrooms feature a closet with shelving.
Moving further into the home, you will find the kitchen, which includes an island with an undermount sink, stainless steel appliances, including a gas range, quartz countertops and 42” upper cabinets. The dining room and family room flow easily from the kitchen and you’re sure to make many memories in this beautiful space. The utility room and bedroom 2 are off the kitchen. With the utility room at the center of the home, your laundry chores will be an easy task to complete.
The primary bedroom is tucked off the family room at the back of the home. Featuring its own attached bathroom with a walk-in shower, double vanity with quartz counter tops, private toilet area with a door, you’ll look forward to your bedtime routine at the end of the day. A walk-in closet is connected to the bathroom, with plenty of room for your accessories and prized possessions.
The Gaven includes vinyl flooring throughout the common areas of the home, and carpet in the bedrooms. All our new homes feature a covered back patio, full sod, irrigation system in the front and back yard, and a 6’ privacy fence around the backyard. This home features our America’s Smart Home base package, which includes the Video Front Doorbell, Front Door Deadbolt Lock, Home Hub, Thermostat, and smart switch.
May also be listed on the D.R. Horton website
Information last verified by Jome: Monday at 1:33 AM (May 11, 2026)
Home details
- Property status:
- Sold
- Size:
- 1,772 sqft
- Stories:
- 1
- Beds:
- 4
- Baths:
- 2
- Garage spaces:
- 2
Construction details
- Builder Name:
- D.R. Horton
Home features & finishes
- Garage/Parking:
- GarageAttached Garage
- Interior Features:
- Walk-In ClosetFoyerPantry
- Kitchen:
- Stainless Steel AppliancesGas CooktopQuartz countertopKitchen Island
- Laundry facilities:
- Utility/Laundry Room
- Property amenities:
- CabinetsPatioSmart Home SystemPorch
- Rooms:
- Primary Bedroom On MainKitchenDining RoomFamily RoomOpen Concept FloorplanPrimary Bedroom Downstairs
Utility information
- Heating:
- Thermostat

Community details
Mayfair at Mayfair
by D.R. Horton, New Braunfels, TX
- 18 homes
- 15 plans
- 1,346 - 2,497 sqft
View Mayfair details
More homes in Mayfair
- Home at address 5510 Daylight Dr, New Braunfels, TX 78130

$309,990
Move-in ready- 4 bd
- 2.5 ba
- 1,766 sqft
5510 Daylight Dr, New Braunfels, TX 78130
- Home at address 5506 Daylight Dr, New Braunfels, TX 78130

$319,990
Move-in ready- 4 bd
- 3.5 ba
- 1,697 sqft
5506 Daylight Dr, New Braunfels, TX 78130
- Home at address 5518 Daylight Dr, New Braunfels, TX 78130

$339,990
Move-in ready- 4 bd
- 2.5 ba
- 2,003 sqft
5518 Daylight Dr, New Braunfels, TX 78130
- Home at address 5528 Eula Ln, New Braunfels, TX 78130

$369,990
Move-in ready- 4 bd
- 2.5 ba
- 2,034 sqft
5528 Eula Ln, New Braunfels, TX 78130
- Home at address 5535 Eula Ln, New Braunfels, TX 78130

$379,990
Move-in ready- 4 bd
- 3 ba
- 2,473 sqft
5535 Eula Ln, New Braunfels, TX 78130
- Home at address 5503 Eula Ln, New Braunfels, TX 78130

$379,990
Move-in ready- 4 bd
- 2 ba
- 1,772 sqft
5503 Eula Ln, New Braunfels, TX 78130
Floor plans in Mayfair
About the builder - D.R. Horton

- 1,143communities on Jome
- 11,357homes on Jome
Neighborhood
Home address
- City:
- New Braunfels
- County:
- Comal
- Zip Code:
- 78130
Schools in Comal Independent School District
GreatSchools’ Summary Rating calculation is based on 4 of the school’s themed ratings, including test scores, student/academic progress, college readiness, and equity. This information should only be used as a reference. Jome is not affiliated with GreatSchools and does not endorse or guarantee this information. Please reach out to schools directly to verify all information and enrollment eligibility. Data provided by GreatSchools.org © 2025
Places of interest
Getting around
Air quality
Noise level
A Soundscore™ rating is a number between 50 (very loud) and 100 (very quiet) that tells you how loud a location is due to environmental noise.
Financials
Nearby communities in New Braunfels
Homes in New Braunfels by D.R. Horton
Recently added communities in this area
Other Builders in New Braunfels, TX
Nearby sold homes
New homes in nearby cities
More New Homes in New Braunfels, TX
- Jome
- New homes search
- Texas
- Greater San Antonio
- Comal County
- New Braunfels
- Mayfair
- 5524 Eula Ln, New Braunfels, TX 78130





































































