



Book your tour. Save an average of $18,473. We'll handle the rest.
We collect exclusive builder offers, book your tours, and support you from start to housewarming.
- Confirmed tours
- Get matched & compare top deals
- Expert help, no pressure
- No added fees
Estimated value based on Jome data, T&C apply
- 3 bd
- 2.5 ba
- 1,532 sqft
1808 Potomac Ln, Blue Ridge, TX 75424
Why tour with Jome?
- No pressure toursTour at your own pace with no sales pressure
- Expert guidanceGet insights from our home buying experts
- Exclusive accessSee homes and deals not available elsewhere
Jome is featured in
- Single-Family
- Under construction
- $171.01/sqft
- $650/annual HOA
Home description
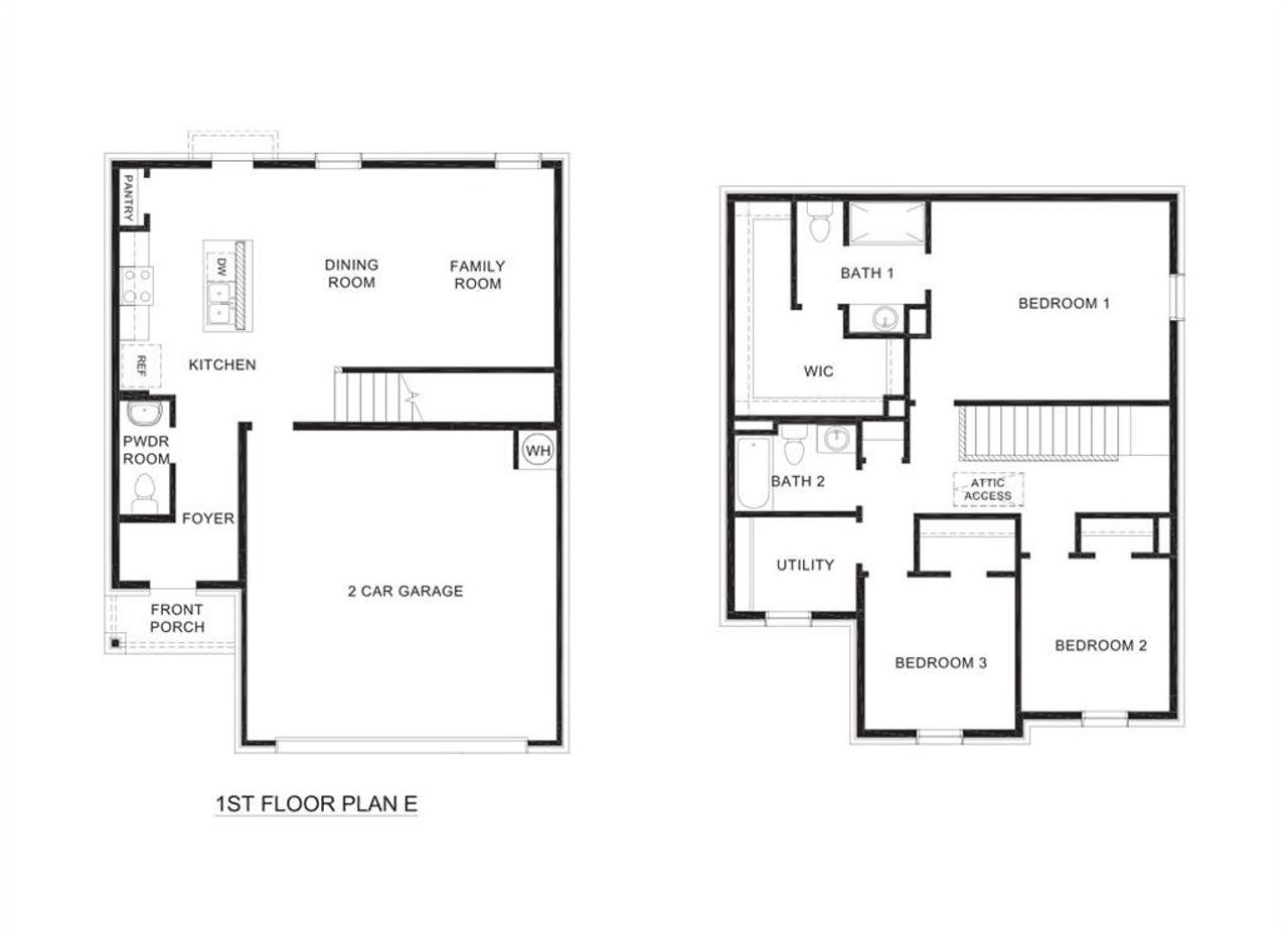
New Construction by DR Horton. Barton Plan - This beautiful 2 story home offers an open layout with 3 Bedrooms, 2.5 Bathrooms, 2 Car Garage. Energy efficient, and smart home features included.
D.R. Horton, AMERICA'S Builder, MLS 21183600
May also be listed on the D.R. Horton website
Information last verified by Jome: Today at 1:47 AM (April 15, 2026)
Home highlights
Book your tour. Save an average of $18,473. We'll handle the rest.
We collect exclusive builder offers, book your tours, and support you from start to housewarming.
- Confirmed tours
- Get matched & compare top deals
- Expert help, no pressure
- No added fees
Estimated value based on Jome data, T&C apply
Home details
- Property status:
- Under construction
- Lot size (acres):
- 0.11
- Size:
- 1,532 sqft
- Stories:
- 2
- Beds:
- 3
- Baths:
- 2
- Half baths:
- 1
- Garage spaces:
- 2
- Facing direction:
- East
Construction details
- Builder Name:
- D.R. Horton
- Year Built:
- 2026
Home features & finishes
- Garage/Parking:
- GarageAttached Garage
- Interior Features:
- Walk-In ClosetFoyerPantrySound System Wiring
- Kitchen:
- DishwasherMicrowave OvenDisposalStainless Steel AppliancesKitchen CountertopKitchen IslandKitchen Range
- Laundry facilities:
- Utility/Laundry Room
- Property amenities:
- CabinetsSmart Home SystemPorch
- Rooms:
- KitchenPowder RoomDining RoomFamily RoomOpen Concept FloorplanPrimary Bedroom Upstairs

Get a consultation with our New Homes Expert
- See how your home builds wealth
- Plan your home-buying roadmap
- Discover hidden gems
Utility information
- Heating:
- Water Heater
- Utilities:
- Cable TV

Community details
Creekside Ranch
by D.R. Horton, Blue Ridge, TX
- 15 homes
- 15 plans
- 1,192 - 2,404 sqft
View Creekside Ranch details
More homes in Creekside Ranch
- Home at address 1817 Teton River Dr, Blue Ridge, TX 75424

Atlanta
$239,990
- 3 bd
- 2 ba
- 1,211 sqft
1817 Teton River Dr, Blue Ridge, TX 75424
- Home at address 1816 Potomac Ln, Blue Ridge, TX 75424

Atlanta
$243,990
- 3 bd
- 2 ba
- 1,211 sqft
1816 Potomac Ln, Blue Ridge, TX 75424
- Home at address 1818 Potomac Ln, Blue Ridge, TX 75424

Barton
$245,990
- 3 bd
- 2 ba
- 1,334 sqft
1818 Potomac Ln, Blue Ridge, TX 75424
- Home at address 1807 Teton River Dr, Blue Ridge, TX 75424

Caroline
$245,990
- 3 bd
- 2 ba
- 1,334 sqft
1807 Teton River Dr, Blue Ridge, TX 75424
- Home at address 1810 Potomac Ln, Blue Ridge, TX 75424

Caprock
$255,990
- 3 bd
- 2 ba
- 1,500 sqft
1810 Potomac Ln, Blue Ridge, TX 75424
- Home at address 1820 Potomac Ln, Blue Ridge, TX 75424

Davis
$257,990
- 3 bd
- 2.5 ba
- 1,532 sqft
1820 Potomac Ln, Blue Ridge, TX 75424
Floor plans in Creekside Ranch
About the builder - D.R. Horton

- 1,154communities on Jome
- 10,404homes on Jome
Neighborhood
Home address
- City:
- Blue Ridge
- County:
- Collin
- Zip Code:
- 75424
Schools in Blue Ridge Independent School District
- Grades M-MPublicjohn r roach12.8 mi4700 community avena
GreatSchools’ Summary Rating calculation is based on 4 of the school’s themed ratings, including test scores, student/academic progress, college readiness, and equity. This information should only be used as a reference. Jome is not affiliated with GreatSchools and does not endorse or guarantee this information. Please reach out to schools directly to verify all information and enrollment eligibility. Data provided by GreatSchools.org © 2025
Places of interest
Getting around
Air quality

Considering this home?
Our expert will guide your tour, in-person or virtual
Need more information?
Text or call (888) 545-5198
Financials
Estimated monthly payment
Let us help you find your dream home
How many bedrooms are you looking for?
Similar homes nearby
Recently added communities in this area
Nearby communities in Blue Ridge
New homes in nearby cities
More New Homes in Blue Ridge, TX
D.R. Horton, AMERICA'S Builder, MLS 21183600
IDX information is provided exclusively for personal, non-commercial use, and may not be used for any purpose other than to identify prospective properties consumers may be interested in purchasing. You may not reproduce or redistribute this data, it is for viewing purposes only. This data is deemed reliable, but is not guaranteed accurate by the MLS or NTREIS.
Read moreLast checked Apr 15, 4:00 pm
- Jome
- New homes search
- Texas
- Dallas-Fort Worth Area
- Collin County
- Blue Ridge
- Creekside Ranch
- 1808 Potomac Ln, Blue Ridge, TX 75424


























