








Book your tour. Save an average of $18,473. We'll handle the rest.
We collect exclusive builder offers, book your tours, and support you from start to housewarming.
- Confirmed tours
- Get matched & compare top deals
- Expert help, no pressure
- No added fees
Estimated value based on Jome data, T&C apply









- 4 bd
- 3 ba
- 3,700 sqft
11 Jolene Ct, Van Alstyne, TX 75495
Why tour with Jome?
- No pressure toursTour at your own pace with no sales pressure
- Expert guidanceGet insights from our home buying experts
- Exclusive accessSee homes and deals not available elsewhere
Jome is featured in
- Single-Family
- Under construction
- $304.05/sqft
- 1.00-acre lot
Home description
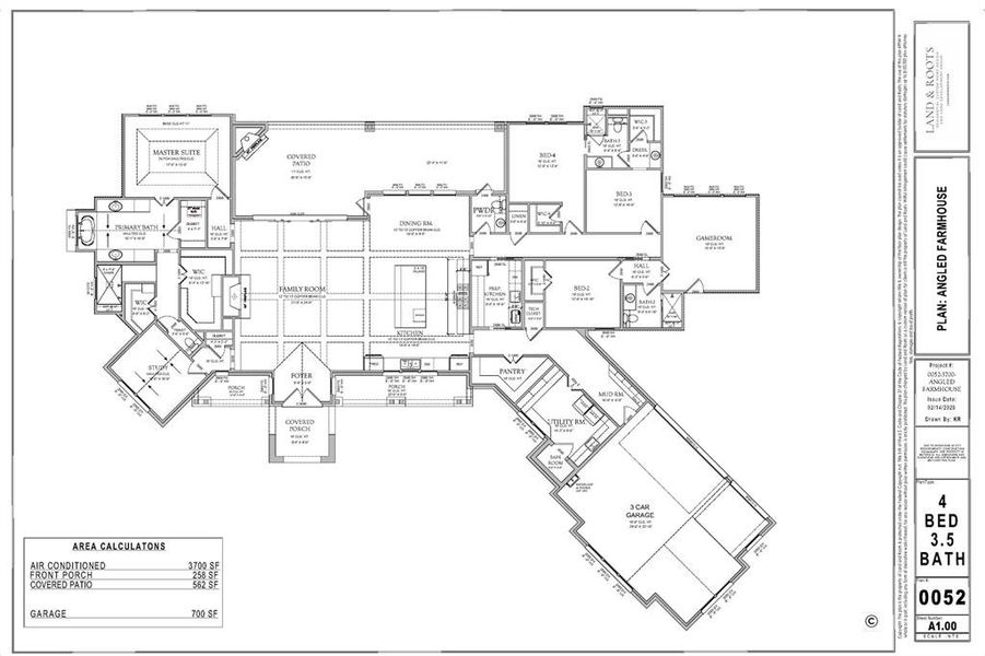
Our Model in Gunter is open this weekend and week if your brave enough to come out, call for times and appointment. Come build your dream custom home with local custom home builder Scott Post Homes in Van Alstyne! Durning Estates includes 13 luxury acreage homesites available on a single concrete road with two cul-de-sacs. This 3700 SF open floor plan boasts 4 bedrooms, 3.5 baths, a game room, office, and three car garage. The master bath features a vaulted ceiling, separate vanities with direct access to the laundry room from the master closet. As you walk into this home, you’re greeted by a large foyer that leads to the open concept living area with large windows and 13’ ceilings. The high ceilings continue all through the kitchen area which features an oversized island and open area for a dining table. Shown in the floor plan image, there are two examples of changes that can be made to the plan including a second study addition or media space. The second example shows the option for a full separate dining room addition in lieu of Bedroom 2. All elevations and floor plans are totally custom to fit your family's needs! We will have high speed internet in our new development with fiber optics to every lot. The utilities are finishing in February and concrete roads being poured in March.
Located 3 minutes off of FM 121 and a quick 8 minute from Highway 75. No HOA, deed restrictions and architectural approval committee in place for quality of homes. One large animal allowed per one acre lot. Six chickens allowed per lot. Scott Post Homes has a model home located at 674 Pike Rd in Gunter, TX. Give us a call and we can get you in to see the model at any time! Happy Snow Day, one of our standard options include a 50 inch wood burning fireplace for cold snow days. Our Model in Gunter is open this weekend and week if your brave enough to come out, call for times and appointment. SPECIAL LOW INTEREST RATE JUST LOWERED to 5.5% on our OTC loan program for our builds!
Keith W Smith, MLS 21181893
Information last verified by Jome: Today at 1:47 AM (April 15, 2026)
Book your tour. Save an average of $18,473. We'll handle the rest.
We collect exclusive builder offers, book your tours, and support you from start to housewarming.
- Confirmed tours
- Get matched & compare top deals
- Expert help, no pressure
- No added fees
Estimated value based on Jome data, T&C apply
Home details
- Property status:
- Under construction
- Lot size (acres):
- 1.00
- Size:
- 3,700 sqft
- Stories:
- 1
- Beds:
- 4
- Baths:
- 3
- Garage spaces:
- 3
Construction details
- Year Built:
- 2026
- Roof:
- Asphalt Roofing
Home features & finishes
- Construction Materials:
- BrickRockStone
- Cooling:
- Central Air
- Flooring:
- Ceramic FlooringVinyl FlooringCarpet FlooringTile Flooring
- Foundation Details:
- Slab
- Garage/Parking:
- GarageSide Entry Garage/ParkingMulti-Door GarageAttached Garage
- Home amenities:
- Home Accessibility Features
- Interior Features:
- Walk-In ClosetPantry
- Kitchen:
- DishwasherMicrowave OvenOvenDisposalElectric CooktopGas CooktopGranite countertopKitchen IslandDouble Oven
- Lighting:
- Decorative/Designer Lighting
- Property amenities:
- BackyardFireplace
- Rooms:
- Primary Bedroom On MainKitchenOpen Concept FloorplanPrimary Bedroom Downstairs

Get a consultation with our New Homes Expert
- See how your home builds wealth
- Plan your home-buying roadmap
- Discover hidden gems
Utility information
- Heating:
- Electric Heating, Central Heating
- Utilities:
- Electricity Available, Cable Available, Aerobic Septic System, High Speed Internet Access
Neighborhood
Home address
- City:
- Van Alstyne
- County:
- Grayson
- Zip Code:
- 75495
Schools in Van Alstyne Independent School District
- Grades M-MPublicvan alstyne middle4.0 mi1314 n wacona
GreatSchools’ Summary Rating calculation is based on 4 of the school’s themed ratings, including test scores, student/academic progress, college readiness, and equity. This information should only be used as a reference. Jome is not affiliated with GreatSchools and does not endorse or guarantee this information. Please reach out to schools directly to verify all information and enrollment eligibility. Data provided by GreatSchools.org © 2025
Places of interest
Getting around
Natural hazards risk
Provided by FEMA

Considering this home?
Our expert will guide your tour, in-person or virtual
Need more information?
Text or call (888) 545-5198
Financials
Estimated monthly payment
Let us help you find your dream home
How many bedrooms are you looking for?
Similar homes nearby
Recently added communities in this area
Nearby communities in Van Alstyne
New homes in nearby cities
More New Homes in Van Alstyne, TX
Keith W Smith, MLS 21181893
IDX information is provided exclusively for personal, non-commercial use, and may not be used for any purpose other than to identify prospective properties consumers may be interested in purchasing. You may not reproduce or redistribute this data, it is for viewing purposes only. This data is deemed reliable, but is not guaranteed accurate by the MLS or NTREIS.
Read moreLast checked Apr 15, 10:00 am
- Jome
- New homes search
- Texas
- Dallas-Fort Worth Area
- Grayson County
- Van Alstyne
- 11 Jolene Ct, Van Alstyne, TX 75495
























