



- 4 bd
- 3 ba
- 2,235 sqft
1208 Beltway Ln, Granbury, TX 76048
- Single-Family
- $146.17/sqft
- $500/annual HOA
- 120 days on Jome
New Homes for Sale Near 1208 Beltway Ln, Granbury, TX 76048
About this Home
About this home
1208 Beltway Lane, Granbury, Texas, is a new home built by D.R. Horton in the Bella Vista] community.
Estimated completion: Spring 2026.
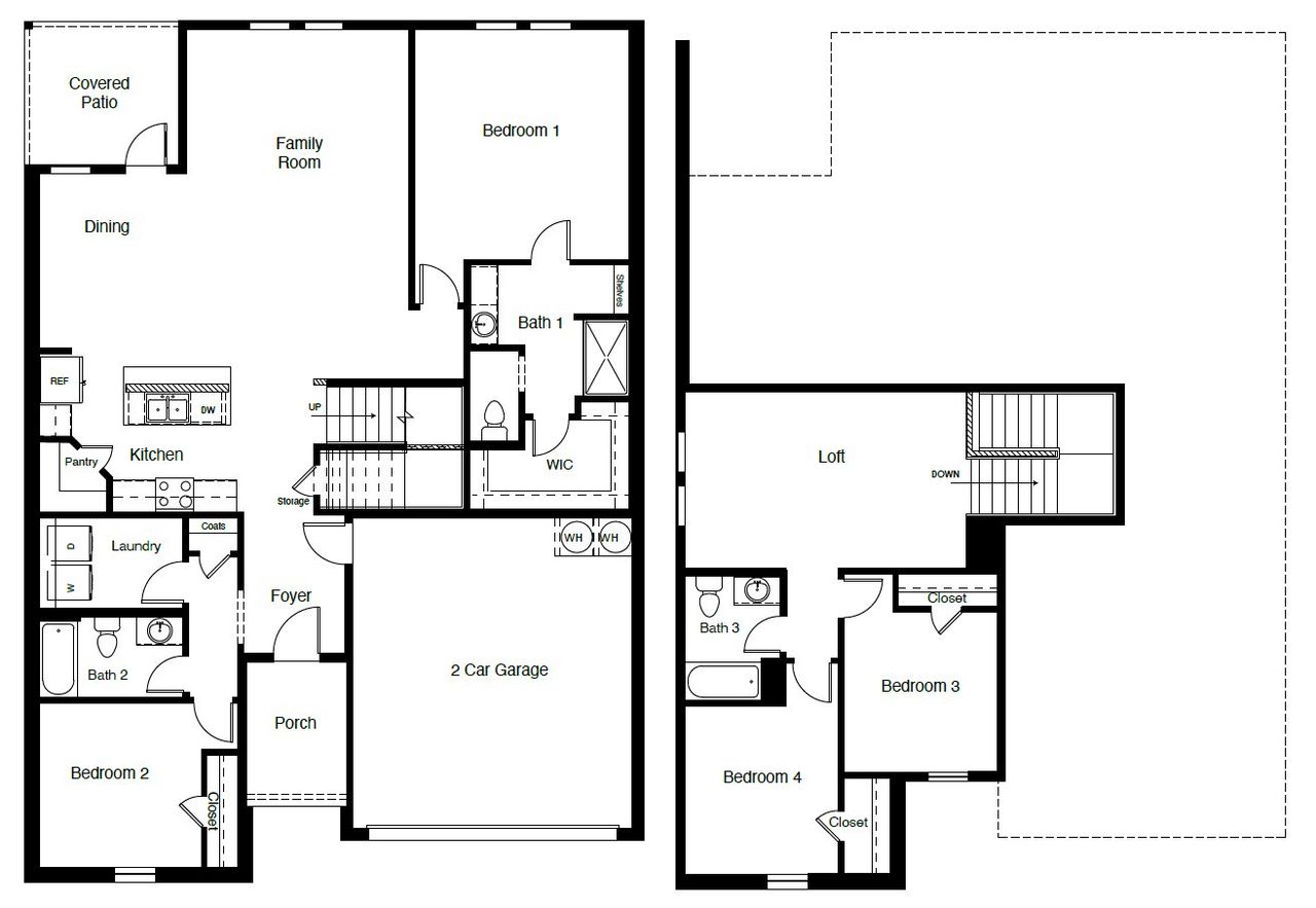
The Midland is a spacious and thoughtfully designed two-story home offering approximately 2,235 sq. ft. of living space with 4 bedrooms, 3 bathrooms, a loft, and a 2-car garage. A welcoming front porch opens into a defined foyer that leads into an open-concept main living area where the kitchen, dining space, and family room flow together seamlessly ideal for both everyday living and entertaining. The kitchen features stainless steel appliances, generous counter space, a centrally located island overlooking the family room, and a walk-in pantry for added storage. The adjacent dining area connects easily to the expansive family room, creating a bright and comfortable central gathering space. The private primary suite is conveniently located on the first floor and includes a spacious bedroom, a walk-in closet, and a full ensuite bath. A secondary bedroom and full bathroom on the main level provide flexible space for guests or a home office. Upstairs, additional bedrooms are thoughtfully arranged around a large loft that offers versatile space for a game room, media area, or second living room. A dedicated laundry room, hallway storage, and direct access to the two-car garage adds to everyday convenience. A covered rear patio completes the design, extending your living space outdoors and providing a relaxing place to unwind. With its multi-level layout, generous living areas, and flexible bonus space, the Midland delivers comfort, functionality, and room to grow a wide range of lifestyles.
May also be listed on the D.R. Horton website
Information last verified by Jome: Sunday at 5:31 AM (February 1, 2026)
Home details
- Property status:
- Sold
- Size:
- 2,235 sqft
- Stories:
- 2
- Beds:
- 4
- Baths:
- 3
- Garage spaces:
- 2
Construction details
- Builder Name:
- D.R. Horton
Home features & finishes
- Garage/Parking:
- Garage

Community details
Bella Vista
by D.R. Horton, Granbury, TX
- 10 homes
- 9 plans
- 1,317 - 2,548 sqft
View Bella Vista details
More homes in Bella Vista
- Home at address 1132 Belhaven Ln, Granbury, TX 76048

$303,685
Under construction- 4 bd
- 2 ba
- 1,861 sqft
1132 Belhaven Ln, Granbury, TX 76048
- Home at address 1124 Belhaven St, Granbury, TX 76048

$326,685
Under construction- 4 bd
- 2 ba
- 2,231 sqft
1124 Belhaven St, Granbury, TX 76048
- Home at address 1149 Belhaven St, Granbury, TX 76048

$328,685
Under construction- 4 bd
- 2 ba
- 2,231 sqft
1149 Belhaven St, Granbury, TX 76048
- Home at address 1144 Belhaven St, Granbury, TX 76048

$355,685
Under construction- 4 bd
- 3 ba
- 2,524 sqft
1144 Belhaven St, Granbury, TX 76048
Floor plans in Bella Vista
About the builder - D.R. Horton

- 1,143communities on Jome
- 11,432homes on Jome
Neighborhood
Home address
Schools in Granbury Independent School District
GreatSchools’ Summary Rating calculation is based on 4 of the school’s themed ratings, including test scores, student/academic progress, college readiness, and equity. This information should only be used as a reference. Jome is not affiliated with GreatSchools and does not endorse or guarantee this information. Please reach out to schools directly to verify all information and enrollment eligibility. Data provided by GreatSchools.org © 2025
Places of interest
Getting around
Air quality
Financials
Nearby communities in Granbury
Homes in Granbury by D.R. Horton
Recently added communities in this area
Other Builders in Granbury, TX
Nearby sold homes
New homes in nearby cities
More New Homes in Granbury, TX
- Jome
- New homes search
- Texas
- Dallas-Fort Worth Area
- Hood County
- Granbury
- Bella Vista
- 1208 Beltway Ln, Granbury, TX 76048






































































