




- 5 bd
- 3 ba
- 2,621 sqft
904 Dewy Lake Pl, Lavon, TX 75166
- Single-Family
- $192.15/sqft
- $1,860/annual HOA
- North facing
New Homes for Sale Near 904 Dewy Lake Pl, Lavon, TX 75166
About this Home
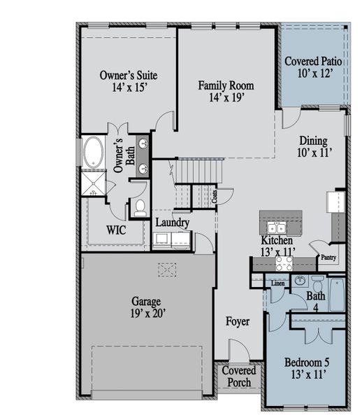
This beautiful two-story home offers a thoughtful layout designed for both comfort and functionality. The first floor features a welcoming foyer that leads to a spacious family room, dining area, and modern kitchen with a pantry. The primary suite is conveniently located on the main level and includes a walk-in closet and private bath, while an additional bedroom with its own bath is also located downstairs—perfect for guests or extended family. Upstairs, a loft provides extra living space along with three more bedrooms, each with generous closet space, and an additional bath. A covered patio extends the living space outdoors, and the home is completed with a two-car garage and a practical laundry room, making it ideal for everyday living and entertaining.
May also be listed on the UnionMain Homes website
Information last verified by Jome: Tuesday at 12:26 PM (March 17, 2026)
Home details
- Property status:
- Sold
- Size:
- 2,621 sqft
- Stories:
- 2
- Beds:
- 5
- Baths:
- 3
- Garage spaces:
- 2
- Facing direction:
- North
Construction details
- Builder Name:
- UnionMain Homes
- Completion Date:
- December, 2025
Home features & finishes
- Garage/Parking:
- GarageAttached Garage
- Interior Features:
- Walk-In ClosetFoyerPantryLoft
- Kitchen:
- Kitchen Island
- Laundry facilities:
- Utility/Laundry Room
- Property amenities:
- PatioPorch
- Rooms:
- Primary Bedroom On MainKitchenOffice/StudyDining RoomFamily RoomOpen Concept FloorplanPrimary Bedroom Downstairs

Community details
Elevon at Elevon
by UnionMain Homes, Lavon, TX
- 4 homes
- 16 plans
- 1,511 - 3,276 sqft
View Elevon details
More homes in Elevon
- Home at address 269 Hope Orchards Dr, Lavon, TX 75166
Savings$455,000
Move-in ready- 5 bd
- 3 ba
- 2,932 sqft
269 Hope Orchards Dr, Lavon, TX 75166
Floor plans in Elevon
About the builder - UnionMain Homes
Neighborhood
Home address
Schools in Community Independent School District
- Grades PK-05Publicmary lou dodson elementary1.7 mi300 e lavon trail pkwyna
- Grades M-MPubliccommunity trails middle1.8 mi900 rosewood drna
GreatSchools’ Summary Rating calculation is based on 4 of the school’s themed ratings, including test scores, student/academic progress, college readiness, and equity. This information should only be used as a reference. Jome is not affiliated with GreatSchools and does not endorse or guarantee this information. Please reach out to schools directly to verify all information and enrollment eligibility. Data provided by GreatSchools.org © 2025
Places of interest
Getting around
Air quality
Financials
Nearby communities in Lavon
Homes in Lavon by UnionMain Homes
Recently added communities in this area
Other Builders in Lavon, TX
Nearby sold homes
New homes in nearby cities
More New Homes in Lavon, TX
- Jome
- New homes search
- Texas
- Dallas-Fort Worth Area
- Collin County
- Lavon
- Elevon
- 904 Dewy Lake Pl, Lavon, TX 75166







































































