



- 4 bd
- 3.5 ba
- 2,821 sqft
718 Oakridge Trl, Unit (2824, 2977), Richardson, TX 75080
- Single-Family
- $244.59/sqft
- $1,800/annual HOA
- 52 days on Jome
New Homes for Sale Near 718 Oakridge Trl, Unit (2824, 2977), Richardson, TX 75080
About this Home
About this home
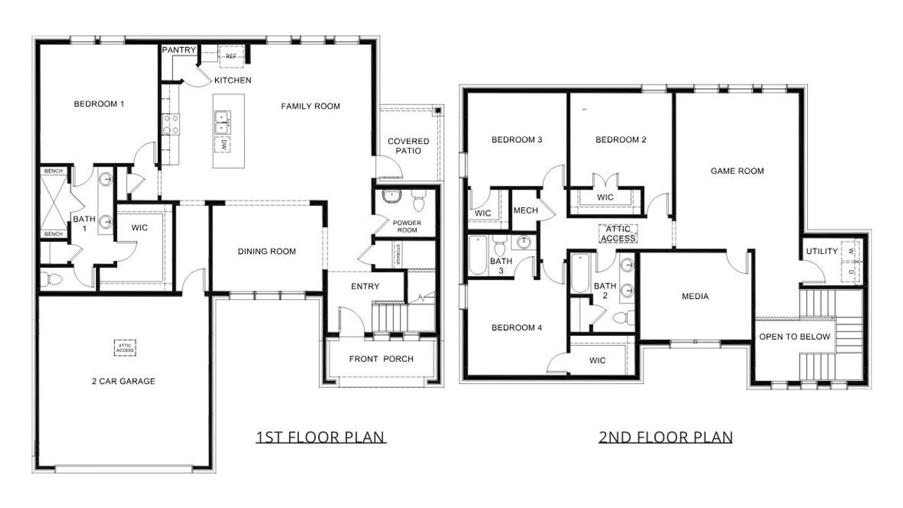
The Roxbury at Greenwood Square in Richardson, Texas, is where scale and style meet, offering 2,821 square feet of intentionally designed new home living space. With 4 bedrooms, 3.5 bathrooms, and a flexible two-story layout, this home balances generous proportions with refined detail.
The Roxbury’s exterior pairs brick and stone with warm wood-tone siding, creating a timeless façade that fits seamlessly into the intimate, 31-homesite community.
Inside, an expansive open-concept layout connects the kitchen, dining, and living spaces—perfect for hosting or simply enjoying the flow of everyday life. The kitchen features 42” flat panel cabinetry with hidden hinges, granite or quartz countertops, a premium stainless steel appliance suite, and a DUPURE® water purification system at the sink.
To personalize your space, The Roxbury offers nine professionally curated interior design packages, each including a rich blend of texture, tone, and practicality. Elevated design features include 4” x 12” or 4”x16” tile backsplashes in a range of hues, vertically stacked 10” x 14” shower wall tiles, 12” x 12” patterned powder bath tiles, quartz or granite surfaces, and wood-look flooring that anchors the main level with warmth and style.
Upstairs, the private suite features an en suite bath with dual vanities and a walk-in closet, while three additional bedrooms and a spacious loft provide room for family, guests, or work-from-home needs. Details like wrought iron stair rails and integrated smart home technology round out the modern conveniences.
The Roxbury at Greenwood Square is the perfect harmony of luxury, space, and thoughtful design.
May also be listed on the D.R. Horton website
Information last verified by Jome: Tuesday at 2:38 AM (December 9, 2025)
Home details
- Property status:
- Sold
- Neighborhood:
- Northrich
- Size:
- 2,821 sqft
- Stories:
- 2
- Beds:
- 4
- Baths:
- 3.5
- Garage spaces:
- 2
Construction details
- Builder Name:
- D.R. Horton
Home features & finishes
- Garage/Parking:
- GarageAttached Garage
- Interior Features:
- Walk-In ClosetPantry
- Kitchen:
- Stainless Steel AppliancesKitchen CountertopKitchen Island
- Laundry facilities:
- Utility/Laundry Room
- Property amenities:
- PatioSmart Home SystemPorch
- Rooms:
- Primary Bedroom On MainKitchenPowder RoomGame RoomMedia RoomDining RoomFamily RoomPrimary Bedroom Downstairs

Community details
Greenwood Square
by D.R. Horton, Richardson, TX
- 5 homes
- 3 plans
- 2,482 - 2,983 sqft
View Greenwood Square details
More homes in Greenwood Square
Floor plans in Greenwood Square
About the builder - D.R. Horton
Neighborhood
Home address
- City:
- Richardson
- County:
- Dallas
- Zip Code:
- 75080
Schools in Richardson Independent School District
GreatSchools’ Summary Rating calculation is based on 4 of the school’s themed ratings, including test scores, student/academic progress, college readiness, and equity. This information should only be used as a reference. Jome is not affiliated with GreatSchools and does not endorse or guarantee this information. Please reach out to schools directly to verify all information and enrollment eligibility. Data provided by GreatSchools.org © 2025
Places of interest
Getting around
1 nearby routes: 1 bus, 0 rail, 0 otherAir quality
Noise level
A Soundscore™ rating is a number between 50 (very loud) and 100 (very quiet) that tells you how loud a location is due to environmental noise.
Natural hazards risk
Climate hazards can impact homes and communities, with risks varying by location. These scores reflect the potential impact of natural disasters and climate-related risks on Dallas County
Provided by FEMA
Financials
Nearby communities in Richardson
Homes in Richardson Neighborhoods
Homes in Richardson by D.R. Horton
Recently added communities in this area
Other Builders in Richardson, TX
Nearby sold homes
New homes in nearby cities
More New Homes in Richardson, TX
- Jome
- New homes search
- Texas
- Dallas-Fort Worth Area
- Dallas County
- Richardson
- Greenwood Square
- 718 Oakridge Trl, Unit (2824, 2977), Richardson, TX 75080






























































