











Book your tour. Save an average of $18,473. We'll handle the rest.
- Confirmed tours
- Get matched & compare top deals
- Expert help, no pressure
- No added fees
Estimated value based on Jome data, T&C apply
- 4 bd
- 4.5 ba
- 4,431 sqft
14528 Capridge Rd, Fort Worth, TX 76008
Why tour with Jome?
- No pressure toursTour at your own pace with no sales pressure
- Expert guidanceGet insights from our home buying experts
- Exclusive accessSee homes and deals not available elsewhere
Jome is featured in
- Single-Family
- Ready by December 2025
- $225.68/sqft
- $242/monthly HOA
Home description
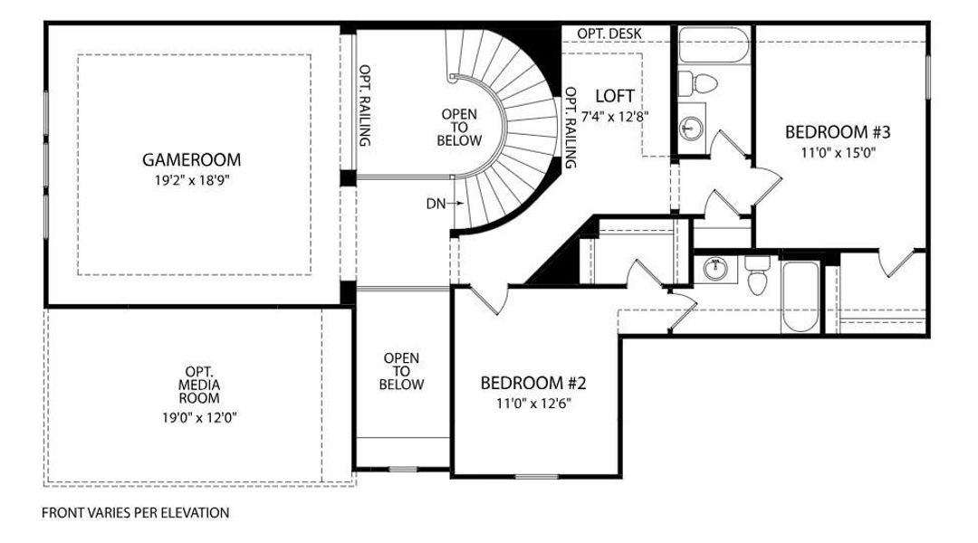
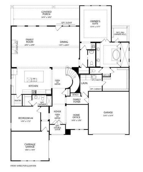
MLS# 21046123 - Built by Drees Custom Homes - Jan 2026 completion! ~ You will feel at home the moment you step into the two-story foyer of this home and proceed to the main living area featuring family room with fireplace, a gourmet kitchen and dining room. Sliding glass door from the dining room offers easy access to the spacious covered outdoor living area with fireplace. The 3D tour in this listing is for illustration purposes only. Options and finishes may differ in the actual home for sale. Any furnishings shown are not a part of the listing unless otherwise stated.
HomesUSA.com, MLS 21046123
May also be listed on the Drees Custom Homes website
Information last verified by Jome: Today at 10:00 AM (December 7, 2025)
Home highlights
Book your tour. Save an average of $18,473. We'll handle the rest.
We collect exclusive builder offers, book your tours, and support you from start to housewarming.
- Confirmed tours
- Get matched & compare top deals
- Expert help, no pressure
- No added fees
Estimated value based on Jome data, T&C apply
Home details
- Property status:
- Under construction
- Lot size (acres):
- 0.24
- Size:
- 4,431 sqft
- Stories:
- 2
- Beds:
- 4
- Baths:
- 4
- Half baths:
- 1
- Garage spaces:
- 3
Construction details
- Builder Name:
- Drees Custom Homes
- Completion Date:
- December, 2025
- Year Built:
- 2025
- Roof:
- Shingle Roofing
Home features & finishes
- Appliances:
- Sprinkler System
- Construction Materials:
- Brick
- Cooling:
- Central Air
- Flooring:
- Ceramic FlooringWood FlooringCarpet FlooringTile Flooring
- Foundation Details:
- Slab
- Garage/Parking:
- GarageFront Entry Garage/ParkingAttached Garage
- Home amenities:
- Green Construction
- Interior Features:
- Ceiling-VaultedWalk-In ClosetFoyerPantryStaircases
- Kitchen:
- DishwasherDisposalFurnished Kitchen
- Laundry facilities:
- DryerWasherUtility/Laundry Room
- Lighting:
- Exterior LightingLighting
- Property amenities:
- SidewalkTrees on propertyBackyardLandscapingCovered Outdoor LivingPatioFireplaceYardPorch
- Rooms:
- Primary Bedroom On MainKitchenPowder RoomOffice/StudyGuest RoomDining RoomFamily RoomOpen Concept Floorplan
- Security system:
- Security System
Utility information
- Heating:
- Central Heating
- Utilities:
- Underground Utilities, HVAC, City Water System, Individual Water Meter, Individual Gas Meter, High Speed Internet Access, Cable TV, Curbs

Community details
Walsh Ranch 70' at Walsh
by Drees Custom Homes, Aledo, TX
- 5 homes
- 9 plans
- 2,680 - 5,064 sqft
View Walsh Ranch 70' details
Community amenities
- Playground
- Fitness Center/Exercise Area
- Club House
- Tennis Courts
- Park Nearby
More homes in Walsh Ranch 70'
Floor plans in Walsh Ranch 70'
About the builder - Drees Custom Homes
Neighborhood
Home address
- City:
- Fort Worth
- County:
- Tarrant
- Zip Code:
- 76008
Schools in Aledo Independent School District
- Grades M-MPublicmcanally middle3.1 mi1008 bailey ranch rdna
GreatSchools’ Summary Rating calculation is based on 4 of the school’s themed ratings, including test scores, student/academic progress, college readiness, and equity. This information should only be used as a reference. Jome is not affiliated with GreatSchools and does not endorse or guarantee this information. Please reach out to schools directly to verify all information and enrollment eligibility. Data provided by GreatSchools.org © 2025
Places of interest
Getting around
Air quality
Natural hazards risk
Climate hazards can impact homes and communities, with risks varying by location. These scores reflect the potential impact of natural disasters and climate-related risks on Tarrant County
Provided by FEMA

Considering this home?
Our expert will guide your tour, in-person or virtual
Need more information?
Text or call (888) 486-2818
Financials
Estimated monthly payment
Similar homes nearby
Recently added communities in this area
Nearby communities in Fort Worth
New homes in nearby cities
More New Homes in Fort Worth, TX
HomesUSA.com, MLS 21046123
IDX information is provided exclusively for personal, non-commercial use, and may not be used for any purpose other than to identify prospective properties consumers may be interested in purchasing. You may not reproduce or redistribute this data, it is for viewing purposes only. This data is deemed reliable, but is not guaranteed accurate by the MLS or NTREIS.
Read moreLast checked Dec 7, 10:00 am
- Home
- New homes
- Texas
- Dallas-Fort Worth Area
- Tarrant County
- Fort Worth
- Walsh Ranch 70'
- 14528 Capridge Rd, Fort Worth, TX 76008





































