





Book your tour. Save an average of $18,473. We'll handle the rest.
- Confirmed tours
- Get matched & compare top deals
- Expert help, no pressure
- No added fees
Estimated value based on Jome data, T&C apply
- 4 bd
- 3 ba
- 2,429 sqft
2601 Hardwood Dr, Celina, TX 75009
Why tour with Jome?
- No pressure toursTour at your own pace with no sales pressure
- Expert guidanceGet insights from our home buying experts
- Exclusive accessSee homes and deals not available elsewhere
Jome is featured in
- Single-Family
- Ready by December 2025
- $222.31/sqft
- $600/semi-annual HOA
Home description
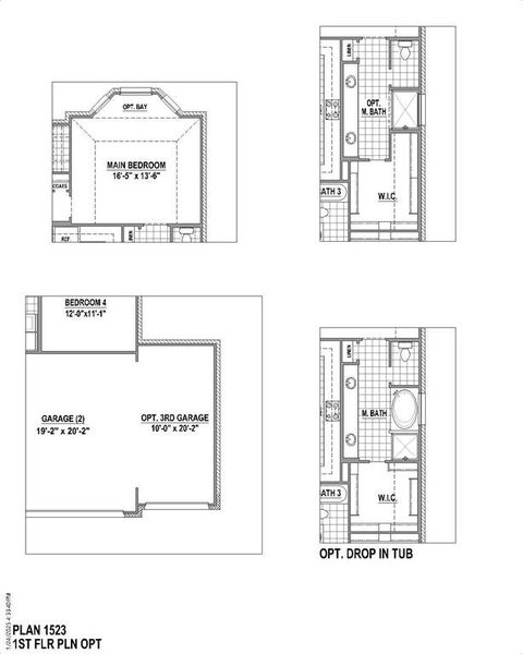
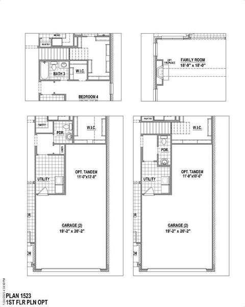
Every detail of this single-story home has been thoughtfully designed to create a space that truly “lives well.” The layout ensures maximum privacy, with two bedrooms at the front of the home sharing a hall bath, a secluded guest suite with its own en suite bath on a private wing, and a spacious main bedroom retreat tucked at the back. The main bath features a stunning 12-foot quartz vanity with dual sinks, blending beauty with functionality. In the kitchen, storage abounds with extensive cabinetry and a generous walk-in pantry. The 14-foot ceilings in the family room are dramatic and inviting, while the dining room is elevated by a built-in butler’s pantry with glass-front doors—perfect for showcasing your prized possessions. Outside, the exterior makes a striking impression with a combination with a light brick exterior. Inside, the professional design team has picked the most up to date selections for the wood flooring, designer tiles and beautiful quartz countertops. This home is more than a place to live—it’s a thoughtfully crafted retreat designed for comfort, style, and everyday enjoyment.
American Legend Homes, MLS 21052639
May also be listed on the American Legend Homes website
Information last verified by Jome: Today at 1:23 AM (December 5, 2025)
Home highlights
Book your tour. Save an average of $18,473. We'll handle the rest.
We collect exclusive builder offers, book your tours, and support you from start to housewarming.
- Confirmed tours
- Get matched & compare top deals
- Expert help, no pressure
- No added fees
Estimated value based on Jome data, T&C apply
Home details
- Property status:
- Under construction
- Lot size (acres):
- 0.15
- Lot width (feet):
- 55
- Size:
- 2,429 sqft
- Stories:
- 1
- Beds:
- 4
- Baths:
- 3
- Garage spaces:
- 2
- Fence:
- Wood Fence
Construction details
- Builder Name:
- American Legend Homes
- Completion Date:
- December, 2025
- Year Built:
- 2025
- Roof:
- Composition Roofing
Home features & finishes
- Appliances:
- Exhaust FanExhaust Fan VentedSprinkler System
- Construction Materials:
- Brick
- Cooling:
- Ceiling Fan(s)Central Air
- Flooring:
- Ceramic FlooringCarpet FlooringTile FlooringHardwood Flooring
- Foundation Details:
- Slab
- Garage/Parking:
- Door OpenerGarageFront Entry Garage/ParkingMulti-Door GarageAttached Garage
- Home amenities:
- Green Construction
- Interior Features:
- Ceiling-VaultedWalk-In ClosetFoyerPantryStorageFlat Screen WiringDouble Vanity
- Kitchen:
- DishwasherMicrowave OvenOvenDisposalGas CooktopKitchen IslandDouble OvenElectric Oven
- Laundry facilities:
- Utility/Laundry Room
- Lighting:
- LightingDecorative/Designer Lighting
- Property amenities:
- LandscapingOutdoor LivingPatioPorch
- Rooms:
- Primary Bedroom On MainKitchenMedia RoomOffice/StudyMudroomDining RoomFamily RoomOpen Concept FloorplanPrimary Bedroom Downstairs
- Security system:
- Smoke DetectorCarbon Monoxide Detector
Utility information
- Heating:
- Zoned Heating, Water Heater, Central Heating, Tankless water heater
- Utilities:
- HVAC, City Water System, Cable Available, High Speed Internet Access, Curbs

Community details
Ten Mile Creek 55s at Ten Mile Creek
by American Legend Homes, Celina, TX
- 6 homes
- 13 plans
- 2,001 - 3,775 sqft
View Ten Mile Creek 55s details
Community amenities
- Playground
- Club House
- Community Pool
- Park Nearby
- Greenbelt View
- Walking, Jogging, Hike Or Bike Trails
More homes in Ten Mile Creek 55s
Floor plans in Ten Mile Creek 55s
About the builder - American Legend Homes
Neighborhood
Home address
Schools in Celina Independent School District
GreatSchools’ Summary Rating calculation is based on 4 of the school’s themed ratings, including test scores, student/academic progress, college readiness, and equity. This information should only be used as a reference. Jome is not affiliated with GreatSchools and does not endorse or guarantee this information. Please reach out to schools directly to verify all information and enrollment eligibility. Data provided by GreatSchools.org © 2025
Places of interest
Getting around
Air quality
Natural hazards risk
Climate hazards can impact homes and communities, with risks varying by location. These scores reflect the potential impact of natural disasters and climate-related risks on Collin County
Provided by FEMA

Considering this home?
Our expert will guide your tour, in-person or virtual
Need more information?
Text or call (888) 486-2818
Financials
Estimated monthly payment
Similar homes nearby
Recently added communities in this area
Nearby communities in Celina
New homes in nearby cities
More New Homes in Celina, TX
American Legend Homes, MLS 21052639
IDX information is provided exclusively for personal, non-commercial use, and may not be used for any purpose other than to identify prospective properties consumers may be interested in purchasing. You may not reproduce or redistribute this data, it is for viewing purposes only. This data is deemed reliable, but is not guaranteed accurate by the MLS or NTREIS.
Read moreLast checked Dec 5, 4:00 am
- Home
- New homes
- Texas
- Dallas-Fort Worth Area
- Collin County
- Celina
- Ten Mile Creek 55s
- 2601 Hardwood Dr, Celina, TX 75009





































