














Book your tour. Save an average of $18,473. We'll handle the rest.
- Confirmed tours
- Get matched & compare top deals
- Expert help, no pressure
- No added fees
Estimated value based on Jome data, T&C apply




















- 3 bd
- 3.5 ba
- 2,163 sqft
8119 Challenger Ln, Frisco, TX 75034
Why tour with Jome?
- No pressure toursTour at your own pace with no sales pressure
- Expert guidanceGet insights from our home buying experts
- Exclusive accessSee homes and deals not available elsewhere
Jome is featured in
- Townhouse
- Quick move-in
- $291.98/sqft
- $692/quarterly HOA
Home description
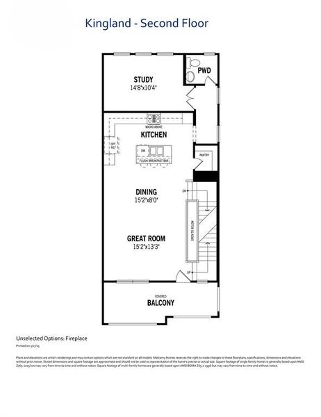
Mattamy Homes presents The Kingland Floor Plan. Discover the Kingland, a thoughtfully designed 3-story end-unit townhome that blends comfort and efficiency for flexible, low-maintenance living. **First Floor: ** Ideal for guests or extended family, the main level boasts a private bedroom suite with a full bathroom and walk-in closet, ensuring comfort and privacy. A convenient mudroom, extra storage space, and a two-car garage add to the home's practicality. **Second Floor: ** The heart of the home unfolds on the open-concept second floor, designed for effortless living and entertaining. A bright, open kitchen seamlessly connects to the dining area and a spacious Great Room, featuring a cozy electric fireplace and a covered balcony perfect for relaxing evenings. A dedicated study offers a private workspace, while a walk-in pantry provides ample storage. The Flush Breakfast Bar offers extra seating for casual meals or gatherings. **Third Floor: ** Ascend to the third floor and discover a luxurious owner's suite, a private retreat featuring a personal balcony, dual vanities, and a generous walk-in closet. Another en-suite bedroom and a conveniently located laundry room complete this level, providing comfort and convenience for all. This modern townhome maximizes space with intelligent use of its three levels, including two balconies and a private study. Experience the Kingland lifestyle, where comfort meets efficiency in a truly exceptional setting. **Schedule your private tour today and discover the difference between Kingland! ** THIS HOME IS MOVE IN READY!
Pinnacle Realty Advisors, MLS 20990666
May also be listed on the Mattamy Homes website
Information last verified by Jome: Today at 1:17 AM (January 17, 2026)
Home highlights
Peaceful Dallas lake with trails, birdwatching, and historic neighborhoods just minutes from the city center.
Book your tour. Save an average of $18,473. We'll handle the rest.
We collect exclusive builder offers, book your tours, and support you from start to housewarming.
- Confirmed tours
- Get matched & compare top deals
- Expert help, no pressure
- No added fees
Estimated value based on Jome data, T&C apply
Home details
- Property status:
- Move-in ready
- Lot size (acres):
- 0.04
- Size:
- 2,163 sqft
- Beds:
- 3
- Baths:
- 3
- Half baths:
- 1
- Garage spaces:
- 2
- Fence:
- Wood Fence
Construction details
- Builder Name:
- Mattamy Homes
- Completion Date:
- August, 2025
- Year Built:
- 2025
- Roof:
- Composition Roofing
Home features & finishes
- Appliances:
- Sprinkler System
- Construction Materials:
- Brick
- Cooling:
- Central Air
- Flooring:
- Ceramic FlooringVinyl FlooringCarpet FlooringTile Flooring
- Foundation Details:
- Slab
- Garage/Parking:
- Door OpenerGarageRear Entry Garage/ParkingAttached Garage
- Interior Features:
- Walk-In ClosetPantryFlat Screen Wiring
- Kitchen:
- DishwasherMicrowave OvenDisposalGas CooktopKitchen IslandKitchen Range
- Laundry facilities:
- DryerWasherStackable Washer/Dryer
- Lighting:
- Decorative/Designer Lighting
- Property amenities:
- SidewalkBalconyPoolLandscapingElectric FireplaceSmart Home System
- Rooms:
- Open Concept Floorplan
- Security system:
- Smoke DetectorCarbon Monoxide Detector

Get a consultation with our New Homes Expert
- See how your home builds wealth
- Plan your home-buying roadmap
- Discover hidden gems
Utility information
- Heating:
- Electric Heating, Water Heater, Central Heating, Tankless water heater
- Utilities:
- Underground Utilities, City Water System, Cable Available, High Speed Internet Access, Cable TV, Curbs

Community details
Wade Settlement Townhomes
by Mattamy Homes, Frisco, TX
- 23 homes
- 4 plans
- 2,163 - 2,669 sqft
View Wade Settlement Townhomes details
Community amenities
- Club House
- Community Pool
- Park Nearby
- Sidewalks Available
More homes in Wade Settlement Townhomes
- Home at address 4121 Humboldt St, Frisco, TX 75034

Imperial
$589,990
- 3 bd
- 3 ba
- 2,323 sqft
4121 Humboldt St, Frisco, TX 75034
- Home at address 8191 Challenger Ln, Frisco, TX 75034

Imperial
$594,410
- 3 bd
- 3 ba
- 2,323 sqft
8191 Challenger Ln, Frisco, TX 75034
- Home at address 8063 Challenger Ln, Frisco, TX 75034

Imperial
$594,980
- 3 bd
- 3 ba
- 2,334 sqft
8063 Challenger Ln, Frisco, TX 75034
- Home at address 8313 Huron Peak Dr, Frisco, TX 75034

Imperial
$594,980
- 3 bd
- 3 ba
- 2,323 sqft
8313 Huron Peak Dr, Frisco, TX 75034
- Home at address 8127 Challenger Ln, Frisco, TX 75034

Imperial
$597,038
- 3 bd
- 3 ba
- 2,323 sqft
8127 Challenger Ln, Frisco, TX 75034
- Home at address 8231 Challenger Ln, Frisco, TX 75034

Imperial
$599,980
- 3 bd
- 3 ba
- 2,334 sqft
8231 Challenger Ln, Frisco, TX 75034
Floor plans in Wade Settlement Townhomes
About the builder - Mattamy Homes

- 113communities on Jome
- 1,189homes on Jome
Neighborhood
Home address
Schools in Frisco Independent School District
- Grades KG-11Privatepathway christian prep academy1.2 mi6160 warren pkwy ste 100na
GreatSchools’ Summary Rating calculation is based on 4 of the school’s themed ratings, including test scores, student/academic progress, college readiness, and equity. This information should only be used as a reference. Jome is not affiliated with GreatSchools and does not endorse or guarantee this information. Please reach out to schools directly to verify all information and enrollment eligibility. Data provided by GreatSchools.org © 2025
Places of interest
Getting around
Air quality
Noise level
A Soundscore™ rating is a number between 50 (very loud) and 100 (very quiet) that tells you how loud a location is due to environmental noise.

Considering this home?
Our expert will guide your tour, in-person or virtual
Need more information?
Text or call (888) 486-2818
Financials
Estimated monthly payment
Let us help you find your dream home
How many bedrooms are you looking for?
Similar homes nearby
Recently added communities in this area
Nearby communities in Frisco
New homes in nearby cities
More New Homes in Frisco, TX
Pinnacle Realty Advisors, MLS 20990666
IDX information is provided exclusively for personal, non-commercial use, and may not be used for any purpose other than to identify prospective properties consumers may be interested in purchasing. You may not reproduce or redistribute this data, it is for viewing purposes only. This data is deemed reliable, but is not guaranteed accurate by the MLS or NTREIS.
Read moreLast checked Jan 17, 10:00 pm
- Jome
- New homes search
- Texas
- Dallas-Fort Worth Area
- Collin County
- Frisco
- Wade Settlement Townhomes
- 8119 Challenger Ln, Frisco, TX 75034





























