




- 4 bd
- 3.5 ba
- 2,888 sqft
4415 College Square Dr, Round Rock, TX 78665
- Single-Family
- $197.36/sqft
- $540/annual HOA
- East facing
New Homes for Sale Near 4415 College Square Dr, Round Rock, TX 78665
About this Home
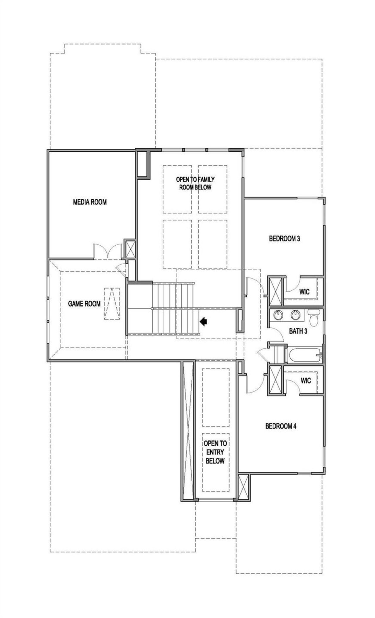
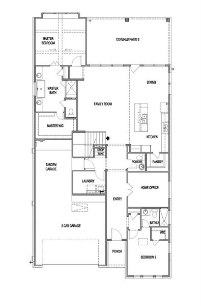
The Brand new Lamar is a winner and has over $80,000 in upgrades included. This two story 2888 SQFT East facing plan offers 4 bedrooms, 3.5 baths, an office plus a Game room. The family room is open to second floor! The primary and a secondary bedroom are located downstairs. The kitchen features built-in appliances, a 36"cooktop, under-cabinet lighting, a spacious island for prepping food or entertaining, and is open to the family room and dining area. The owner's suite features a stunning vaulted ceiling, mud set shower with seat, soaking tub, dual vanities and a sizeable walk-in closet. There's an extended covered patio and the home has Full Sod, Sprinklers and a tankless water heater.
May also be listed on the Scott Felder Homes website
Information last verified by Jome: Wednesday at 6:52 AM (January 7, 2026)
Home details
- Property status:
- Sold
- Lot size (acres):
- 0.15
- Size:
- 2,888 sqft
- Stories:
- 2
- Beds:
- 4
- Baths:
- 3
- Half baths:
- 1
- Garage spaces:
- 3
- Fence:
- Wood Fence, Privacy Fence, Rock/Stone Fence
- Facing direction:
- East
Construction details
- Builder Name:
- Scott Felder Homes
- Completion Date:
- November, 2025
- Year Built:
- 2025
- Roof:
- Composition Roofing
Home features & finishes
- Appliances:
- Exhaust Fan Vented
- Construction Materials:
- CementBrickStone
- Cooling:
- Ceiling Fan(s)Central Air
- Flooring:
- Vinyl FlooringCarpet FlooringTile Flooring
- Foundation Details:
- Slab
- Garage/Parking:
- Door OpenerGarageFront Entry Garage/Parking
- Interior Features:
- Ceiling-HighDouble Vanity
- Kitchen:
- DishwasherMicrowave OvenOvenDisposalStainless Steel AppliancesGas CooktopBuilt-In OvenCook TopKitchen IslandElectric Oven
- Laundry facilities:
- Dryer
- Lighting:
- Lighting
- Property amenities:
- Soaking Tub
- Rooms:
- Primary Bedroom On MainOpen Concept FloorplanPrimary Bedroom Downstairs
Utility information
- Heating:
- Thermostat, Central Heating, Gas Heating
- Utilities:
- Electricity Available, Natural Gas Available, Water Available, High Speed Internet Access

Community details
University Heights
by Scott Felder Homes, Round Rock, TX
- 18 homes
- 33 plans
- 1,563 - 3,251 sqft
View University Heights details
Community amenities
- Playground
- Community Pool
- Cluster Mailbox
- High Speed Internet Access
More homes in University Heights
- Home at address 4329 Contrail Ln, Round Rock, TX 78665

$449,990
Move-in ready- 4 bd
- 3 ba
- 2,066 sqft
4329 Contrail Ln, Round Rock, TX 78665
- Home at address 4737 Pleasant Pl, Round Rock, TX 78665

$469,990
Move-in ready- 4 bd
- 3 ba
- 2,303 sqft
4737 Pleasant Pl, Round Rock, TX 78665
- Home at address 4313 Contrail Ln, Round Rock, TX 78665

$476,990
Move-in ready- 4 bd
- 3.5 ba
- 2,288 sqft
4313 Contrail Ln, Round Rock, TX 78665
- Home at address 4721 College Square Dr, Round Rock, TX 78665

$499,990
Under construction- 4 bd
- 2 ba
- 1,803 sqft
4721 College Square Dr, Round Rock, TX 78665
- Home at address 4334 Bancroft Ln, Round Rock, TX 78665

$506,990
Move-in ready- 4 bd
- 3 ba
- 2,221 sqft
4334 Bancroft Ln, Round Rock, TX 78665
- Home at address 4705 College Square Dr, Round Rock, TX 78665

$509,990
Under construction- 4 bd
- 2 ba
- 1,804 sqft
4705 College Square Dr, Round Rock, TX 78665
Floor plans in University Heights
About the builder - Scott Felder Homes
Neighborhood
Home address
- City:
- Round Rock
- County:
- Williamson
- Zip Code:
- 78665
Schools in Georgetown Independent School District
GreatSchools’ Summary Rating calculation is based on 4 of the school’s themed ratings, including test scores, student/academic progress, college readiness, and equity. This information should only be used as a reference. Jome is not affiliated with GreatSchools and does not endorse or guarantee this information. Please reach out to schools directly to verify all information and enrollment eligibility. Data provided by GreatSchools.org © 2025
Places of interest
Getting around
Air quality
Financials
Nearby communities in Round Rock
Homes in Round Rock by Scott Felder Homes
Recently added communities in this area
Other Builders in Round Rock, TX
Nearby sold homes
New homes in nearby cities
More New Homes in Round Rock, TX
- Jome
- New homes search
- Texas
- Greater Austin Area
- Williamson County
- Round Rock
- University Heights
- 4415 College Square Dr, Round Rock, TX 78665










































































