




Book your tour. Save an average of $18,473. We'll handle the rest.
We collect exclusive builder offers, book your tours, and support you from start to housewarming.
- Confirmed tours
- Get matched & compare top deals
- Expert help, no pressure
- No added fees
Estimated value based on Jome data, T&C apply
- 4 bd
- 3.5 ba
- 3,133 sqft
4300 College Square Dr, Round Rock, TX 78665
Why tour with Jome?
- No pressure toursTour at your own pace with no sales pressure
- Expert guidanceGet insights from our home buying experts
- Exclusive accessSee homes and deals not available elsewhere
Jome is featured in
- Single-Family
- Ready by June 2026
- $213.53/sqft
- $45/monthly HOA
Home description
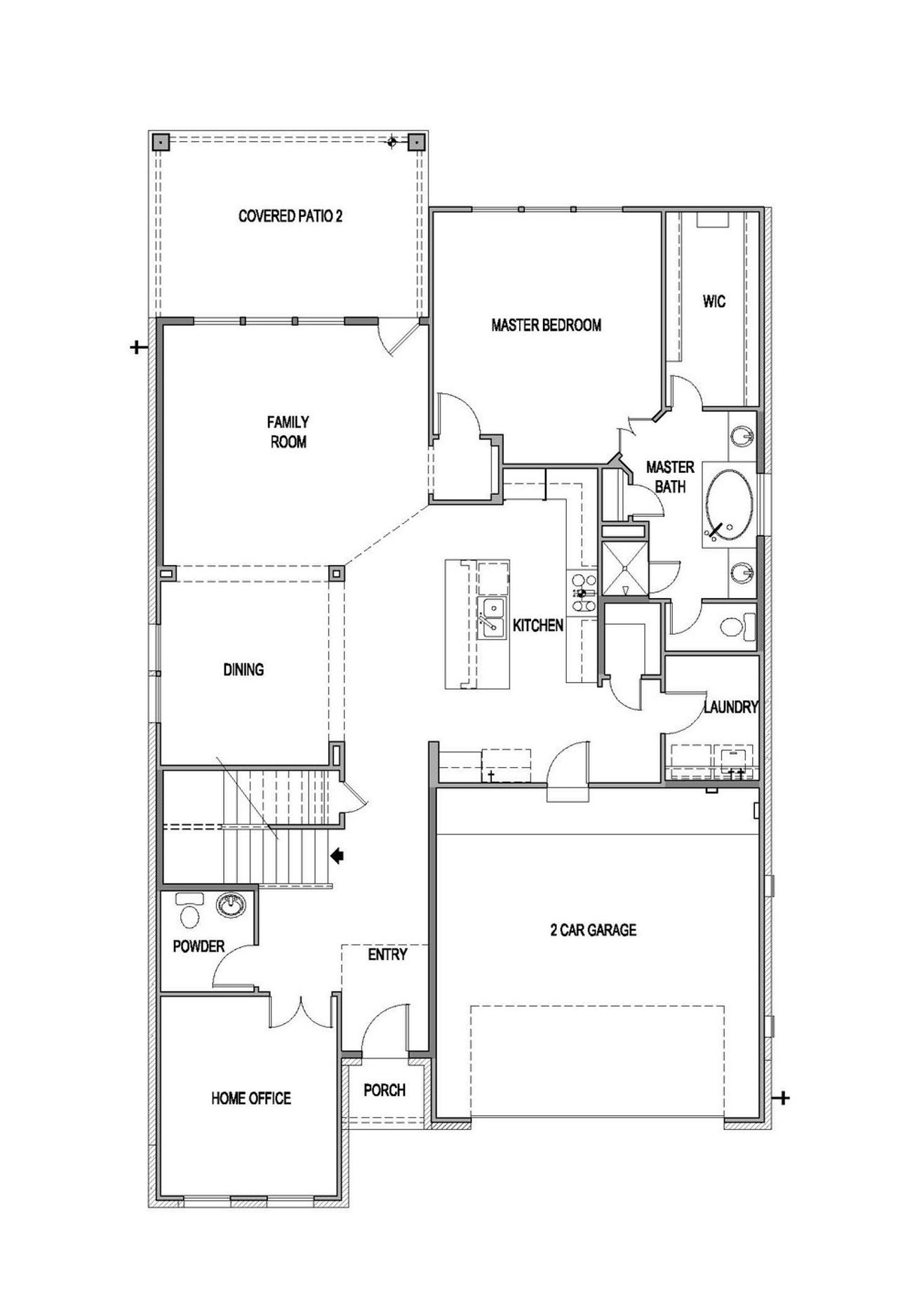
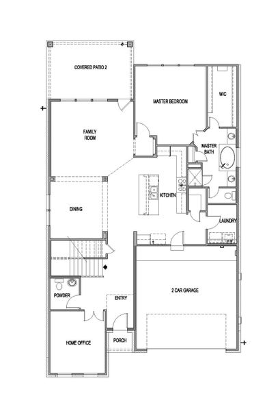
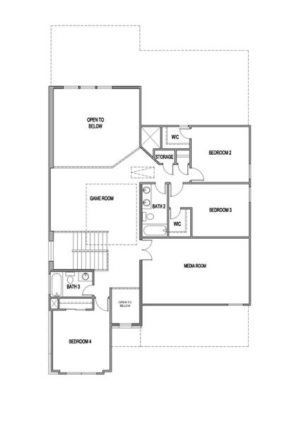
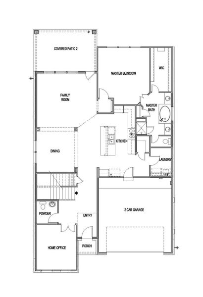
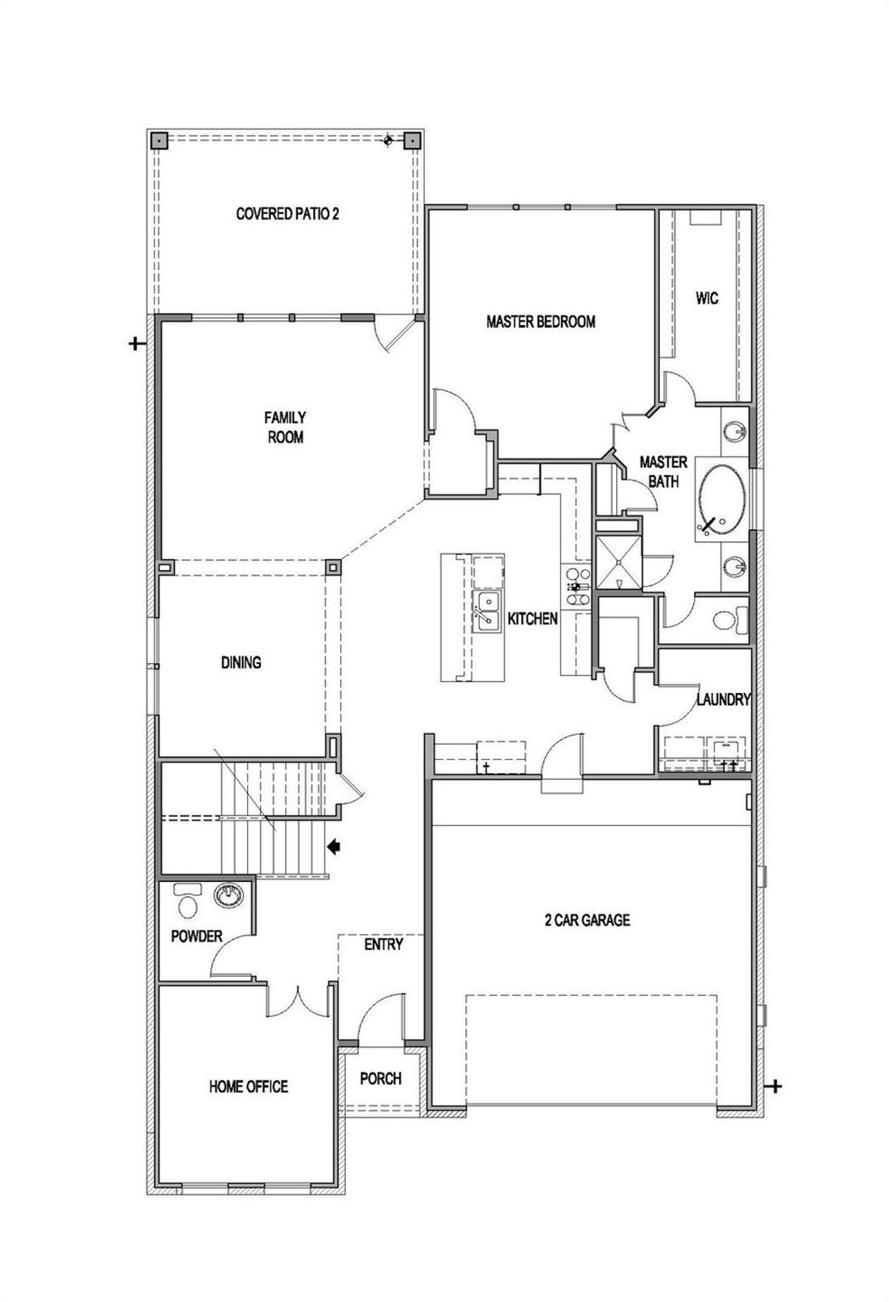
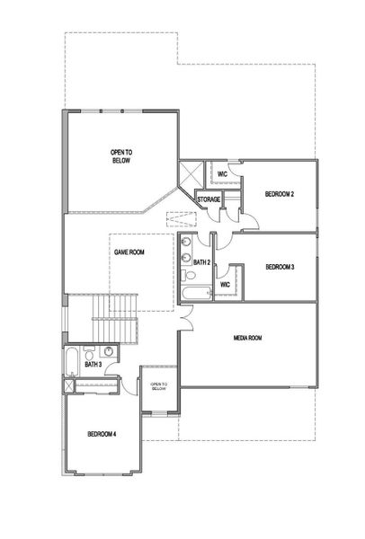
Our most popular Parmer floorplan is a 2-story 3113 sqft home and features 8’ doors throughout the downstairs, light chestnut luxury vinyl plank floors and an upgraded kitchen. The Primary suite, home office and ½ bath are downstairs with an additional 3 bedrooms, 2 bathrooms, a media and game room upstairs. The family room is stunning with the ceiling open to the second floor. The modern kitchen offers lovely white cabinets, designer backsplash, quartz countertops, spacious island, 36” gas cooktop and upgraded vent hood, built in ss appliances and undercounter lighting. The owner’s suite has a box out window seat, separate sinks, soaking tub, walk-in shower with a seat and a generous closet. There’s an extended covered patio for outdoor entertaining and grilling.
May also be listed on the Scott Felder Homes website
Information last verified by Jome: Today at 1:59 PM (March 3, 2026)
Home highlights
Mixed‑use retail and entertainment center north of Austin with shops, dining, live events and walkable energy.
Book your tour. Save an average of $18,473. We'll handle the rest.
We collect exclusive builder offers, book your tours, and support you from start to housewarming.
- Confirmed tours
- Get matched & compare top deals
- Expert help, no pressure
- No added fees
Estimated value based on Jome data, T&C apply
Home details
- Property status:
- Under construction
- Size:
- 3,133 sqft
- Stories:
- 2
- Beds:
- 4
- Baths:
- 3
- Half baths:
- 1
- Garage spaces:
- 2
Construction details
- Builder Name:
- Scott Felder Homes
- Completion Date:
- June, 2026
Home features & finishes
- Garage/Parking:
- GarageAttached Garage
- Interior Features:
- Ceiling-HighWalk-In ClosetPantry
- Laundry facilities:
- Utility/Laundry Room
- Property amenities:
- Bathtub in primaryPatioFireplaceSmart Home System
- Rooms:
- Primary Bedroom On MainKitchenPowder RoomGame RoomMedia RoomOffice/StudyDining RoomFamily RoomOpen Concept FloorplanPrimary Bedroom Downstairs

Get a consultation with our New Homes Expert
- See how your home builds wealth
- Plan your home-buying roadmap
- Discover hidden gems

Community details
University Heights
by Scott Felder Homes, Round Rock, TX
- 10 homes
- 33 plans
- 1,563 - 3,251 sqft
View University Heights details
More homes in University Heights
- Home at address 4737 Pleasant Pl, Round Rock, TX 78665

Oakville
$469,990
- 4 bd
- 3 ba
- 2,303 sqft
4737 Pleasant Pl, Round Rock, TX 78665
- Home at address 4313 Contrail Ln, Round Rock, TX 78665

Oakville
$476,990
- 4 bd
- 3.5 ba
- 2,288 sqft
4313 Contrail Ln, Round Rock, TX 78665
- Home at address 4721 College Square Dr, Round Rock, TX 78665

Lanport
$489,990
- 4 bd
- 2 ba
- 1,803 sqft
4721 College Square Dr, Round Rock, TX 78665
- Home at address 4705 College Square Dr, Round Rock, TX 78665

Lanport
$499,990
- 4 bd
- 2 ba
- 1,804 sqft
4705 College Square Dr, Round Rock, TX 78665
- Home at address 4632 College Square Dr, Round Rock, TX 78665

Oakville
$559,990
- 4 bd
- 3 ba
- 2,310 sqft
4632 College Square Dr, Round Rock, TX 78665
- Home at address 4729 Pleasant Pl, Round Rock, TX 78665

Sabine
$569,990
- 5 bd
- 4 ba
- 2,813 sqft
4729 Pleasant Pl, Round Rock, TX 78665
Floor plans in University Heights
About the builder - Scott Felder Homes
Neighborhood
Home address
- City:
- Round Rock
- County:
- Williamson
- Zip Code:
- 78665
Schools in Georgetown Independent School District
GreatSchools’ Summary Rating calculation is based on 4 of the school’s themed ratings, including test scores, student/academic progress, college readiness, and equity. This information should only be used as a reference. Jome is not affiliated with GreatSchools and does not endorse or guarantee this information. Please reach out to schools directly to verify all information and enrollment eligibility. Data provided by GreatSchools.org © 2025
Places of interest
Getting around
Air quality

Considering this home?
Our expert will guide your tour, in-person or virtual
Need more information?
Text or call (888) 488-9243
Financials
Estimated monthly payment
Let us help you find your dream home
How many bedrooms are you looking for?
Similar homes nearby
Recently added communities in this area
Nearby communities in Round Rock
New homes in nearby cities
More New Homes in Round Rock, TX
- Jome
- New homes search
- Texas
- Greater Austin Area
- Williamson County
- Round Rock
- University Heights
- 4300 College Square Dr, Round Rock, TX 78665

































