







































- 5 bd
- 4 ba
- 2,876 sqft
4733 Pleasant Pl, Round Rock, TX 78665
- Single-Family
- $187.06/sqft
- $540/annual HOA
- East facing
New Homes for Sale Near 4733 Pleasant Pl, Round Rock, TX 78665
About this Home
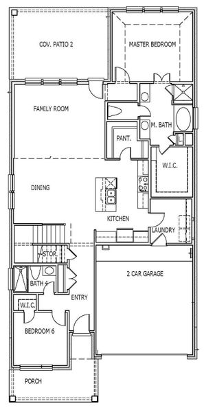
Quinley is back! The Quinley is a buyer favorite. This 2-story home is 2876 SQFT. offering 5 Bedrooms, 4 Baths, a media and game room. It features 8’ doors throughout the downstairs, luxury vinyl plank floors and an upgraded kitchen. The Owner’s suite and a second bedroom and full bath with walk in shower are both downstairs with an additional 3 bedrooms and 2 bathrooms upstairs along with a media and game room upstairs. The family room is spectacular with the ceiling open to the second floor. The nicely upgraded kitchen offers 42” white cabinets, designer backsplash, quartz countertops, spacious island with pendant lights, built in ss appliances, 36” gas cooktop and upgraded vent hood. The owner’s suite features separate sinks, garden tub, walk-in shower with a seat and a roomy closet. The extended covered patio backs up to greenspace and provides you with an outdoor space to relax and unwind. You won’t want to miss this one!
May also be listed on the Scott Felder Homes website
Information last verified by Jome: Wednesday at 2:08 PM (January 21, 2026)
Home details
- Property status:
- Sold
- Lot size (acres):
- 0.12
- Size:
- 2,876 sqft
- Stories:
- 2
- Beds:
- 5
- Baths:
- 4
- Garage spaces:
- 2
- Fence:
- Wood Fence, Privacy Fence, Wrought Iron Fence
- Facing direction:
- East
Construction details
- Builder Name:
- Scott Felder Homes
- Completion Date:
- December, 2025
- Year Built:
- 2025
- Roof:
- Composition Roofing
Home features & finishes
- Appliances:
- Exhaust Fan Vented
- Construction Materials:
- CementBrickStone
- Cooling:
- Ceiling Fan(s)Central Air
- Flooring:
- Vinyl FlooringCarpet FlooringTile Flooring
- Foundation Details:
- Slab
- Garage/Parking:
- GarageFront Entry Garage/Parking
- Interior Features:
- Ceiling-HighDouble Vanity
- Kitchen:
- DishwasherMicrowave OvenOvenDisposalStainless Steel AppliancesBuilt-In OvenKitchen IslandCooktopElectric Oven
- Laundry facilities:
- Dryer
- Rooms:
- Primary Bedroom On MainOpen Concept FloorplanPrimary Bedroom Downstairs
Utility information
- Heating:
- Thermostat, Central Heating, Gas Heating
- Utilities:
- Electricity Available, Natural Gas Available, Water Available, High Speed Internet Access

Community details
University Heights
by Scott Felder Homes, Round Rock, TX
- 10 homes
- 33 plans
- 1,563 - 3,251 sqft
View University Heights details
Community amenities
- Playground
- Community Pool
- Cluster Mailbox
- High Speed Internet Access
More homes in University Heights
- Home at address 4729 Pleasant Pl, Round Rock, TX 78665

$569,990
Under construction- 5 bd
- 4 ba
- 2,813 sqft
4729 Pleasant Pl, Round Rock, TX 78665
Floor plans in University Heights
About the builder - Scott Felder Homes
Neighborhood
Home address
- City:
- Round Rock
- County:
- Williamson
- Zip Code:
- 78665
Schools in Georgetown Independent School District
GreatSchools’ Summary Rating calculation is based on 4 of the school’s themed ratings, including test scores, student/academic progress, college readiness, and equity. This information should only be used as a reference. Jome is not affiliated with GreatSchools and does not endorse or guarantee this information. Please reach out to schools directly to verify all information and enrollment eligibility. Data provided by GreatSchools.org © 2025
Places of interest
Getting around
Air quality
Financials
Nearby communities in Round Rock
Homes in Round Rock by Scott Felder Homes
Recently added communities in this area
Other Builders in Round Rock, TX
Nearby sold homes
New homes in nearby cities
More New Homes in Round Rock, TX
- Jome
- New homes search
- Texas
- Greater Austin Area
- Williamson County
- Round Rock
- University Heights
- 4733 Pleasant Pl, Round Rock, TX 78665








































































