












































- 5 bd
- 4 ba
- 2,900 sqft
4745 Pleasant Pl, Round Rock, TX 78665
- Single-Family
- $188.96/sqft
- $540/annual HOA
- East facing
New Homes for Sale Near 4745 Pleasant Pl, Round Rock, TX 78665
About this Home
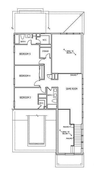
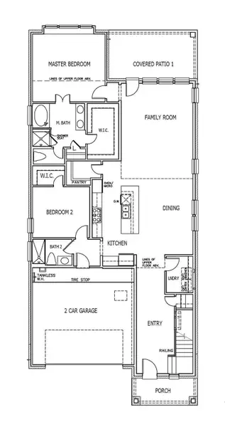
The Travis is one of our newest plans and has over $65,000 in upgrades included. This two story 2900 SQFT plan offers 5 bedrooms, 4 baths plus a Game room. The family room is open to second floor! The primary and a secondary bedroom are located downstairs. The kitchen features built-in appliances, a 36"cooktop, under-cabinet lighting, a spacious island for prepping food or entertaining, and is open to the family room and dining area. The owner's suite includes high ceilings with box out windows, mud set shower with seat, soaking tub, dual vanities and a large walk-in closet. The covered patio backs up to Green Space and the home has Full Sod, Sprinklers and a tankless water heater.
May also be listed on the Scott Felder Homes website
Information last verified by Jome: Wednesday at 6:50 AM (January 7, 2026)
Home details
- Property status:
- Sold
- Lot size (acres):
- 0.13
- Size:
- 2,900 sqft
- Stories:
- 2
- Beds:
- 5
- Baths:
- 4
- Garage spaces:
- 2
- Fence:
- Wood Fence, Privacy Fence, Wrought Iron Fence
- Facing direction:
- East
Construction details
- Builder Name:
- Scott Felder Homes
- Completion Date:
- October, 2025
- Year Built:
- 2025
- Roof:
- Composition Roofing
Home features & finishes
- Appliances:
- Exhaust Fan Vented
- Construction Materials:
- CementBrickStone
- Cooling:
- Ceiling Fan(s)Central Air
- Flooring:
- Vinyl FlooringCarpet FlooringTile Flooring
- Foundation Details:
- Slab
- Garage/Parking:
- Door OpenerGarageFront Entry Garage/Parking
- Interior Features:
- Ceiling-HighDouble Vanity
- Kitchen:
- DishwasherMicrowave OvenOvenDisposalStainless Steel AppliancesGas CooktopBuilt-In OvenCook TopKitchen IslandElectric Oven
- Laundry facilities:
- Dryer
- Lighting:
- Lighting
- Property amenities:
- Soaking Tub
- Rooms:
- Primary Bedroom On MainOpen Concept FloorplanPrimary Bedroom Downstairs
Utility information
- Heating:
- Thermostat, Central Heating, Gas Heating
- Utilities:
- Electricity Available, Natural Gas Available, Water Available, High Speed Internet Access

Community details
University Heights
by Scott Felder Homes, Round Rock, TX
- 18 homes
- 33 plans
- 1,563 - 3,251 sqft
View University Heights details
Community amenities
- Playground
- Community Pool
- Cluster Mailbox
- High Speed Internet Access
More homes in University Heights
- Home at address 4753 Pleasant Pl, Round Rock, TX 78665

$523,990
Move-in ready- 6 bd
- 4 ba
- 2,805 sqft
4753 Pleasant Pl, Round Rock, TX 78665
- Home at address 4725 Pleasant Pl, Round Rock, TX 78665

$537,990
Move-in ready- 6 bd
- 4 ba
- 2,886 sqft
4725 Pleasant Pl, Round Rock, TX 78665
- Home at address 4733 Pleasant Pl, Round Rock, TX 78665

$537,990
Move-in ready- 5 bd
- 4 ba
- 2,876 sqft
4733 Pleasant Pl, Round Rock, TX 78665
- Home at address 4337 Contrail Ln, Round Rock, TX 78665

$537,990
Move-in ready- 6 bd
- 4 ba
- 2,854 sqft
4337 Contrail Ln, Round Rock, TX 78665
- Home at address 4729 Pleasant Pl, Round Rock, TX 78665

$569,990
Under construction- 5 bd
- 4 ba
- 2,813 sqft
4729 Pleasant Pl, Round Rock, TX 78665
Floor plans in University Heights
About the builder - Scott Felder Homes
Neighborhood
Home address
- City:
- Round Rock
- County:
- Williamson
- Zip Code:
- 78665
Schools in Georgetown Independent School District
GreatSchools’ Summary Rating calculation is based on 4 of the school’s themed ratings, including test scores, student/academic progress, college readiness, and equity. This information should only be used as a reference. Jome is not affiliated with GreatSchools and does not endorse or guarantee this information. Please reach out to schools directly to verify all information and enrollment eligibility. Data provided by GreatSchools.org © 2025
Places of interest
Getting around
Air quality
Financials
Nearby communities in Round Rock
Homes in Round Rock by Scott Felder Homes
Recently added communities in this area
Other Builders in Round Rock, TX
Nearby sold homes
New homes in nearby cities
More New Homes in Round Rock, TX
- Jome
- New homes search
- Texas
- Greater Austin Area
- Williamson County
- Round Rock
- University Heights
- 4745 Pleasant Pl, Round Rock, TX 78665





































































