














































- 3 bd
- 2 ba
- 1,653 sqft
1009 Western Hills Dr, Crowley, TX 76036
- Single-Family
- $175.43/sqft
- $850/annual HOA
- 0.10-acre lot
New Homes for Sale Near 1009 Western Hills Dr, Crowley, TX 76036
About this Home
Built by M-I Homes. Discover this beautiful new construction home at 1009 Western Hills Drive Crowley, TX, thoughtfully built by M-I Homes. Offering a well-designed living space, this residence features an open-concept living space that creates a welcoming atmosphere for both everyday living and entertaining.
Step inside and find the following highlights:
3 bedrooms, including a downstairs owner's bedroom
2 bathrooms with quality fixtures
Open-concept design maximizing flow and functionality
The layout of this home has been carefully planned to provide both comfort and convenience. The downstairs owner's bedroom offers privacy and accessibility, while the open-concept living area creates a spacious environment perfect for gathering with family and friends. Each of the 3 bedrooms provides ample space, and the 2 bathrooms are equipped with quality fixtures and finishes. Throughout the home, you'll find attention to detail in every corner, from the thoughtfully designed kitchen to the comfortable living spaces.
As a new construction home, this property offers the rare opportunity to be the first to create memories in a fresh, never-before-lived-in space. The quality of design is evident throughout, with modern touches that enhance everyday living. Located in Crowley, this home positions you in a desirable area with convenient access to everyday necessities while maintaining a peaceful residential setting.
Escape Realty, MLS 20975572
May also be listed on the M/I Homes website
Information last verified by Jome: Today at 12:58 AM (April 22, 2026)
Home details
- Property status:
- Sold
- Lot size (acres):
- 0.10
- Size:
- 1,653 sqft
- Stories:
- 1
- Beds:
- 3
- Baths:
- 2
- Garage spaces:
- 2
- Fence:
- Wood Fence

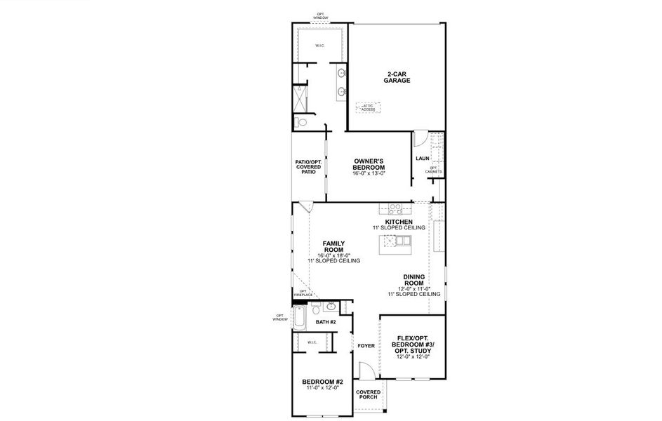
Floor plan details
Lavender - Cottage Series
- 2 bd
- 2 ba
- 1,653 sqft
View Lavender - Cottage Series details
Construction details
- Builder Name:
- M/I Homes
- Completion Date:
- September, 2025
- Year Built:
- 2025
- Roof:
- Roof Gutter, Composition Roofing
Home features & finishes
- Appliances:
- Exhaust Fan Vented
- Construction Materials:
- Brick
- Cooling:
- Ceiling Fan(s)Central Air
- Flooring:
- Ceramic FlooringVinyl FlooringCarpet FlooringTile Flooring
- Foundation Details:
- Slab
- Garage/Parking:
- Door OpenerGarageRear Entry Garage/ParkingAttached Garage
- Home amenities:
- Green Construction
- Interior Features:
- Walk-In ClosetFoyerPantry
- Kitchen:
- DishwasherMicrowave OvenDisposalGas CooktopGranite countertopKitchen IslandGas OvenKitchen Range
- Laundry facilities:
- Utility/Laundry Room
- Lighting:
- Decorative/Designer Lighting
- Property amenities:
- Trees on propertyLandscapingPatioPorch
- Rooms:
- Flex RoomPrimary Bedroom On MainKitchenDining RoomFamily RoomOpen Concept FloorplanPrimary Bedroom Downstairs
- Security system:
- Smoke DetectorCarbon Monoxide Detector
Utility information
- Heating:
- Central Heating, Gas Heating
- Utilities:
- Underground Utilities, HVAC, City Water System, Individual Water Meter, Individual Gas Meter, High Speed Internet Access, Cable TV, Curbs

Community details
Tarrytown
by M/I Homes, Crowley, TX
- 14 homes
- 7 plans
- 1,517 - 2,368 sqft
View Tarrytown details
Community amenities
- Playground
- Park Nearby
- Walking, Jogging, Hike Or Bike Trails
More homes in Tarrytown
- Home at address 1041 Western Hills Dr, Crowley, TX 76036
Savings$309,990
Under construction- 3 bd
- 2 ba
- 1,517 sqft
1041 Western Hills Dr, Crowley, TX 76036
- Home at address 1025 Western Hills Dr, Crowley, TX 76036
Savings$327,990
Under construction- 3 bd
- 2 ba
- 1,845 sqft
1025 Western Hills Dr, Crowley, TX 76036
- Home at address 1021 Tarryhill Dr, Crowley, TX 76036

$329,915
Under construction- 3 bd
- 2 ba
- 1,653 sqft
1021 Tarryhill Dr, Crowley, TX 76036
- Home at address 1020 Tarryhill Dr, Crowley, TX 76036
Savings$339,990
Move-in ready- 3 bd
- 2 ba
- 1,764 sqft
1020 Tarryhill Dr, Crowley, TX 76036
- Home at address 1032 Tarryhill Dr, Crowley, TX 76036
Savings$339,990
Under construction- 4 bd
- 2 ba
- 1,746 sqft
1032 Tarryhill Dr, Crowley, TX 76036
- Home at address 1017 Tarryhill Dr, Crowley, TX 76036

$344,685
Move-in ready- 4 bd
- 2 ba
- 1,816 sqft
1017 Tarryhill Dr, Crowley, TX 76036
Floor plans in Tarrytown
About the builder - M/I Homes

- 142communities on Jome
- 1,752homes on Jome
Neighborhood
Home address
Schools in Crowley Independent School District
GreatSchools’ Summary Rating calculation is based on 4 of the school’s themed ratings, including test scores, student/academic progress, college readiness, and equity. This information should only be used as a reference. Jome is not affiliated with GreatSchools and does not endorse or guarantee this information. Please reach out to schools directly to verify all information and enrollment eligibility. Data provided by GreatSchools.org © 2025
Places of interest
Getting around
Air quality
Noise level
A Soundscore™ rating is a number between 50 (very loud) and 100 (very quiet) that tells you how loud a location is due to environmental noise.
Financials
Nearby communities in Crowley
Homes in Crowley by M/I Homes
Recently added communities in this area
Other Builders in Crowley, TX
Nearby sold homes
New homes in nearby cities
More New Homes in Crowley, TX
Escape Realty, MLS 20975572
IDX information is provided exclusively for personal, non-commercial use, and may not be used for any purpose other than to identify prospective properties consumers may be interested in purchasing. You may not reproduce or redistribute this data, it is for viewing purposes only. This data is deemed reliable, but is not guaranteed accurate by the MLS or NTREIS.
Read moreLast checked Apr 22, 10:00 am
- Jome
- New homes search
- Texas
- Dallas-Fort Worth Area
- Tarrant County
- Crowley
- Tarrytown
- 1009 Western Hills Dr, Crowley, TX 76036







































































