





















































- 3 bd
- 2.5 ba
- 1,809 sqft
2201 Wayfield Ln, Aledo, TX 76008
- Townhouse
- $232.24/sqft
- $280/monthly HOA
- West facing
New Homes for Sale Near 2201 Wayfield Ln, Aledo, TX 76008
About this Home
MLS# 21006049 - Built by Highland Homes - November completion! ~ Lock and Leave your Townhome at Walsh to enjoy the exciting entertainment and dining of Downtown Fort Worth minutes away from your doorstep! Enjoy the full range of resort style amenities of the master planned community including neighborhood parks, miles of hike-bike trails, resort style pool, fitness facility and makers space and miles of greenspace. This two-story townhome has high ceilings with lots of windows allowing for plenty of natural light throughout.
Dina Verteramo, MLS 21006049
May also be listed on the Highland Homes website
Information last verified by Jome: Today at 1:07 AM (January 20, 2026)
Home details
- Property status:
- Sold
- Lot size (acres):
- 0.10
- Size:
- 1,809 sqft
- Stories:
- 2
- Beds:
- 3
- Baths:
- 2
- Half baths:
- 1
- Garage spaces:
- 2
- Fence:
- Wrought Iron Fence, Fenced Yard
- Facing direction:
- West
Construction details
- Builder Name:
- Highland Homes
- Completion Date:
- November, 2025
- Year Built:
- 2025
- Roof:
- Composition Roofing
Home features & finishes
- Appliances:
- Exhaust Fan VentedSprinkler System
- Construction Materials:
- Brick
- Cooling:
- Ceiling Fan(s)Central Air
- Flooring:
- Ceramic FlooringWood FlooringCarpet FlooringTile Flooring
- Foundation Details:
- Slab
- Garage/Parking:
- Door OpenerGarageRear Entry Garage/ParkingAttached Garage
- Home amenities:
- Green Construction
- Interior Features:
- Ceiling-VaultedWalk-In ClosetPantryLoftDouble Vanity
- Kitchen:
- DishwasherMicrowave OvenDisposalGas CooktopKitchen Island
- Laundry facilities:
- DryerWasherStackable Washer/DryerUtility/Laundry Room
- Lighting:
- LightingDecorative/Designer Lighting
- Property amenities:
- SidewalkCourtyardLandscapingPatioYardSmart Home System
- Rooms:
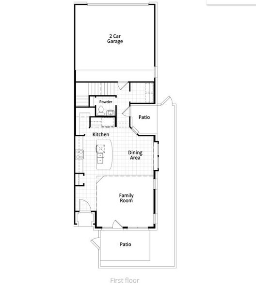
- KitchenPowder RoomDining RoomFamily RoomOpen Concept FloorplanPrimary Bedroom Upstairs
- Security system:
- FirewallSmoke DetectorCarbon Monoxide Detector
Utility information
- Heating:
- Water Heater, Central Heating, Gas Heating, Tankless water heater
- Utilities:
- Underground Utilities, HVAC, City Water System, Individual Water Meter, Individual Gas Meter, High Speed Internet Access, Curbs

Community details
Walsh: Townhomes - The Patios at Walsh
by Highland Homes, Aledo, TX
View Walsh: Townhomes - The Patios details
Community amenities
- Playground
- Fitness Center/Exercise Area
- Tennis Courts
- Community Pool
- Park Nearby
- Fishing Pond
- Sidewalks Available
- Greenbelt View
- Walking, Jogging, Hike Or Bike Trails
- Electric Vehicle Charging Station(s)
About the builder - Highland Homes
Neighborhood
Home address
Schools in Aledo Independent School District
- Grades 06-08Publicmcanally middle1.3 mi14700 old weatherford rdna
- Grades M-MPubliclynn mckinney elementary1.5 mi14748 lynn mckinney wayna
GreatSchools’ Summary Rating calculation is based on 4 of the school’s themed ratings, including test scores, student/academic progress, college readiness, and equity. This information should only be used as a reference. Jome is not affiliated with GreatSchools and does not endorse or guarantee this information. Please reach out to schools directly to verify all information and enrollment eligibility. Data provided by GreatSchools.org © 2025
Places of interest
Getting around
Air quality
Financials
Nearby communities in Aledo
Homes in Aledo by Highland Homes
Recently added communities in this area
Other Builders in Aledo, TX
Nearby sold homes
New homes in nearby cities
More New Homes in Aledo, TX
Dina Verteramo, MLS 21006049
IDX information is provided exclusively for personal, non-commercial use, and may not be used for any purpose other than to identify prospective properties consumers may be interested in purchasing. You may not reproduce or redistribute this data, it is for viewing purposes only. This data is deemed reliable, but is not guaranteed accurate by the MLS or NTREIS.
Read moreLast checked Jan 20, 10:00 am
- Jome
- New homes search
- Texas
- Dallas-Fort Worth Area
- Parker County
- Aledo
- Walsh: Townhomes - The Patios
- 2201 Wayfield Ln, Aledo, TX 76008


































































