











































- 3 bd
- 2.5 ba
- 1,830 sqft
2209 Wayfield Ln, Aledo, TX 76008
- Townhouse
- $218.48/sqft
- $280/monthly HOA
- West facing
New Homes for Sale Near 2209 Wayfield Ln, Aledo, TX 76008
About this Home
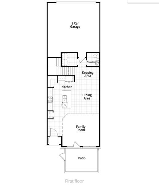
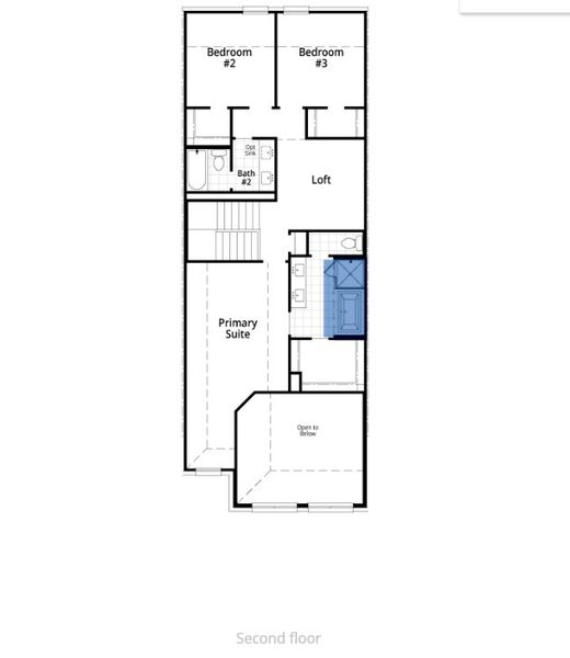
MLS# 21006051 - Built by Highland Homes - November completion! ~ This townhome is drenched in natural light, featuring soaring ceilings, 8-foot doors and 6-inch baseboards on the 1st floor. The kitchen showcases pristine cabinetry, gleaming quartz countertops, a gas cooktop, a generously sized island, and a wall mounted microwave and oven. A convenient walk-in pantry and upper glass cabinets with puck lighting provide abundant storage space! 3 bedrooms and two bathrooms and second living area make up the second floor of this home with design upgrades throughout!!
Dina Verteramo, MLS 21006051
May also be listed on the Highland Homes website
Information last verified by Jome: Today at 1:35 AM (April 1, 2026)
Home details
- Property status:
- Sold
- Lot size (acres):
- 0.10
- Size:
- 1,830 sqft
- Stories:
- 2
- Beds:
- 3
- Baths:
- 2
- Half baths:
- 1
- Garage spaces:
- 2
- Fence:
- Wrought Iron Fence, Fenced Yard
- Facing direction:
- West
Construction details
- Builder Name:
- Highland Homes
- Completion Date:
- November, 2025
- Year Built:
- 2025
- Roof:
- Roof Gutter, Composition Roofing
Home features & finishes
- Appliances:
- Exhaust Fan VentedSprinkler System
- Construction Materials:
- Brick
- Cooling:
- Ceiling Fan(s)Central Air
- Flooring:
- Ceramic FlooringWood FlooringCarpet FlooringTile Flooring
- Foundation Details:
- Slab
- Garage/Parking:
- Door OpenerGarageRear Entry Garage/ParkingAttached Garage
- Home amenities:
- ENERGY STAR CertifiedGreen Construction
- Interior Features:
- Ceiling-VaultedWalk-In ClosetPantryLoftDouble Vanity
- Kitchen:
- DishwasherMicrowave OvenDisposalGas CooktopKitchen Island
- Laundry facilities:
- DryerWasherStackable Washer/DryerUtility/Laundry Room
- Lighting:
- LightingDecorative/Designer Lighting
- Property amenities:
- SidewalkCourtyardLandscapingPatioYardSmart Home System
- Rooms:
- KitchenPowder RoomDining RoomFamily RoomOpen Concept FloorplanPrimary Bedroom Upstairs
- Security system:
- FirewallSmoke DetectorCarbon Monoxide Detector
Utility information
- Heating:
- Water Heater, Central Heating, Gas Heating, Tankless water heater
- Utilities:
- Underground Utilities, HVAC, City Water System, Individual Water Meter, Individual Gas Meter, High Speed Internet Access, Curbs

Community details
Walsh: Townhomes - The Patios at Walsh
by Highland Homes, Aledo, TX
View Walsh: Townhomes - The Patios details
Community amenities
- Playground
- Fitness Center/Exercise Area
- Tennis Courts
- Community Pool
- Park Nearby
- Fishing Pond
- Sidewalks Available
- Greenbelt View
- Walking, Jogging, Hike Or Bike Trails
- Electric Vehicle Charging Station(s)
About the builder - Highland Homes
Neighborhood
Home address
Schools in Aledo Independent School District
- Grades 06-08Publicmcanally middle1.3 mi14700 old weatherford rdna
- Grades M-MPubliclynn mckinney elementary1.6 mi14748 lynn mckinney wayna
GreatSchools’ Summary Rating calculation is based on 4 of the school’s themed ratings, including test scores, student/academic progress, college readiness, and equity. This information should only be used as a reference. Jome is not affiliated with GreatSchools and does not endorse or guarantee this information. Please reach out to schools directly to verify all information and enrollment eligibility. Data provided by GreatSchools.org © 2025
Places of interest
Getting around
Air quality
Financials
Nearby communities in Aledo
Homes in Aledo by Highland Homes
Recently added communities in this area
Other Builders in Aledo, TX
Nearby sold homes
New homes in nearby cities
More New Homes in Aledo, TX
Dina Verteramo, MLS 21006051
IDX information is provided exclusively for personal, non-commercial use, and may not be used for any purpose other than to identify prospective properties consumers may be interested in purchasing. You may not reproduce or redistribute this data, it is for viewing purposes only. This data is deemed reliable, but is not guaranteed accurate by the MLS or NTREIS.
Read moreLast checked Mar 31, 10:00 pm
- Jome
- New homes search
- Texas
- Dallas-Fort Worth Area
- Parker County
- Aledo
- Walsh: Townhomes - The Patios
- 2209 Wayfield Ln, Aledo, TX 76008




































































