














Book your tour. Save an average of $18,473. We'll handle the rest.
- Confirmed tours
- Get matched & compare top deals
- Expert help, no pressure
- No added fees
Estimated value based on Jome data, T&C apply








- 3 bd
- 2.5 ba
- 1,785 sqft
147 Ironhorse Wy, Unit 75, Dickson, TN 37055
Why tour with Jome?
- No pressure toursTour at your own pace with no sales pressure
- Expert guidanceGet insights from our home buying experts
- Exclusive accessSee homes and deals not available elsewhere
Jome is featured in
- Single-Family
- Quick move-in
- $183.08/sqft
- 1 days on Jome
Home description
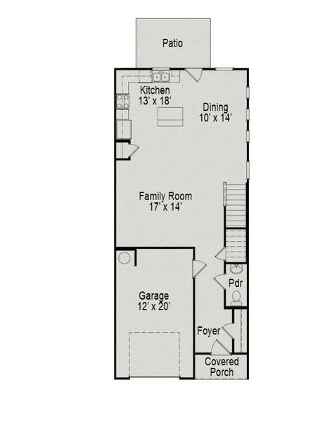
The Pinehurst at Ironhorse by Smith Douglas Homes features an open concept design which lets the light flow throughout the home, into the expansive family room. In the kitchen you may choose to retain the open flow or add a center island for more storage and counter space. The kitchen and dining room are off the back of the home and are steps away from the patio for back yard grilling. Upstairs you'll find a laundry room large enough for all your home utilities storage, and three bedrooms, two featuring a walk-in closet. At the front of the home, the owner's suite and ensuite are nicely appointed with a linen and water closet. Owner’s suite windows at the front of the home bring in the natural light.
*This is an end unit (#75) backing up to trees and creek, not to mention the nice and spacious backyard behind this building*
*Secure your townhome now for late April/ Early May completion*
*Receive 15K Flex Cash with use of Seller's preferred lender. Limited time only and some restrictions may apply. Contact agent for details*
Our community is only 7 minutes from I-40, and about 3 miles to recognized restaurants names, not to mention only 6 miles to Montgomery Bell State Park and 4 miles to a beautiful golf course. Our community offers fiber cement exteriors, underground utilities and sidewalks. We have two furnished model homes to show. We are only 45 minutes to Nashville, 30 minutes to Bellevue and Bellevue place shopping with recognize brand name stores and more restaurants.
May also be listed on the Smith Douglas Homes website
Information last verified by Jome: Yesterday at 11:38 AM (January 11, 2026)
Book your tour. Save an average of $18,473. We'll handle the rest.
We collect exclusive builder offers, book your tours, and support you from start to housewarming.
- Confirmed tours
- Get matched & compare top deals
- Expert help, no pressure
- No added fees
Estimated value based on Jome data, T&C apply
Home details
- Property status:
- Move-in ready
- Size:
- 1,785 sqft
- Stories:
- 2
- Beds:
- 3
- Baths:
- 2
- Half baths:
- 1
- Garage spaces:
- 1
Construction details
- Builder Name:
- Smith Douglas Homes
Home features & finishes
- Garage/Parking:
- Garage

Get a consultation with our New Homes Expert
- See how your home builds wealth
- Plan your home-buying roadmap
- Discover hidden gems

Community details
Ironhorse
by Smith Douglas Homes, Dickson, TN
- 8 homes
- 2 plans
- 1,785 - 1,786 sqft
View Ironhorse details
More homes in Ironhorse
- Home at address 105 Ironhorse Wy, Unit 96, Dickson, TN 37055

Home
$289,990
- 3 bd
- 2.5 ba
- 1,785 sqft
105 Ironhorse Wy, Unit 96, Dickson, TN 37055
- Home at address 122 Ironhorse Wy, Unit 02, Dickson, TN 37055

Home
$304,990
- 3 bd
- 2.5 ba
- 1,785 sqft
122 Ironhorse Wy, Unit 02, Dickson, TN 37055
- Home at address 133 Ironhorse Wy, Unit 82, Dickson, TN 37055

Home
$304,990
- 3 bd
- 2.5 ba
- 1,785 sqft
133 Ironhorse Wy, Unit 82, Dickson, TN 37055
- Home at address 127 Ironhorse Wy, Unit 85, Dickson, TN 37055

Home
$304,990
- 3 bd
- 2.5 ba
- 1,785 sqft
127 Ironhorse Wy, Unit 85, Dickson, TN 37055
- Home at address 120 Ironhorse Wy, Unit 01, Dickson, TN 37055

Home
$314,990
- 3 bd
- 2.5 ba
- 1,786 sqft
120 Ironhorse Wy, Unit 01, Dickson, TN 37055
- Home at address 101 Ironhorse Wy, Dickson, TN 37055

Home
Contact for price
- 3 bd
- 2.5 ba
- 1,785 sqft
101 Ironhorse Wy, Dickson, TN 37055
Floor plans in Ironhorse
About the builder - Smith Douglas Homes
Neighborhood
Home address
Schools in Dickson County School District
GreatSchools’ Summary Rating calculation is based on 4 of the school’s themed ratings, including test scores, student/academic progress, college readiness, and equity. This information should only be used as a reference. Jome is not affiliated with GreatSchools and does not endorse or guarantee this information. Please reach out to schools directly to verify all information and enrollment eligibility. Data provided by GreatSchools.org © 2025
Places of interest
Getting around
Air quality
Noise level
A Soundscore™ rating is a number between 50 (very loud) and 100 (very quiet) that tells you how loud a location is due to environmental noise.

Considering this home?
Our expert will guide your tour, in-person or virtual
Need more information?
Text or call (888) 486-2818
Financials
Estimated monthly payment
Let us help you find your dream home
How many bedrooms are you looking for?
Similar homes nearby
Recently added communities in this area
Nearby communities in Dickson
New homes in nearby cities
More New Homes in Dickson, TN
- Jome
- New homes search
- Tennessee
- Nashville-Memphis Area
- Dickson
- Ironhorse
- 147 Ironhorse Wy, Unit 75, Dickson, TN 37055
























