



- 4 bd
- 2.5 ba
- 1,554 sqft
3020 Bogart Ln, Knoxville, TN 37921
- Single-Family
- $199.82/sqft
- 58 days on Jome
New Homes for Sale Near 3020 Bogart Ln, Knoxville, TN 37921
About this Home
About this home
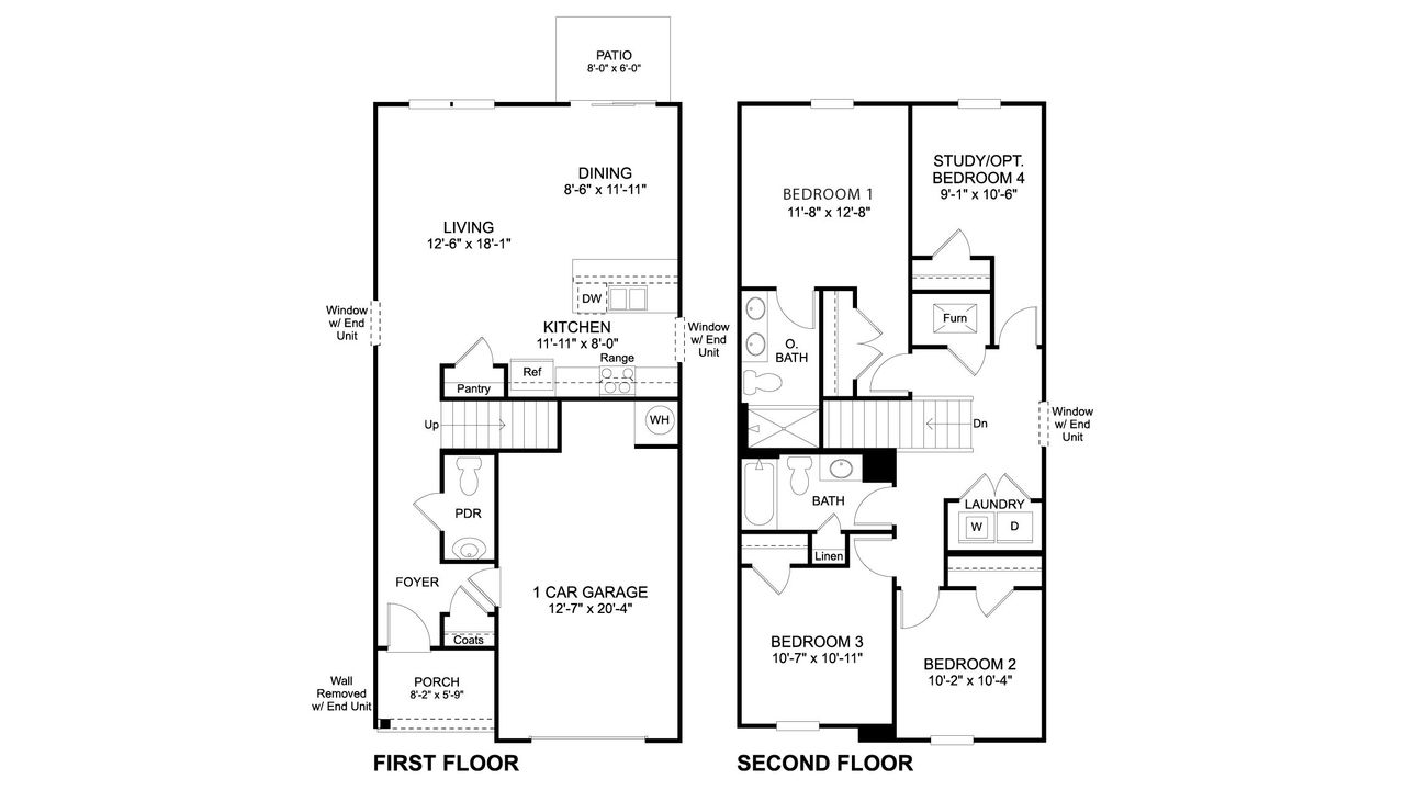
Welcome to the Mitchell townhome, available in Spring Lake Farms. This versatile floor plan offers 4 bedrooms, 2.5 bathrooms, and plenty of storage space.
The main level features an open-concept layout with a bright living area that flows seamlessly into the kitchen and dining spaces perfect for entertaining or relaxing at home. A conveniently placed powder room and ample storage add to the home’s practicality.
Upstairs, the private primary suite includes an en-suite bathroom and a spacious closet for everyday convenience. Three additional bedrooms share a full bath, offering flexibility to have guests, a dedicated home office, or a study area. A centrally located laundry room on the second floor makes daily routines effortless.
With its smart layout, modern finishes, and versatile design, this home delivers the ideal balance of comfort and convenience perfect for today’s lifestyle.
May also be listed on the D.R. Horton website
Information last verified by Jome: Wednesday at 2:03 AM (December 31, 2025)
Home details
- Property status:
- Sold
- Size:
- 1,554 sqft
- Stories:
- 2
- Beds:
- 4
- Baths:
- 2.5
- Garage spaces:
- 1

Floor plan details
Mitchell Townhome
- 4 bd
- 2.5 ba
- 1,554 sqft
View Mitchell Townhome details
Construction details
- Builder Name:
- D.R. Horton
Home features & finishes
- Garage/Parking:
- Garage

Community details
Spring Lake Farms Townhomes
by D.R. Horton, Knoxville, TN
- 2 plans
- 1,381 - 1,554 sqft
View Spring Lake Farms Townhomes details
Floor plans in Spring Lake Farms Townhomes
About the builder - D.R. Horton

- 1,207communities on Jome
- 9,715homes on Jome
Neighborhood
Home address
Schools in Knox County School District
GreatSchools’ Summary Rating calculation is based on 4 of the school’s themed ratings, including test scores, student/academic progress, college readiness, and equity. This information should only be used as a reference. Jome is not affiliated with GreatSchools and does not endorse or guarantee this information. Please reach out to schools directly to verify all information and enrollment eligibility. Data provided by GreatSchools.org © 2025
Places of interest
Getting around
Air quality
Noise level
A Soundscore™ rating is a number between 50 (very loud) and 100 (very quiet) that tells you how loud a location is due to environmental noise.
Nearby communities in Knoxville
Homes in Knoxville by D.R. Horton
Recently added communities in this area
Other Builders in Knoxville, TN
Nearby sold homes
New homes in nearby cities
More New Homes in Knoxville, TN
- Jome
- New homes search
- Tennessee
- Chattanooga-Knoxville Area
- Knox County
- Knoxville
- Spring Lake Farms Townhomes
- 3020 Bogart Ln, Knoxville, TN 37921


















































