



Book your tour. Save an average of $18,473. We'll handle the rest.
- Confirmed tours
- Get matched & compare top deals
- Expert help, no pressure
- No added fees
Estimated value based on Jome data, T&C apply
Why tour with Jome?
- No pressure toursTour at your own pace with no sales pressure
- Expert guidanceGet insights from our home buying experts
- Exclusive accessSee homes and deals not available elsewhere
Jome is featured in
- Single-Family
- Quick move-in
- $150.53/sqft
- 1 days on Jome
Home description
About this home
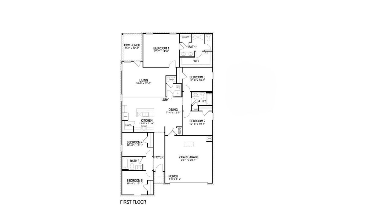
Step into 88 Aurora Circle at Bailey Park in Fayetteville, TN.
This Lakeside offers 5-bedrooms, 3-bathrooms in over 2,000 square feet with a 2-car garage. As you enter, you’ll find access to two bedrooms that share a full bathroom. To the opposite side of the home are two bedrooms, a full bathroom with a linen closet and the laundry room.
The kitchen boasts a stunning design featuring granite countertops, spacious island bar, stainless-steel appliances and a corner pantry. Seamlessly connected to the family and dining room, this kitchen is ideal for hosting gatherings and enjoying quality time with loved ones. The living area has back door access to a covered porch, further enhancing the relaxing ambiance.
The primary bedroom offers ample space and is accompanied by an adjoining ensuite that showcases a double vanity with granite countertop, a generous standing shower, and a walk-in closet that can accommodate the most ambitious wardrobe.
Like all homes in Bailey Park, the Lakeside includes a Home is Connected smart home technology package which allows you to control your home with your smart device while near or away.
May also be listed on the D.R. Horton website
Information last verified by Jome: Today at 2:39 AM (December 23, 2025)
Home highlights
Book your tour. Save an average of $18,473. We'll handle the rest.
We collect exclusive builder offers, book your tours, and support you from start to housewarming.
- Confirmed tours
- Get matched & compare top deals
- Expert help, no pressure
- No added fees
Estimated value based on Jome data, T&C apply
Home details
- Property status:
- Move-in ready
- Size:
- 2,092 sqft
- Stories:
- 1
- Beds:
- 5
- Baths:
- 3
- Garage spaces:
- 2
Construction details
- Builder Name:
- D.R. Horton
Home features & finishes
- Garage/Parking:
- Garage
- Rooms:
- Primary Bedroom On MainPrimary Bedroom Downstairs

Community details
Bailey Park
by D.R. Horton, Fayetteville, TN
- 10 homes
- 4 plans
- 1,537 - 2,092 sqft
View Bailey Park details
More homes in Bailey Park
Floor plans in Bailey Park
About the builder - D.R. Horton
Neighborhood
Home address
- City:
- Fayetteville
- County:
- Lincoln
- Zip Code:
- 37334
Schools in Lincoln County School District
- Grades KG-12Privatechestnut ridge academy & satellite school1.7 mi2959 huntsville hwyna
- Grades PK-11Privatebethlehem christian academy5.0 mi1936 elkwood section rdna
GreatSchools’ Summary Rating calculation is based on 4 of the school’s themed ratings, including test scores, student/academic progress, college readiness, and equity. This information should only be used as a reference. Jome is not affiliated with GreatSchools and does not endorse or guarantee this information. Please reach out to schools directly to verify all information and enrollment eligibility. Data provided by GreatSchools.org © 2025
Places of interest
Getting around
Natural hazards risk
Climate hazards can impact homes and communities, with risks varying by location. These scores reflect the potential impact of natural disasters and climate-related risks on Lincoln County
Provided by FEMA

Considering this home?
Our expert will guide your tour, in-person or virtual
Need more information?
Text or call (888) 486-2818
Financials
Estimated monthly payment
Recently added communities in this area
Nearby communities in Fayetteville
New homes in nearby cities
More New Homes in Fayetteville, TN
- Jome
- New homes search
- Tennessee
- Nashville-Memphis Area
- Lincoln County
- Fayetteville
- Bailey Park
- 88 Aurora Cir, Fayetteville, TN 37334






